22 299 20 00 (pn-nd 9.30 do 19.30)

Gotowy projekt budynku G125 (ID: 31704)

549 2025-12-23
G125 - 12m²
Możliwy dłuzszy czas realizacji
Gwarantujemy najniższą cenę
549 zł
W cenie projektu:
  • Tablica + dziennik budowy
  • 16 projektów ogrodowych
  • Darmowa wysyłka (kurier, paczkomat, pobranie)
  • 30 dni na zwrot
  • Pozwolenie na zmiany z podpisem i pieczęcią autora
22 299 20 00 (pn-nd 9.30 do 19.30)

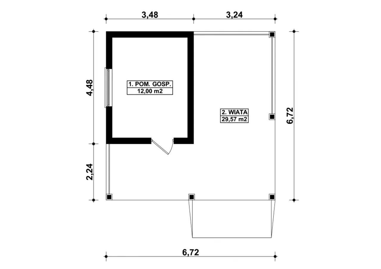
Rzuty gotowego projektu budynku G125

1. Pom. gospodarcze 12,00 m²
2. Wiata 29,57 m²

Zapoznaj się ze szczegółami projektu - pobierz bezpłatne rysunki do: G125

Wypełnij formularz i otrzymaj rysunki w pdf z dokładnymi wymiarami budynku i pomieszczeń (długość, szerokość, wysokość) dla projektu G125

Parametry Techniczne gotowego projektu domu G125

Pow. użytkowa 12 m²
Powierzchnia zabudowy 45.16 m²
Kondygnacje parterowy
Garaż 1 stanowisko
Technologia murowany
Obiekt inny
Kąt nachylenia dachu drugiego 34
Kąt nachylenia dachu 25 °
Obiekt inny (szczegóły) garaże
Szerokość budynku 6.72 m
Długość budynku 6.72 m
Kubatura 177.6 m³
Kalenica równoległa do drogi
Wysokość budynku 4.75 m
Przestrzeń z pom. gospodarczym, z wiatą/altaną
Rodzaj dachu wielospadowy

Nasze prawdziwe opinie z Google

Dodatki do projektu G125

Dodatki możesz kupić razem z projektem lub dokupić po czasie

[Planz] Tablica budowlana (0 zł)

[Planz] Dziennik budowy (0 zł)

[Planz] Wiertarka udarowa (0 zł)

[Planz] Zgoda na zmiany w projekcie (0 zł)

[Planz] Projekty architektury ogrodowej (0 zł)

[Planz] Charakterystyka energetyczna, tylko dla domów całorocznych (0 zł)

Wysyłka i płatność za projekt G125

Koszty wysyłki

bezpłatnie (0zł)

Formy płatności

przelew zwykły / PayNow
przy odbiorze

Czas oczekiwania

3-5 dni roboczych (jeśli projekt nie wymaga aktualizacji)

Podobne projekty do budynku G125

PRACOWNIA: Kup Projekt