22 299 20 00 (pn-nd 9.30 do 19.30)

Gotowy projekt budynku G120 (ID: 31701)

1590 2025-12-22
G120 - 86.68m²
Możliwy dłuzszy czas realizacji
Gwarantujemy najniższą cenę
1590 zł
W cenie projektu:
  • Tablica + dziennik budowy
  • 16 projektów ogrodowych
  • Darmowa wysyłka (kurier, paczkomat, pobranie)
  • 30 dni na zwrot
  • Pozwolenie na zmiany z podpisem i pieczęcią autora
22 299 20 00 (pn-nd 9.30 do 19.30)

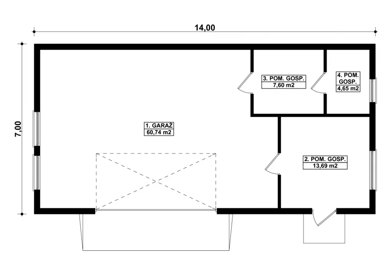
Rzuty gotowego projektu budynku G120

1. Garaż 60,74 m²
2. Pom.gospodarcze 13,69 m²
3. Pom. gospodarcze 7,60 m²
4. Pom. gospodarcze 4,65 m²

Zapoznaj się ze szczegółami projektu - pobierz bezpłatne rysunki do: G120

Wypełnij formularz i otrzymaj rysunki w pdf z dokładnymi wymiarami budynku i pomieszczeń (długość, szerokość, wysokość) dla projektu G120

Parametry Techniczne gotowego projektu domu G120

Pow. użytkowa 86.68 m²
Powierzchnia zabudowy 98 m²
Kondygnacje parterowy
Garaż 2 stanowiska
Technologia murowany
Obiekt inny
Obiekt inny (szczegóły) garaże
Kąt nachylenia dachu 25 °
Szerokość budynku 14 m
Długość budynku 7 m
Kalenica równoległa do drogi
Kubatura 389.3 m³
Przestrzeń z pom. gospodarczym
Wysokość budynku 4.55 m
Rodzaj dachu dwuspadowy

Nasze prawdziwe opinie z Google

Dodatki do projektu G120

Dodatki możesz kupić razem z projektem lub dokupić po czasie

[Planz] Tablica budowlana (0 zł)

[Planz] Dziennik budowy (0 zł)

[Planz] Wiertarka udarowa (0 zł)

[Planz] Zgoda na zmiany w projekcie (0 zł)

[Planz] Projekty architektury ogrodowej (0 zł)

[Planz] Charakterystyka energetyczna, tylko dla domów całorocznych (0 zł)

Wysyłka i płatność za projekt G120

Koszty wysyłki

bezpłatnie (0zł)

Formy płatności

przelew zwykły / PayNow
przy odbiorze

Czas oczekiwania

3-5 dni roboczych (jeśli projekt nie wymaga aktualizacji)

Podobne projekty do budynku G120

PRACOWNIA: Kup Projekt