Głuszec z garażem 1-st. bliźniak A-BL1



1. Wiatrołap | 6,80 m² |
2. Pokój gościnny | 10,70 m² |
3. Komunikacja + schowek | 5,30 m² |
4. Schody | 4,20 m² |
5. Salon + kuchnia | 25,30 m² |
6. Spiżarnia | 2,00 m² |
7. łazienka | 2,90 m² |
8. Pom. tech. co | 7,50 m² |
9. Garaż | 24,10 m² |
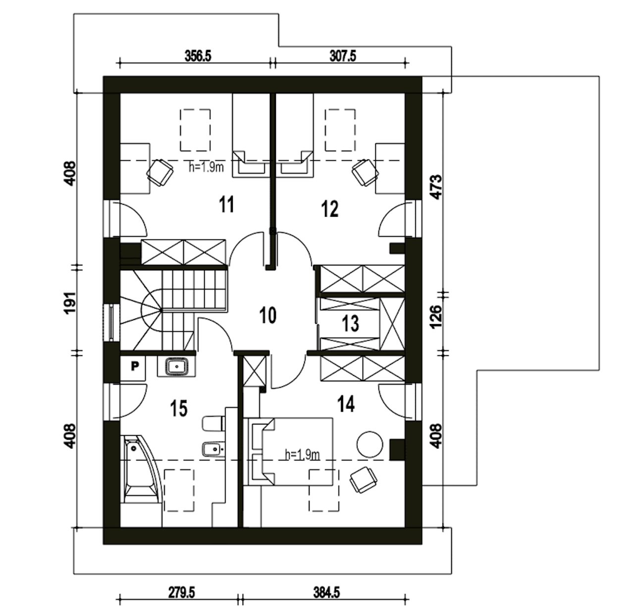
1. Hol | 4,70 (4,70) m² |
2. Sypialnia | 9,00 (14,10) m² |
3. Sypialnia | 9,10 (13,50) m² |
4. Garderoba | 2,60 (2,60) m² |
5. Sypialnia | 9,80 (15,30) m² |
6. łazienka | 7,20 (11,20) m² |
Wypełnij formularz i otrzymaj rysunki w pdf z dokładnymi wymiarami budynku i pomieszczeń (długość, szerokość, wysokość) dla projektu Głuszec z garażem 1-st. A
Ilość pokoi 5 |
Pow. użytkowa 97.9 m² |
Powierzchnia zabudowy 84.5 m² |
Kondygnacje parterowy+poddasze |
Garaż 1 stanowisko |
Technologia murowany |
Szerokość działki 17.4 m |
Obiekt dom |
Typ domu jednorodzinny całoroczny |
Strop gęstożebrowy |
Szerokość budynku 11.9 m |
Kotłownia duża kotłownia |
Kalenica równoległa do drogi |
Długość budynku 11.2 m |
Rodzaj garażu przyklejony |
Piwnica bez podpiwniczenia |
Powierzchnia dachu 136.8 m² |
Rodzaj dachu dwuspadowy |
Wysokość budynku 8.4 m |
Przechowywanie w kuchni spiżarnia |
Długość działki 19.2 m |
Bryła budynku plan litery L |
Styl budynku nowoczesny |
Liczba łazieniek 2 |
Kominek kominek w projekcie |
Kąt nachylenia dachu 35 ° |
Koszty budowy tylko z kosztorysem, 200-250 tys. |
Ilość pokoi 5 |
Powierzchnia zabudowy 84.5 m² |
Garaż 1 stanowisko |
Szerokość działki 17.4 m |
Typ domu jednorodzinny całoroczny |
Szerokość budynku 11.9 m |
Kalenica równoległa do drogi |
Rodzaj garażu przyklejony |
Powierzchnia dachu 136.8 m² |
Wysokość budynku 8.4 m |
Długość działki 19.2 m |
Styl budynku nowoczesny |
Kominek kominek w projekcie |
Koszty budowy tylko z kosztorysem, 200-250 tys. |
Pow. użytkowa 97.9 m² |
Kondygnacje parterowy+poddasze |
Technologia murowany |
Obiekt dom |
Strop gęstożebrowy |
Kotłownia duża kotłownia |
Długość budynku 11.2 m |
Piwnica bez podpiwniczenia |
Rodzaj dachu dwuspadowy |
Przechowywanie w kuchni spiżarnia |
Bryła budynku plan litery L |
Liczba łazieniek 2 |
Kąt nachylenia dachu 35 ° |
Kupując projekt w technologii murowanej powinieneś budować dom murowany. Zupełna zmiana technologii na szkieletową wymaga przeprojektowania całego budynku ( zmieniają się obciążenia, fundamenty, konstrukcja dachu). Wydamy zgodę na takie przeprojektowanie jednak wiążę się to z dużymi kosztami. Istnieją firmy wykonawcze, które podejmują się zmiany technologii budowy bezpłatnie przy skorzystaniu z ich usług wykonawczych. Zdarza się, że pracownia architektoniczna przygotowuje warianty konkretnego projektu przewidując także inne technologie. Prosimy o sprawdzenie czy istnieje poszukiwana wersja projektu, w zakładce - warianty projektu.
Zwężenie/poszerzenie budynku* to nic innego jak zmiana w projekcie. Istnieje możliwość wprowadzenia takich zmian, we własnym zakresie (podczas adaptacji). *zwężenie/poszerzenie budynku nie powinno stanowić problemu w przypadku domów o dachu dwuspadowym jeśli wiąże się to z wydłużeniem/skróceniem kalenicy dachu.
Poznaj praktyczne porady ekspertów, które ułatwią Ci każdy etap budowy i od wyboru wymarzonego domu po jego wykończenie. Zyskaj pewność, że podejmujesz najlepsze decyzje dzięki sprawdzonym wskazówkom od specjalistów z planz.pl
Wycena szacunkowa, w kwotach netto, nie zawiera instalacji.
bezpłatnie (0zł)
przelew zwykły / PayNow
przy odbiorze
3-5 dni roboczych (jeśli projekt nie jest koncepcją)
Wybierz wygodny dla Ciebie czas kontaktu z naszym Doradcą Technicznym.