Głuszec III z garażem 1-st. bliźniak A-BL



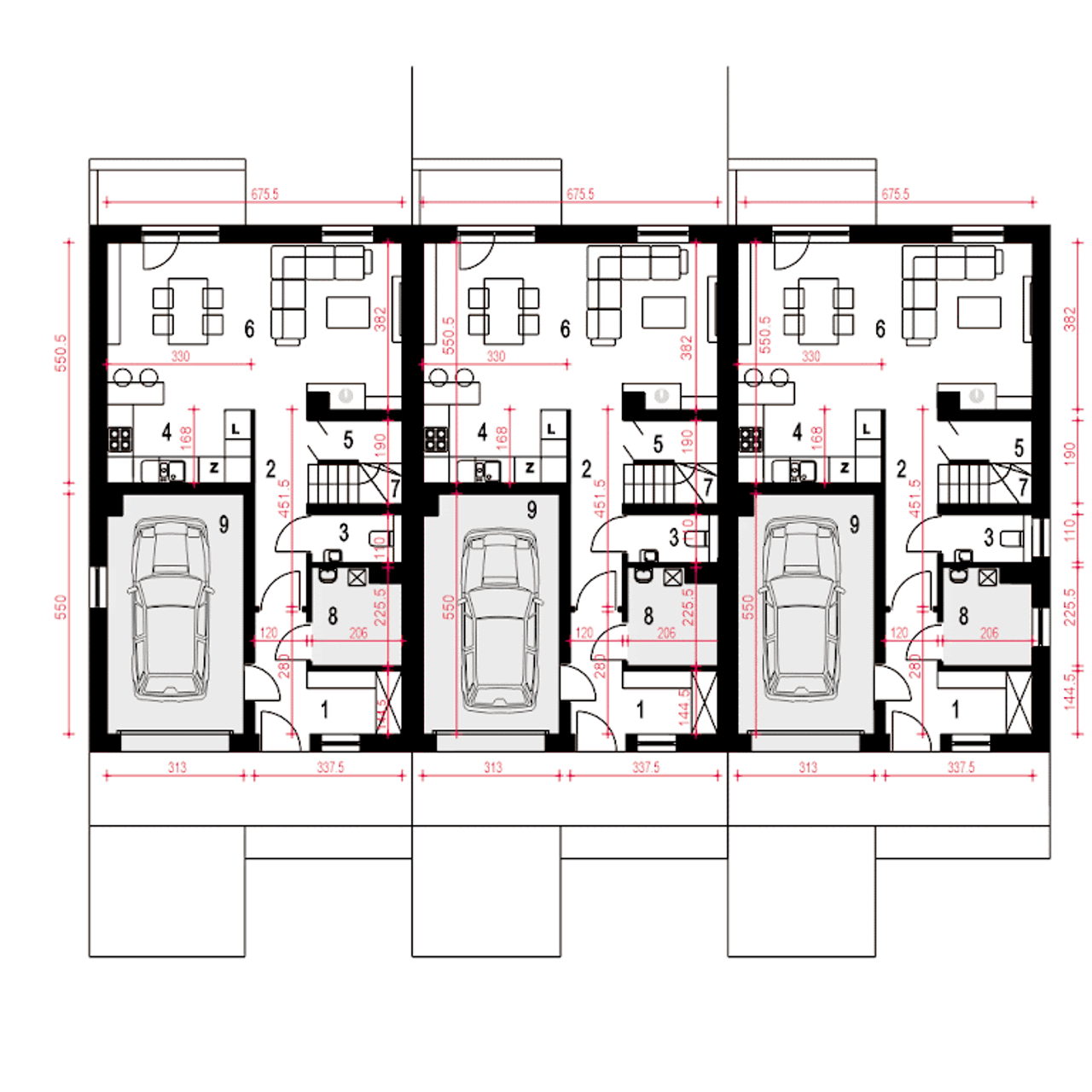
1. Wiatrołap, garderoba | 6,30 m² |
2. Hol | 5,50 m² |
3. Wc | 2,20 m² |
4. Kuchnia | 7,50 m² |
5. Spiżarnia | 1,00 m² |
6. Salon | 23,30 m² |
7. Schody | 4,10 m² |
8. Pom. tech.+co | 4,30 m² |
9. Garaż | 16,80 m² |
1. Hol | 8,00 m² |
2. Sypialnia | 8,30 m² |
3. Sypialnia | 8,00 m² |
4. łazienka | 6,70 m² |
5. łazienka | 3,40 m² |
6. Garderoba | 1,60 m² |
7. Sypialnia | 9,40 m² |
8. Pralnia | 2,70 m² |
Wypełnij formularz i otrzymaj rysunki w pdf z dokładnymi wymiarami budynku i pomieszczeń (długość, szerokość, wysokość) dla projektu Głuszec III z garażem 1-st. szeregówka A-SZ
Ilość pokoi 4 |
Pow. użytkowa 97.9 m² |
Powierzchnia zabudowy 88 m² |
Kondygnacje parterowy+poddasze |
Garaż 1 stanowisko |
Technologia murowany |
Obiekt dom |
Typ domu szeregowy |
Wysokość budynku 8.7 m |
Przechowywanie w kuchni spiżarnia |
Piwnica bez podpiwniczenia |
Bryła budynku prosta bryła |
Długość działki 20.2 m |
Styl budynku nowoczesny |
Kąt nachylenia dachu 35 ° |
Strop gęstożebrowy |
Kalenica równoległa do drogi |
Długość budynku 12.2 m |
Rodzaj garażu w bryle |
Liczba łazieniek 2 |
Funkcje dodatkowe z pralnią |
Powierzchnia dachu 107.4 m² |
Rodzaj dachu dwuspadowy |
Kominek kominek w projekcie |
Koszty budowy tylko z kosztorysem, 200-250 tys. |
Ilość pokoi 4 |
Powierzchnia zabudowy 88 m² |
Garaż 1 stanowisko |
Obiekt dom |
Wysokość budynku 8.7 m |
Piwnica bez podpiwniczenia |
Długość działki 20.2 m |
Kąt nachylenia dachu 35 ° |
Kalenica równoległa do drogi |
Rodzaj garażu w bryle |
Funkcje dodatkowe z pralnią |
Rodzaj dachu dwuspadowy |
Koszty budowy tylko z kosztorysem, 200-250 tys. |
Pow. użytkowa 97.9 m² |
Kondygnacje parterowy+poddasze |
Technologia murowany |
Typ domu szeregowy |
Przechowywanie w kuchni spiżarnia |
Bryła budynku prosta bryła |
Styl budynku nowoczesny |
Strop gęstożebrowy |
Długość budynku 12.2 m |
Liczba łazieniek 2 |
Powierzchnia dachu 107.4 m² |
Kominek kominek w projekcie |
Kupując projekt w technologii murowanej powinieneś budować dom murowany. Zupełna zmiana technologii na szkieletową wymaga przeprojektowania całego budynku ( zmieniają się obciążenia, fundamenty, konstrukcja dachu). Wydamy zgodę na takie przeprojektowanie jednak wiążę się to z dużymi kosztami. Istnieją firmy wykonawcze, które podejmują się zmiany technologii budowy bezpłatnie przy skorzystaniu z ich usług wykonawczych. Zdarza się, że pracownia architektoniczna przygotowuje warianty konkretnego projektu przewidując także inne technologie. Prosimy o sprawdzenie czy istnieje poszukiwana wersja projektu, w zakładce - warianty projektu.
Zwężenie/poszerzenie budynku* to nic innego jak zmiana w projekcie. Istnieje możliwość wprowadzenia takich zmian, we własnym zakresie (podczas adaptacji). *zwężenie/poszerzenie budynku nie powinno stanowić problemu w przypadku domów o dachu dwuspadowym jeśli wiąże się to z wydłużeniem/skróceniem kalenicy dachu.
Poznaj praktyczne porady ekspertów, które ułatwią Ci każdy etap budowy i od wyboru wymarzonego domu po jego wykończenie. Zyskaj pewność, że podejmujesz najlepsze decyzje dzięki sprawdzonym wskazówkom od specjalistów z planz.pl
Wycena szacunkowa, w kwotach netto, nie zawiera instalacji.
bezpłatnie (0zł)
przelew zwykły / PayNow
przy odbiorze
3-5 dni roboczych (jeśli projekt nie jest koncepcją)
Wybierz wygodny dla Ciebie czas kontaktu z naszym Doradcą Technicznym.