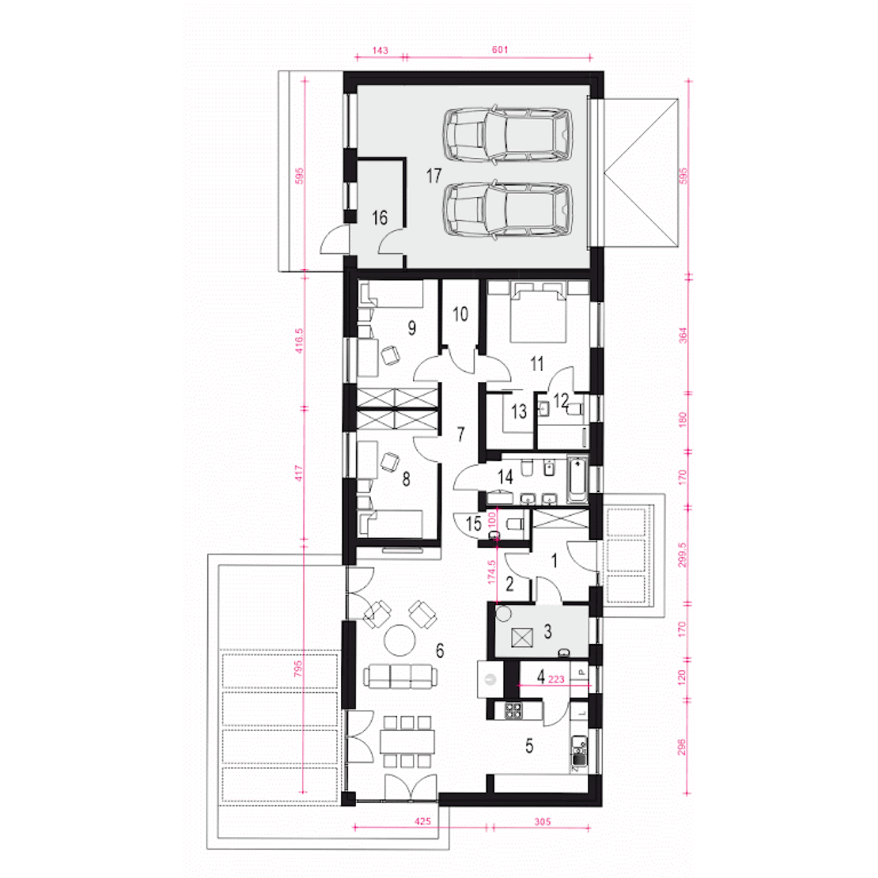
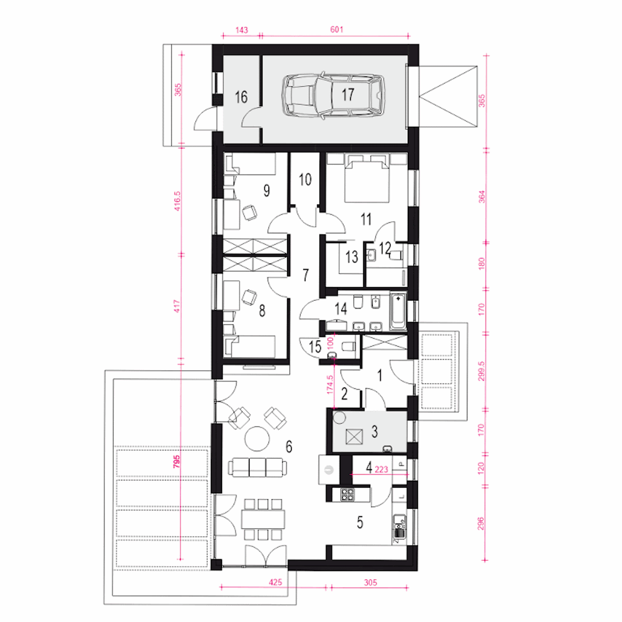
Flora bez garażu B



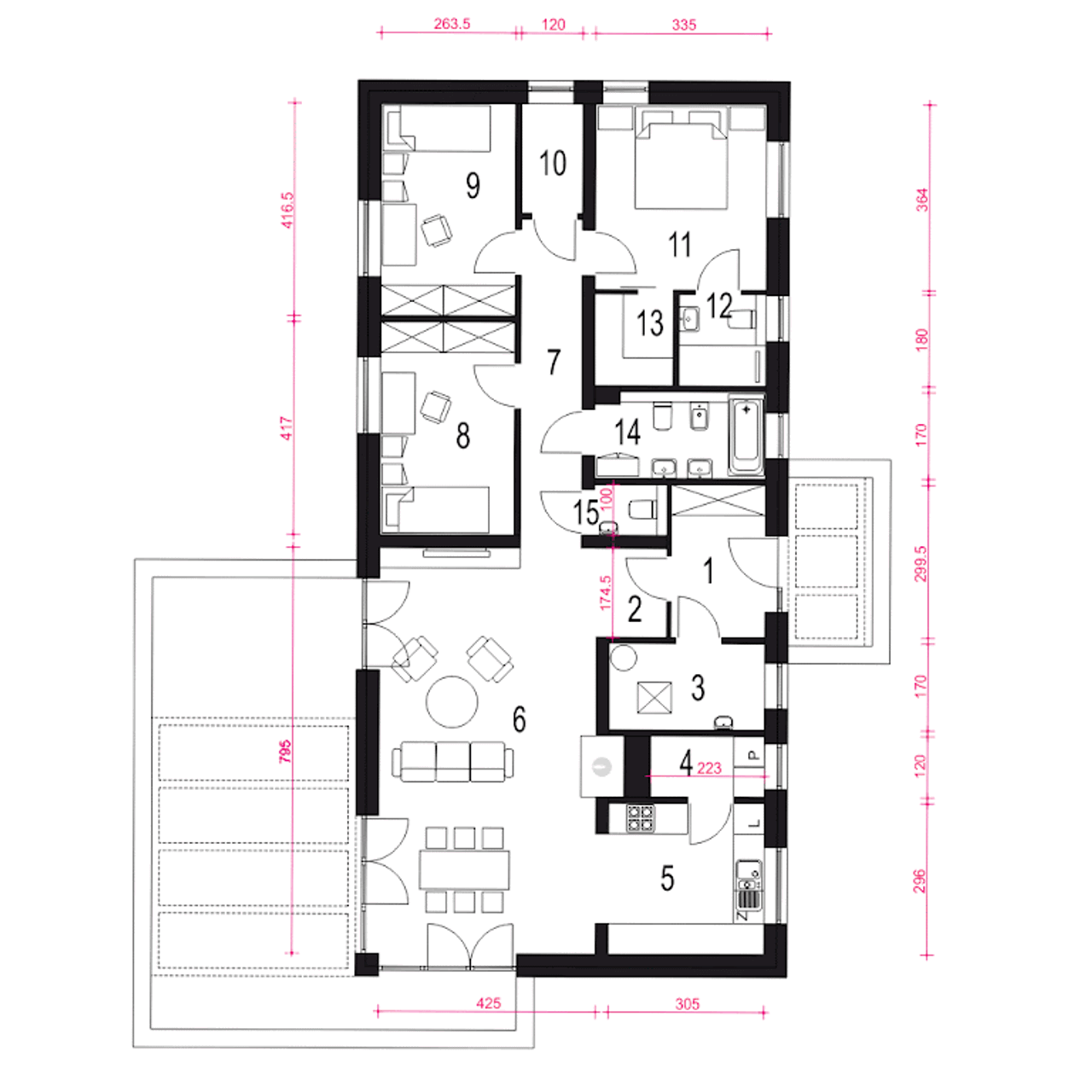
1. Wiatrołap | 5,40 m² |
2. Hol | 2,30 m² |
3. Kotłownia | 5,50 m² |
4. Pralnia/spiżarnia | 2,60 m² |
5. Kuchnia | 8,80 m² |
6. Salon | 34,60 m² |
7. Korytarz | 7,50 m² |
8. Sypialnia | 10,80 m² |
9. Sypialnia | 10,80 m² |
10. Garderoba | 2,50 m² |
11. Sypialnia | 12,30 m² |
12. łazienka | 2,90 m² |
13. Garderoba | 2,80 m² |
14. łazienka | 5,40 m² |
15. Wc | 1,30 m² |
16. Pom. gospodarcze | 5,10 m² |
17. Garaż | 21,60 m² |
Wypełnij formularz i otrzymaj rysunki w pdf z dokładnymi wymiarami budynku i pomieszczeń (długość, szerokość, wysokość) dla projektu Flora z garażem 1-st. A
Pow. użytkowa 110 m² |
Ilość pokoi 4 |
Powierzchnia zabudowy 183 m² |
Kondygnacje parterowy |
Garaż 1 stanowisko |
Technologia murowany |
Szerokość działki 16.5 m |
Obiekt dom |
Typ domu jednorodzinny całoroczny |
Kubatura 301 m³ |
Rodzaj garażu przyklejony |
Powierzchnia dachu 171.5 m² |
Rodzaj dachu dwuspadowy |
Długość działki 28.7 m |
Wysokość budynku 6 m |
Przechowywanie w kuchni spiżarnia |
Bryła budynku prosta bryła |
Styl budynku nowoczesny |
Liczba łazieniek 2 |
Szerokość budynku 8.5 m |
Kominek kominek w projekcie |
Kąt nachylenia dachu 30 ° |
Kalenica równoległa do drogi |
Długość budynku 21.7 m |
Piwnica bez podpiwniczenia |
Koszty budowy tylko z kosztorysem, 250-300 tys. |
Pow. użytkowa 110 m² |
Powierzchnia zabudowy 183 m² |
Garaż 1 stanowisko |
Szerokość działki 16.5 m |
Typ domu jednorodzinny całoroczny |
Rodzaj garażu przyklejony |
Rodzaj dachu dwuspadowy |
Wysokość budynku 6 m |
Bryła budynku prosta bryła |
Liczba łazieniek 2 |
Kominek kominek w projekcie |
Kalenica równoległa do drogi |
Piwnica bez podpiwniczenia |
Ilość pokoi 4 |
Kondygnacje parterowy |
Technologia murowany |
Obiekt dom |
Kubatura 301 m³ |
Powierzchnia dachu 171.5 m² |
Długość działki 28.7 m |
Przechowywanie w kuchni spiżarnia |
Styl budynku nowoczesny |
Szerokość budynku 8.5 m |
Kąt nachylenia dachu 30 ° |
Długość budynku 21.7 m |
Koszty budowy tylko z kosztorysem, 250-300 tys. |
Kupując projekt w technologii murowanej powinieneś budować dom murowany. Zupełna zmiana technologii na szkieletową wymaga przeprojektowania całego budynku ( zmieniają się obciążenia, fundamenty, konstrukcja dachu). Wydamy zgodę na takie przeprojektowanie jednak wiążę się to z dużymi kosztami. Istnieją firmy wykonawcze, które podejmują się zmiany technologii budowy bezpłatnie przy skorzystaniu z ich usług wykonawczych. Zdarza się, że pracownia architektoniczna przygotowuje warianty konkretnego projektu przewidując także inne technologie. Prosimy o sprawdzenie czy istnieje poszukiwana wersja projektu, w zakładce - warianty projektu.
Zwężenie/poszerzenie budynku* to nic innego jak zmiana w projekcie. Istnieje możliwość wprowadzenia takich zmian, we własnym zakresie (podczas adaptacji). *zwężenie/poszerzenie budynku nie powinno stanowić problemu w przypadku domów o dachu dwuspadowym jeśli wiąże się to z wydłużeniem/skróceniem kalenicy dachu.
Poznaj praktyczne porady ekspertów, które ułatwią Ci każdy etap budowy i od wyboru wymarzonego domu po jego wykończenie. Zyskaj pewność, że podejmujesz najlepsze decyzje dzięki sprawdzonym wskazówkom od specjalistów z planz.pl
Wycena szacunkowa, w kwotach netto, nie zawiera instalacji.
bezpłatnie (0zł)
przelew zwykły / PayNow
przy odbiorze
3-5 dni roboczych (jeśli projekt nie jest koncepcją)
Wybierz wygodny dla Ciebie czas kontaktu z naszym Doradcą Technicznym.