Tymek AP garaż



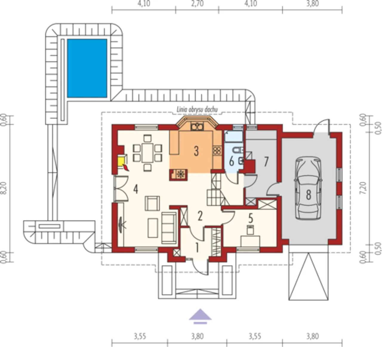
1. Wiatrołap | 4,88 m² |
2. Hol | 13,25 m² |
3. Kuchnia | 10,18 m² |
4. Pokój dzienny, jadalnia | 25,88 m² |
5. Gabinet | 8,84 m² |
6. łazienka | 3,04 m² |
7. Pom. gospodarcze | 7,68 m² |
8. Garaż | 22,35 m² |
1. Korytarz | 5,30 m² |
2. Sypialnia | 11,95 m² |
3. Garderoba | 2,93 m² |
4. Sypialnia | 13,22 m² |
5. Sypialnia | 10,00 m² |
6. łazienka | 9,00 m² |
7. Pralnia | 2,40 m² |
Wypełnij formularz i otrzymaj rysunki w pdf z dokładnymi wymiarami budynku i pomieszczeń (długość, szerokość, wysokość) dla projektu Flawia G1
Ilość pokoi 4 |
Pow. użytkowa 120.49 m² |
Powierzchnia zabudowy 120.47 m² |
Kondygnacje parterowy+poddasze |
Garaż 1 stanowisko |
Technologia murowany |
Szerokość działki 25.1 m |
Obiekt dom |
Typ domu jednorodzinny całoroczny |
Powierzchnia dachu 208.85 m² |
Kąt nachylenia dachu drugiego 15 |
Długość działki 20.9 m |
Ogrzewanie gaz, paliwo stałe |
Wysokość budynku 8.54 m |
Styl budynku tradycyjny |
Liczba łazieniek 2 |
Kalenica równoległa do drogi |
Szerokość budynku 9.4 m |
Kominek kominek w projekcie |
Kąt nachylenia dachu 43 ° |
Długość budynku 14.7 m |
Piwnica bez podpiwniczenia |
Funkcje dodatkowe z pralnią |
Kubatura 461.76 m³ |
Rodzaj dachu dwuspadowy |
Koszty budowy tylko z kosztorysem, 250-300 tys. |
Ilość pokoi 4 |
Powierzchnia zabudowy 120.47 m² |
Garaż 1 stanowisko |
Szerokość działki 25.1 m |
Typ domu jednorodzinny całoroczny |
Kąt nachylenia dachu drugiego 15 |
Ogrzewanie gaz, paliwo stałe |
Styl budynku tradycyjny |
Kalenica równoległa do drogi |
Kominek kominek w projekcie |
Długość budynku 14.7 m |
Funkcje dodatkowe z pralnią |
Rodzaj dachu dwuspadowy |
Pow. użytkowa 120.49 m² |
Kondygnacje parterowy+poddasze |
Technologia murowany |
Obiekt dom |
Powierzchnia dachu 208.85 m² |
Długość działki 20.9 m |
Wysokość budynku 8.54 m |
Liczba łazieniek 2 |
Szerokość budynku 9.4 m |
Kąt nachylenia dachu 43 ° |
Piwnica bez podpiwniczenia |
Kubatura 461.76 m³ |
Koszty budowy tylko z kosztorysem, 250-300 tys. |
Kupując projekt w technologii murowanej powinieneś budować dom murowany. Zupełna zmiana technologii na szkieletową wymaga przeprojektowania całego budynku ( zmieniają się obciążenia, fundamenty, konstrukcja dachu). Wydamy zgodę na takie przeprojektowanie jednak wiążę się to z dużymi kosztami. Istnieją firmy wykonawcze, które podejmują się zmiany technologii budowy bezpłatnie przy skorzystaniu z ich usług wykonawczych. Zdarza się, że pracownia architektoniczna przygotowuje warianty konkretnego projektu przewidując także inne technologie. Prosimy o sprawdzenie czy istnieje poszukiwana wersja projektu, w zakładce - warianty projektu.
Zwężenie/poszerzenie budynku* to nic innego jak zmiana w projekcie. Istnieje możliwość wprowadzenia takich zmian, we własnym zakresie (podczas adaptacji). *zwężenie/poszerzenie budynku nie powinno stanowić problemu w przypadku domów o dachu dwuspadowym jeśli wiąże się to z wydłużeniem/skróceniem kalenicy dachu.
Poznaj praktyczne porady ekspertów, które ułatwią Ci każdy etap budowy i od wyboru wymarzonego domu po jego wykończenie. Zyskaj pewność, że podejmujesz najlepsze decyzje dzięki sprawdzonym wskazówkom od specjalistów z planz.pl
Wycena szacunkowa, w kwotach netto, nie zawiera instalacji.
bezpłatnie (0zł)
przelew zwykły / PayNow
przy odbiorze
3-5 dni roboczych (jeśli projekt nie wymaga aktualizacji)
Wybierz wygodny dla Ciebie czas kontaktu z naszym Doradcą Technicznym.