BALTAZAR G2



Zawartość projektu
- opis techniczny – zawiera rozwiązania funkcjonalne projektu, wielkości powierzchni (całkowitej, zabudowy, użytkowej), kubatury, wysokość kalenicy itp., proponowane rozwiązania materiałowe i wykończeniowe
- widoki elewacji obrazujące wygląd domu z każdej strony w skali 1:100
- rzuty poziome kondygnacji (rozmieszczenie i zwymiarowane wielkości pomieszczeń, umiejscowienie kominów, wentylacji, urządzeń sanitarnych i kuchennych) w skali 1:100
- rzut dachu w skali 1:100
- przekroje pionowe ze szczególnym uwzględnieniem miejsc charakterystycznych budynku wykonane w skali 1:50
- zestawienie stolarki drzwiowej i okiennej z ilościami i wymiarami
- charakterystyka energetyczna wraz z analizą porównawczą systemów ogrzewania
W części technicznej znajdują się:
1. Część konstrukcyjna, która zawiera:
- rysunki techniczne w rozpiętości skal od 1:20 do 1:100
- opis techniczny rozwiązań konstrukcyjnych wraz z proponowanymi materiałami
- rzuty fundamentów, stropów i więźby dachowej
- rozwiązania detali konstrukcyjnych
- obliczenia statyczne
- zestawienia stali i drewna
2. Część instalacyjna – to szereg projektów branżowych, których rysunki wykonano w skali 1:100 prezentujących miedzy innymi rozmieszczenie elementów instalacji:
- elektrycznej
- wodno-kanalizacyjnej
- gazowej
- centralnego ogrzewania
- rekuperacji, solarnej - jeżeli występują w projekcie
3. Dodatki – najczęściej są to:
- obliczenia statyczne
- zestawienia stali i drewna
Zawartość projektu nie dotyczy budynków gospodarczych, garaży oraz obiektów malej architektury.
1. Wiatrołap | 6,34 m² |
2. Hall | 5,27 m² |
3. Kuchnia | 11,03 m² |
4. Spiżarnia | 1,45 m² |
5. Jadalnia | 15,26 m² |
6. Salon | 24,54 m² |
7. Gabinet | 12,34 m² |
8. Garderoba | 2,74 m² |
9. łazienka | 4,41 m² |
10. Pom.gospodarcze | 5,25 m² |
11. Garaż | 35,74 m² |
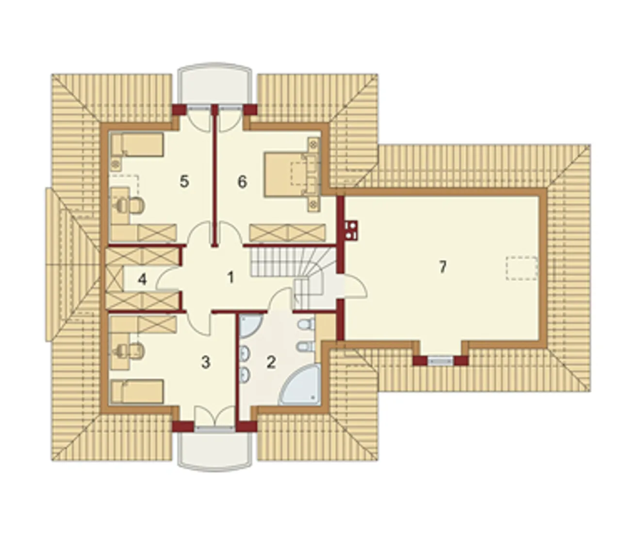
1. Hall | 7,15 (7,29) m² |
2. łazienka | 7,55 (13,40) m² |
3. Pokój | 13,61 (19,48) m² |
4. Garderoba | 4,54 (6,86) m² |
5. Pokój | 13,13 (19,78) m² |
6. Pokój | 13,36 (19,78) m² |
7. Strych | 26,00 (47,23) m² |
Wypełnij formularz i otrzymaj rysunki w pdf z dokładnymi wymiarami budynku i pomieszczeń (długość, szerokość, wysokość) dla projektu FIDIASZ 2
Pow. użytkowa 142.72 m² |
Ilość pokoi 5 |
Powierzchnia zabudowy 159.27 m² |
Kondygnacje parterowy+poddasze |
Garaż 2 stanowiska |
Technologia murowany |
Szerokość działki 25.18 m |
Obiekt dom |
Typ domu jednorodzinny całoroczny |
Wysokość budynku 8.55 m |
Styl budynku tradycyjny |
Liczba łazieniek 2 |
Szerokość budynku 18.18 m |
Kominek kominek w projekcie |
Kąt nachylenia dachu 40 ° |
Kalenica prostopadła do drogi |
Długość budynku 11.81 m |
Rodzaj garażu przyklejony |
Piwnica bez podpiwniczenia |
Funkcje dodatkowe ze strychem |
Kubatura 709.63 m³ |
Rodzaj dachu wielospadowy |
Powierzchnia dachu 312.64 m² |
Przechowywanie w kuchni spiżarnia |
Długość działki 19.81 m |
Koszty budowy 400-450 tys., tylko z kosztorysem |
Pow. użytkowa 142.72 m² |
Powierzchnia zabudowy 159.27 m² |
Garaż 2 stanowiska |
Szerokość działki 25.18 m |
Typ domu jednorodzinny całoroczny |
Styl budynku tradycyjny |
Szerokość budynku 18.18 m |
Kąt nachylenia dachu 40 ° |
Długość budynku 11.81 m |
Piwnica bez podpiwniczenia |
Kubatura 709.63 m³ |
Powierzchnia dachu 312.64 m² |
Długość działki 19.81 m |
Ilość pokoi 5 |
Kondygnacje parterowy+poddasze |
Technologia murowany |
Obiekt dom |
Wysokość budynku 8.55 m |
Liczba łazieniek 2 |
Kominek kominek w projekcie |
Kalenica prostopadła do drogi |
Rodzaj garażu przyklejony |
Funkcje dodatkowe ze strychem |
Rodzaj dachu wielospadowy |
Przechowywanie w kuchni spiżarnia |
Koszty budowy 400-450 tys., tylko z kosztorysem |
Kupując projekt w technologii murowanej powinieneś budować dom murowany. Zupełna zmiana technologii na szkieletową wymaga przeprojektowania całego budynku ( zmieniają się obciążenia, fundamenty, konstrukcja dachu). Wydamy zgodę na takie przeprojektowanie jednak wiążę się to z dużymi kosztami. Istnieją firmy wykonawcze, które podejmują się zmiany technologii budowy bezpłatnie przy skorzystaniu z ich usług wykonawczych. Zdarza się, że pracownia architektoniczna przygotowuje warianty konkretnego projektu przewidując także inne technologie. Prosimy o sprawdzenie czy istnieje poszukiwana wersja projektu, w zakładce - warianty projektu.
Zwężenie/poszerzenie budynku* to nic innego jak zmiana w projekcie. Istnieje możliwość wprowadzenia takich zmian, we własnym zakresie (podczas adaptacji). *zwężenie/poszerzenie budynku nie powinno stanowić problemu w przypadku domów o dachu dwuspadowym jeśli wiąże się to z wydłużeniem/skróceniem kalenicy dachu.
Poznaj praktyczne porady ekspertów, które ułatwią Ci każdy etap budowy i od wyboru wymarzonego domu po jego wykończenie. Zyskaj pewność, że podejmujesz najlepsze decyzje dzięki sprawdzonym wskazówkom od specjalistów z planz.pl
Wycena szacunkowa, w kwotach netto, nie zawiera instalacji.
bezpłatnie (0zł)
przelew zwykły / PayNow
przy odbiorze
3-6 dni roboczych
Wybierz wygodny dla Ciebie czas kontaktu z naszym Doradcą Technicznym.