EX 16 G1 MULTI-COMFORT



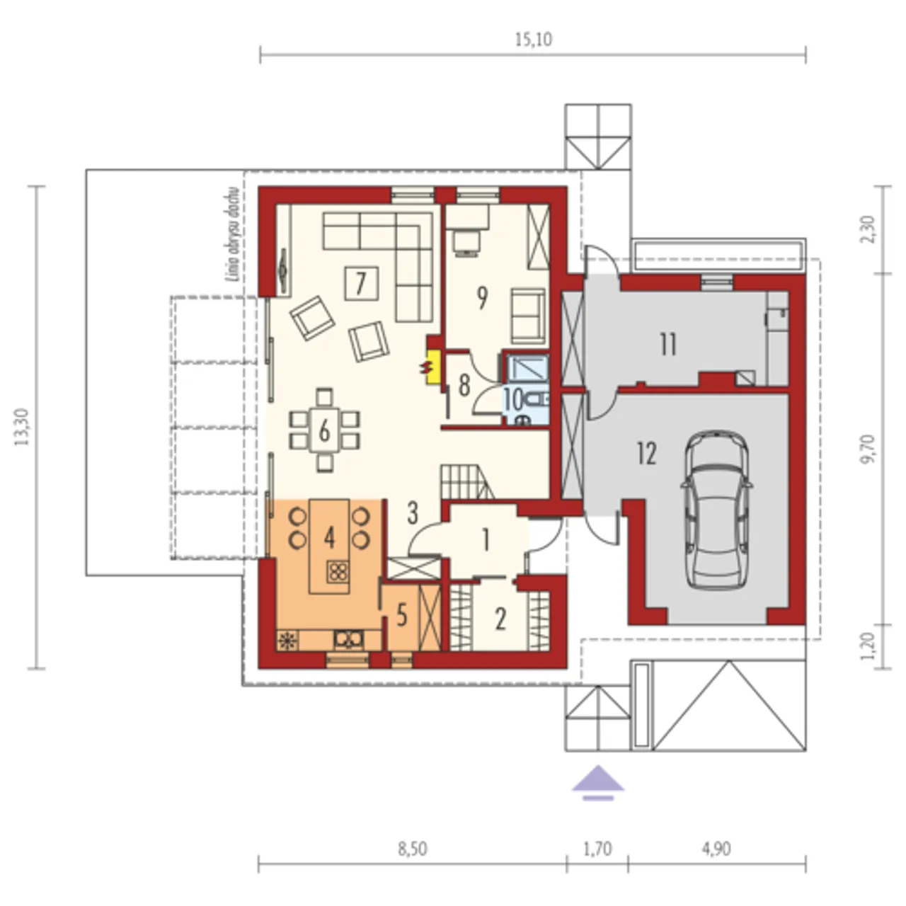
1. Wiatrołap | 3,81 m² |
2. Garderoba | 4,84 m² |
3. Hol z klatką schodową | 13,29 m² |
4. Kuchnia | 12,21 m² |
5. Spiżarnia | 2,71 m² |
6. Jadalnia | 8,96 m² |
7. Pokój dzienny | 23,45 m² |
8. Korytarz | 3,00 m² |
9. Gabinet | 10,93 m² |
10. łazienka | 2,30 m² |
11. Kotłownia | 16,13 m² |
12. Garaż | 29,93 m² |
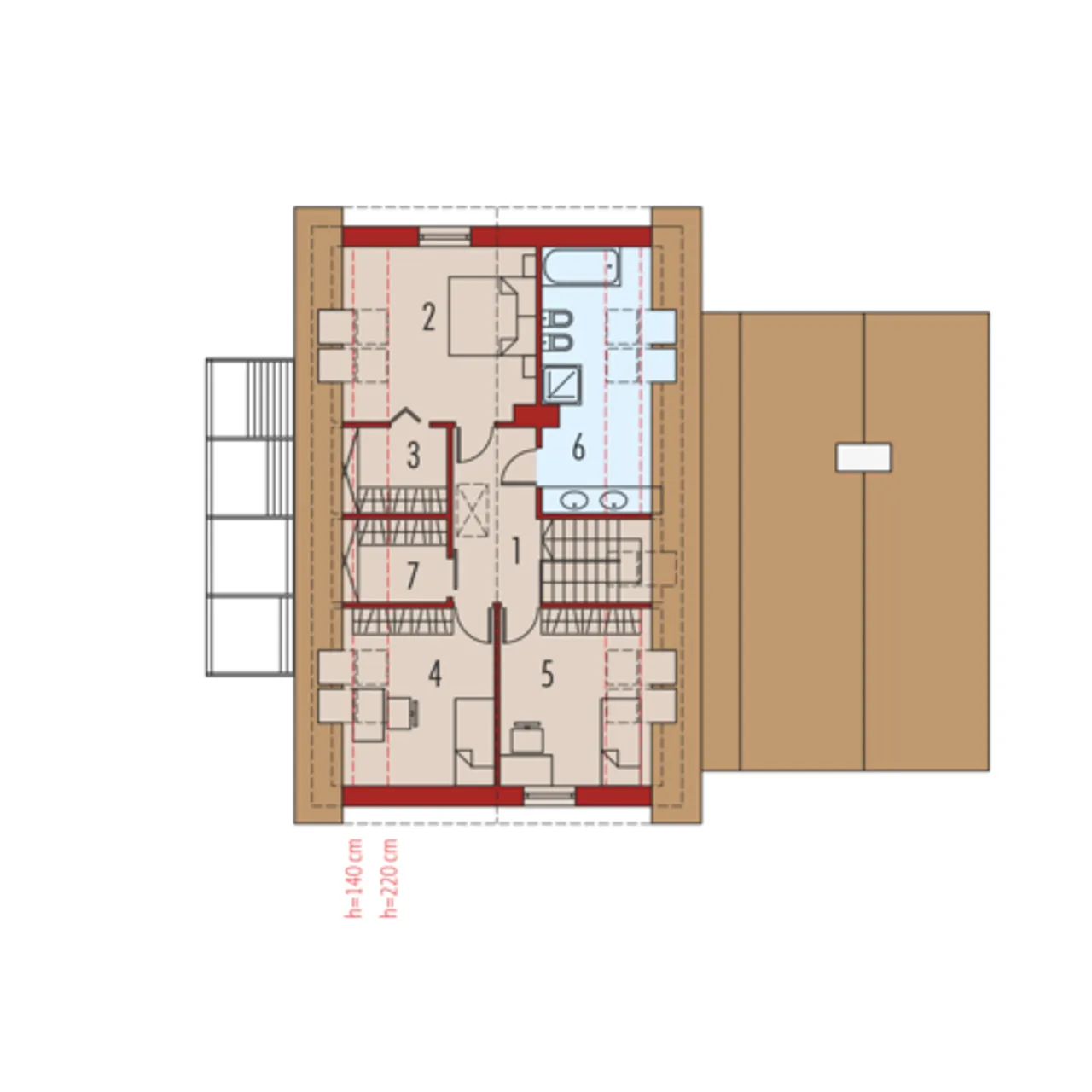
1. Korytarz | 7,85 m² |
2. Sypialnia | 14,93 m² |
3. Garderoba | 3,42 m² |
4. Sypialnia | 11,47 m² |
5. Sypialnia | 11,42 m² |
6. łazienka | 11,32 m² |
7. Garderoba | 3,32 m² |
Wypełnij formularz i otrzymaj rysunki w pdf z dokładnymi wymiarami budynku i pomieszczeń (długość, szerokość, wysokość) dla projektu EX 16 II G1
Ilość pokoi 4 |
Pow. użytkowa 149.23 m² |
Powierzchnia zabudowy 172.6 m² |
Kondygnacje parterowy+poddasze |
Garaż 1 stanowisko |
Technologia murowany |
Szerokość działki 24.5 m |
Obiekt dom |
Typ domu jednorodzinny całoroczny |
Funkcje dodatkowe z dwoma wejściami |
Kubatura 566.59 m³ |
Przechowywanie w kuchni spiżarnia |
Powierzchnia dachu 252.1 m² |
Długość działki 23.3 m |
Styl budynku nowoczesny |
Wysokość budynku 8.92 m |
Liczba łazieniek 2 |
Strop gęstożebrowy |
Kominek kominek w projekcie |
Kąt nachylenia dachu 45 ° |
Kalenica prostopadła do drogi |
Szerokość budynku 15.1 m |
Rodzaj garażu przyklejony |
Kotłownia duża kotłownia |
Długość budynku 13.3 m |
Rodzaj dachu dwuspadowy |
Piwnica bez podpiwniczenia |
Koszty budowy 350-400 tys., tylko z kosztorysem |
Ilość pokoi 4 |
Powierzchnia zabudowy 172.6 m² |
Garaż 1 stanowisko |
Szerokość działki 24.5 m |
Typ domu jednorodzinny całoroczny |
Kubatura 566.59 m³ |
Powierzchnia dachu 252.1 m² |
Styl budynku nowoczesny |
Liczba łazieniek 2 |
Kominek kominek w projekcie |
Kalenica prostopadła do drogi |
Rodzaj garażu przyklejony |
Długość budynku 13.3 m |
Piwnica bez podpiwniczenia |
Pow. użytkowa 149.23 m² |
Kondygnacje parterowy+poddasze |
Technologia murowany |
Obiekt dom |
Funkcje dodatkowe z dwoma wejściami |
Przechowywanie w kuchni spiżarnia |
Długość działki 23.3 m |
Wysokość budynku 8.92 m |
Strop gęstożebrowy |
Kąt nachylenia dachu 45 ° |
Szerokość budynku 15.1 m |
Kotłownia duża kotłownia |
Rodzaj dachu dwuspadowy |
Koszty budowy 350-400 tys., tylko z kosztorysem |
Kupując projekt w technologii murowanej powinieneś budować dom murowany. Zupełna zmiana technologii na szkieletową wymaga przeprojektowania całego budynku ( zmieniają się obciążenia, fundamenty, konstrukcja dachu). Wydamy zgodę na takie przeprojektowanie jednak wiążę się to z dużymi kosztami. Istnieją firmy wykonawcze, które podejmują się zmiany technologii budowy bezpłatnie przy skorzystaniu z ich usług wykonawczych. Zdarza się, że pracownia architektoniczna przygotowuje warianty konkretnego projektu przewidując także inne technologie. Prosimy o sprawdzenie czy istnieje poszukiwana wersja projektu, w zakładce - warianty projektu.
Zwężenie/poszerzenie budynku* to nic innego jak zmiana w projekcie. Istnieje możliwość wprowadzenia takich zmian, we własnym zakresie (podczas adaptacji). *zwężenie/poszerzenie budynku nie powinno stanowić problemu w przypadku domów o dachu dwuspadowym jeśli wiąże się to z wydłużeniem/skróceniem kalenicy dachu.
Poznaj praktyczne porady ekspertów, które ułatwią Ci każdy etap budowy i od wyboru wymarzonego domu po jego wykończenie. Zyskaj pewność, że podejmujesz najlepsze decyzje dzięki sprawdzonym wskazówkom od specjalistów z planz.pl
Wycena szacunkowa, w kwotach netto, nie zawiera instalacji.
bezpłatnie (0zł)
przelew zwykły / PayNow
przy odbiorze
3-5 dni roboczych (jeśli projekt nie wymaga aktualizacji)
Projekt domu EX-16-II-G1 Archipelag jest idealnym rozwiązaniem dla osób ceniących przestronność i funkcjonalność. Bardzo podoba mi się otwarty układ parteru, który sprzyja integracji rodziny. Duże okna natomiast sprawiają, że wnętrze domu jest jasne i pełne naturalnego światła, co wydaje się być niezwykle istotne szczególnie w okresie jesienno-zimowym.
Wybierz wygodny dla Ciebie czas kontaktu z naszym Doradcą Technicznym.