EX 15 II soft



1. Wiatrołap | 3,03 m² |
2. Hol + schody | 12,61 m² |
3. Kuchnia | 10,57 m² |
4. Spiżarnia | 1,81 m² |
5. Jadalnia | 14,62 m² |
6. Pokój dzienny | 30,31 m² |
7. łazienka | 2,26 m² |
8. Gabinet | 9,22 m² |
9. Garderoba | 1,83 m² |
10. Pom. techniczne | 7,56 m² |
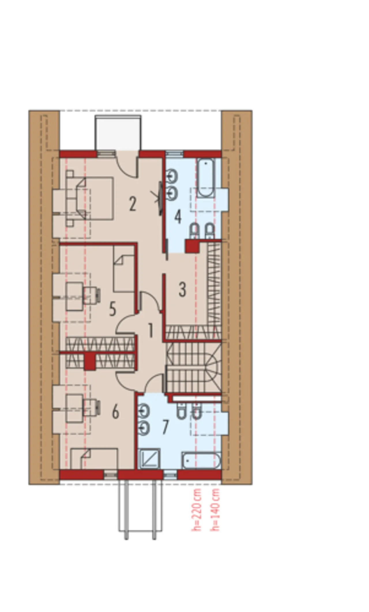
1. Korytarz | 4,06 m² |
2. Sypialnia | 16,42 m² |
3. Garderoba | 6,78 m² |
4. łazienka | 5,89 m² |
5. Sypialnia | 11,40 m² |
6. Sypialnia | 11,82 m² |
7. łazienka | 8,64 m² |
Wypełnij formularz i otrzymaj rysunki w pdf z dokładnymi wymiarami budynku i pomieszczeń (długość, szerokość, wysokość) dla projektu EX 15 soft
Pow. użytkowa 151.27 m² |
Ilość pokoi 4 |
Powierzchnia zabudowy 134.18 m² |
Kondygnacje parterowy+poddasze |
Garaż bez garażu |
Technologia murowany |
Szerokość działki 16.5 m |
Obiekt dom |
Typ domu jednorodzinny całoroczny |
Wysokość budynku 8.66 m |
Bryła budynku prosta bryła |
Liczba łazieniek 2 |
Styl budynku nowoczesny |
Kominek kominek w projekcie |
Kąt nachylenia dachu 45 ° |
Strop gęstożebrowy |
Szerokość budynku 8.5 m |
Kotłownia duża kotłownia |
Kalenica prostopadła do drogi |
Długość budynku 15.7 m |
Piwnica bez podpiwniczenia |
Kubatura 610.44 m³ |
Rodzaj dachu dwuspadowy |
Ogrzewanie gaz, paliwo stałe |
Powierzchnia dachu 195.5 m² |
Przechowywanie w kuchni spiżarnia |
Długość działki 25.7 m |
Koszty budowy 300-350 tys., tylko z kosztorysem |
Pow. użytkowa 151.27 m² |
Powierzchnia zabudowy 134.18 m² |
Garaż bez garażu |
Szerokość działki 16.5 m |
Typ domu jednorodzinny całoroczny |
Bryła budynku prosta bryła |
Styl budynku nowoczesny |
Kąt nachylenia dachu 45 ° |
Szerokość budynku 8.5 m |
Kalenica prostopadła do drogi |
Piwnica bez podpiwniczenia |
Rodzaj dachu dwuspadowy |
Powierzchnia dachu 195.5 m² |
Długość działki 25.7 m |
Ilość pokoi 4 |
Kondygnacje parterowy+poddasze |
Technologia murowany |
Obiekt dom |
Wysokość budynku 8.66 m |
Liczba łazieniek 2 |
Kominek kominek w projekcie |
Strop gęstożebrowy |
Kotłownia duża kotłownia |
Długość budynku 15.7 m |
Kubatura 610.44 m³ |
Ogrzewanie gaz, paliwo stałe |
Przechowywanie w kuchni spiżarnia |
Koszty budowy 300-350 tys., tylko z kosztorysem |
Kupując projekt w technologii murowanej powinieneś budować dom murowany. Zupełna zmiana technologii na szkieletową wymaga przeprojektowania całego budynku ( zmieniają się obciążenia, fundamenty, konstrukcja dachu). Wydamy zgodę na takie przeprojektowanie jednak wiążę się to z dużymi kosztami. Istnieją firmy wykonawcze, które podejmują się zmiany technologii budowy bezpłatnie przy skorzystaniu z ich usług wykonawczych. Zdarza się, że pracownia architektoniczna przygotowuje warianty konkretnego projektu przewidując także inne technologie. Prosimy o sprawdzenie czy istnieje poszukiwana wersja projektu, w zakładce - warianty projektu.
Zwężenie/poszerzenie budynku* to nic innego jak zmiana w projekcie. Istnieje możliwość wprowadzenia takich zmian, we własnym zakresie (podczas adaptacji). *zwężenie/poszerzenie budynku nie powinno stanowić problemu w przypadku domów o dachu dwuspadowym jeśli wiąże się to z wydłużeniem/skróceniem kalenicy dachu.
Poznaj praktyczne porady ekspertów, które ułatwią Ci każdy etap budowy i od wyboru wymarzonego domu po jego wykończenie. Zyskaj pewność, że podejmujesz najlepsze decyzje dzięki sprawdzonym wskazówkom od specjalistów z planz.pl
Wycena szacunkowa, w kwotach netto, nie zawiera instalacji.
bezpłatnie (0zł)
przelew zwykły / PayNow
przy odbiorze
3-5 dni roboczych (jeśli projekt nie wymaga aktualizacji)
Wybierz wygodny dla Ciebie czas kontaktu z naszym Doradcą Technicznym.