Erna drewniana



Wypełnij formularz i otrzymaj rysunki w pdf z dokładnymi wymiarami budynku i pomieszczeń (długość, szerokość, wysokość) dla projektu Erna 3
Pow. użytkowa 64.97 m² |
Ilość pokoi 3 |
Powierzchnia zabudowy 69.56 m² |
Kondygnacje parterowy+poddasze |
Garaż bez garażu |
Technologia murowany |
Szerokość działki 15.75 m |
Obiekt dom |
Typ domu jednorodzinny całoroczny |
Wysokość budynku 7.08 m |
Styl budynku nowoczesny |
Kalenica równoległa do drogi |
Liczba łazieniek 3 |
Szerokość budynku 8.75 m |
Kominek kominek w projekcie |
Kąt nachylenia dachu 35 ° |
Długość budynku 7.95 m |
Rodzaj dachu dwuspadowy |
Piwnica bez podpiwniczenia |
Kubatura 395 m³ |
Powierzchnia dachu 122 m² |
Długość działki 16.95 m |
Koszty budowy tylko z kosztorysem, 100-150 tys. |
Pow. użytkowa 64.97 m² |
Powierzchnia zabudowy 69.56 m² |
Garaż bez garażu |
Szerokość działki 15.75 m |
Typ domu jednorodzinny całoroczny |
Styl budynku nowoczesny |
Liczba łazieniek 3 |
Kominek kominek w projekcie |
Długość budynku 7.95 m |
Piwnica bez podpiwniczenia |
Powierzchnia dachu 122 m² |
Koszty budowy tylko z kosztorysem, 100-150 tys. |
Ilość pokoi 3 |
Kondygnacje parterowy+poddasze |
Technologia murowany |
Obiekt dom |
Wysokość budynku 7.08 m |
Kalenica równoległa do drogi |
Szerokość budynku 8.75 m |
Kąt nachylenia dachu 35 ° |
Rodzaj dachu dwuspadowy |
Kubatura 395 m³ |
Długość działki 16.95 m |
Erna 3 to projekt domu jednorodzinnego, który powstał z myślą o wygodzie i funkcjonalności dla całej rodziny. Przemyślana architektura, nowoczesny charakter i zastosowanie sprawdzonych technologii czynią ten dom świetnym wyborem dla osób ceniących energooszczędność oraz łatwość montażu. Dom bez garażu, z malowniczą kalenicą równoległą do drogi oraz dachem o kącie nachylenia 35° doskonale wpisze się zarówno w miejskie, jak i podmiejskie otoczenie.
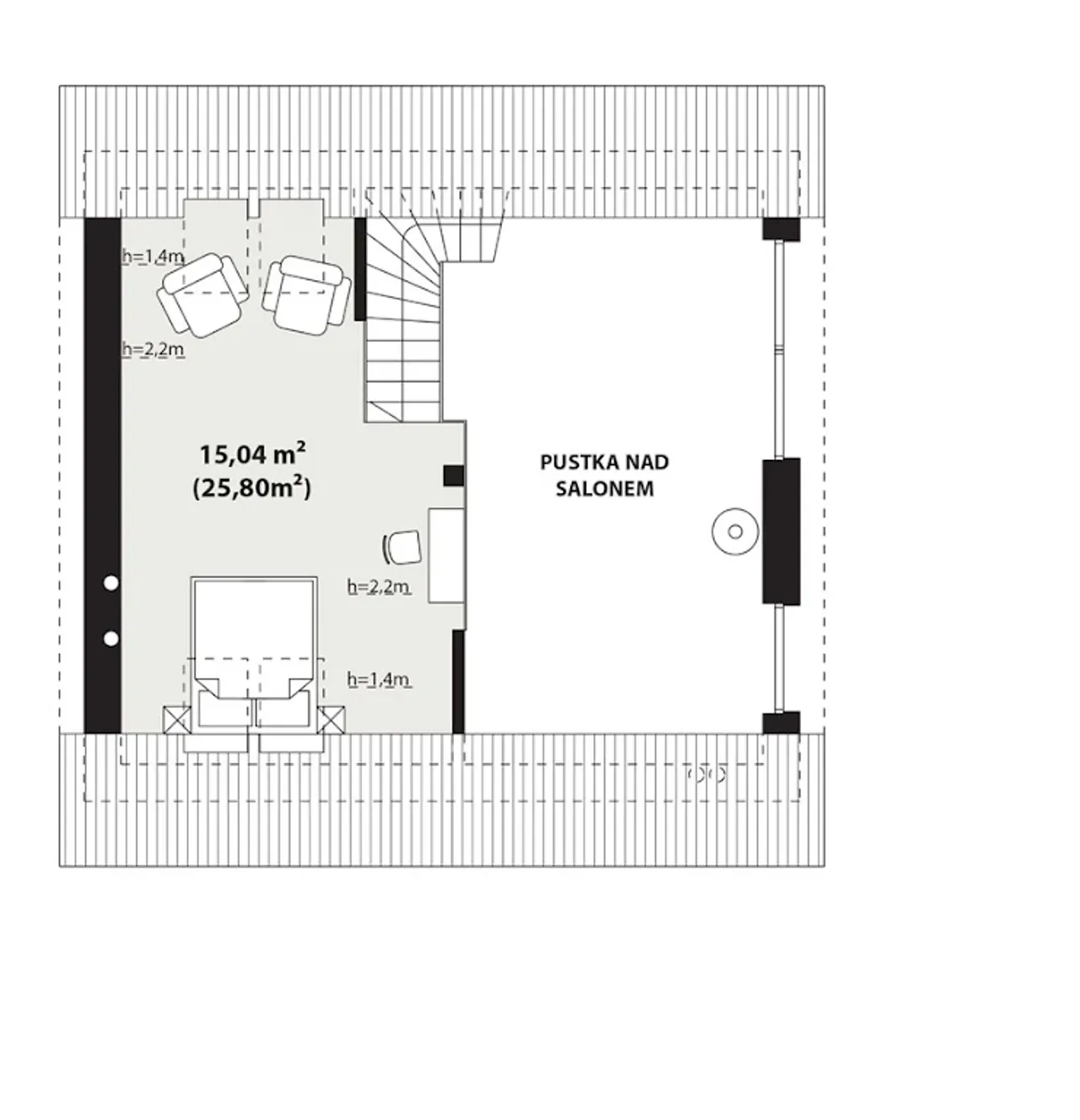
Wnętrze projektu Erna 3 zachwyca prostotą oraz przemyślanym układem - trzy jasne pokoje, przestrzeń dzienna z kominkiem i nowoczesne rozwiązania grzewcze to przepis na dom przyjazny każdemu użytkownikowi. Ta murowana konstrukcja świetnie sprawdzi się jako energooszczędny, całoroczny dom jednorodzinny.
Dom wybudowany na podstawie projektu Erna 3 wyróżnia się nowoczesnym stylem, elegancką formą dwuspadowego dachu i optymalnym wykorzystaniem powierzchni. Kalenica równoległa do drogi sprzyja ustawnemu ulokowaniu domu na działce, a brak piwnicy przekłada się na niższe koszty budowy. Całoroczny charakter domu gwarantuje komfort przez wszystkie sezony - murowane ściany wewnętrzne budują poczucie solidności i ciszy we wnętrzach.
Dwuwarstwowa technologia ścian z pustaka ceramicznego i styropianu podnosi efektywność energetyczną budynku, a wybór dachówki lub blachodachówki pozwala precyzyjnie dopasować dom do własnych upodobań. Dzięki trzem przestronnym pokojom i przemyślanemu układowi Erna 3 odpowiada na potrzeby rodzin lub par szukających wygodnego, ekonomicznego domu. Dom parterowy z możliwością wykorzystania poddasza to rozwiązanie przyszłościowe - idealne również pod inwestycję.
Nie czekaj, zamów projekt Erna 3 i rozpocznij budowę swojego nowoczesnego domu już dziś!
Kupując projekt w technologii murowanej powinieneś budować dom murowany. Zupełna zmiana technologii na szkieletową wymaga przeprojektowania całego budynku ( zmieniają się obciążenia, fundamenty, konstrukcja dachu). Wydamy zgodę na takie przeprojektowanie jednak wiążę się to z dużymi kosztami. Istnieją firmy wykonawcze, które podejmują się zmiany technologii budowy bezpłatnie przy skorzystaniu z ich usług wykonawczych. Zdarza się, że pracownia architektoniczna przygotowuje warianty konkretnego projektu przewidując także inne technologie. Prosimy o sprawdzenie czy istnieje poszukiwana wersja projektu, w zakładce - warianty projektu.
Zwężenie/poszerzenie budynku* to nic innego jak zmiana w projekcie. Istnieje możliwość wprowadzenia takich zmian, we własnym zakresie (podczas adaptacji). *zwężenie/poszerzenie budynku nie powinno stanowić problemu w przypadku domów o dachu dwuspadowym jeśli wiąże się to z wydłużeniem/skróceniem kalenicy dachu.
Poznaj praktyczne porady ekspertów, które ułatwią Ci każdy etap budowy i od wyboru wymarzonego domu po jego wykończenie. Zyskaj pewność, że podejmujesz najlepsze decyzje dzięki sprawdzonym wskazówkom od specjalistów z planz.pl
Wycena szacunkowa, w kwotach netto, nie zawiera instalacji.
bezpłatnie (0zł)
przelew zwykły / PayNow
przy odbiorze
2-5 dni roboczych (jeśli projekt nie jest koncepcją)
Projekt Erna 3 na pierwszy rzut oka wyróżnia się nowoczesnym designem, który idealnie wpasowuje się w aktualne trendy architektoniczne. Estetyka budynku łączy w sobie elegancję z funkcjonalnością, co z pewnością przypadnie do gustu osobom ceniącym sobie przestronność i praktyczne rozwiązania. Duże przeszklenia zapewniają optymalne doświetlenie wnętrz, co tworzy przyjemną atmosferę w domu. Układ pomieszczeń został zaprojektowany tak, aby zapewnić maksymalną wygodę użytkowania dla wszystkich domowników. Ciekawym elementem jest także przestronna strefa dzienna, która sprzyja rodzinnym spotkaniom. Dach budynku podkreśla nowoczesny charakter projektu, a zarazem jest praktyczny, co może być ważnym atutem dla wielu inwestorów.
Wybierz wygodny dla Ciebie czas kontaktu z naszym Doradcą Technicznym.