Figa Neo



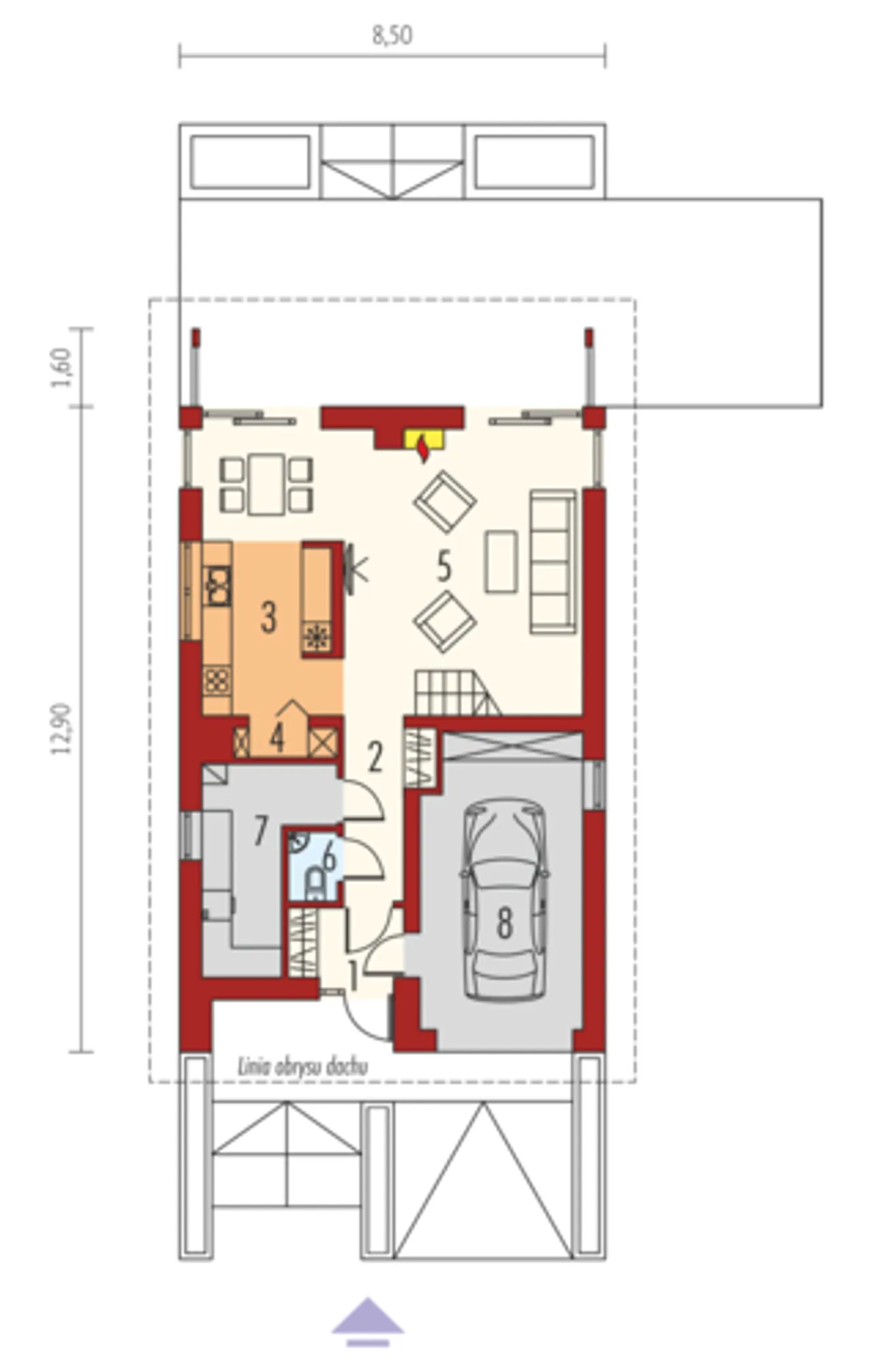
1. Wiatrołap | 3,17 m² |
2. Hol | 5,17 m² |
3. Kuchnia z jadalnią | 15,54 m² |
4. Spiżarnia | 1,18 m² |
5. Pokój dzienny + schody | 27,27 m² |
6. Toaleta | 1,33 m² |
7. Kotłownia | 8,11 m² |
8. Garaż | 18,81 m² |
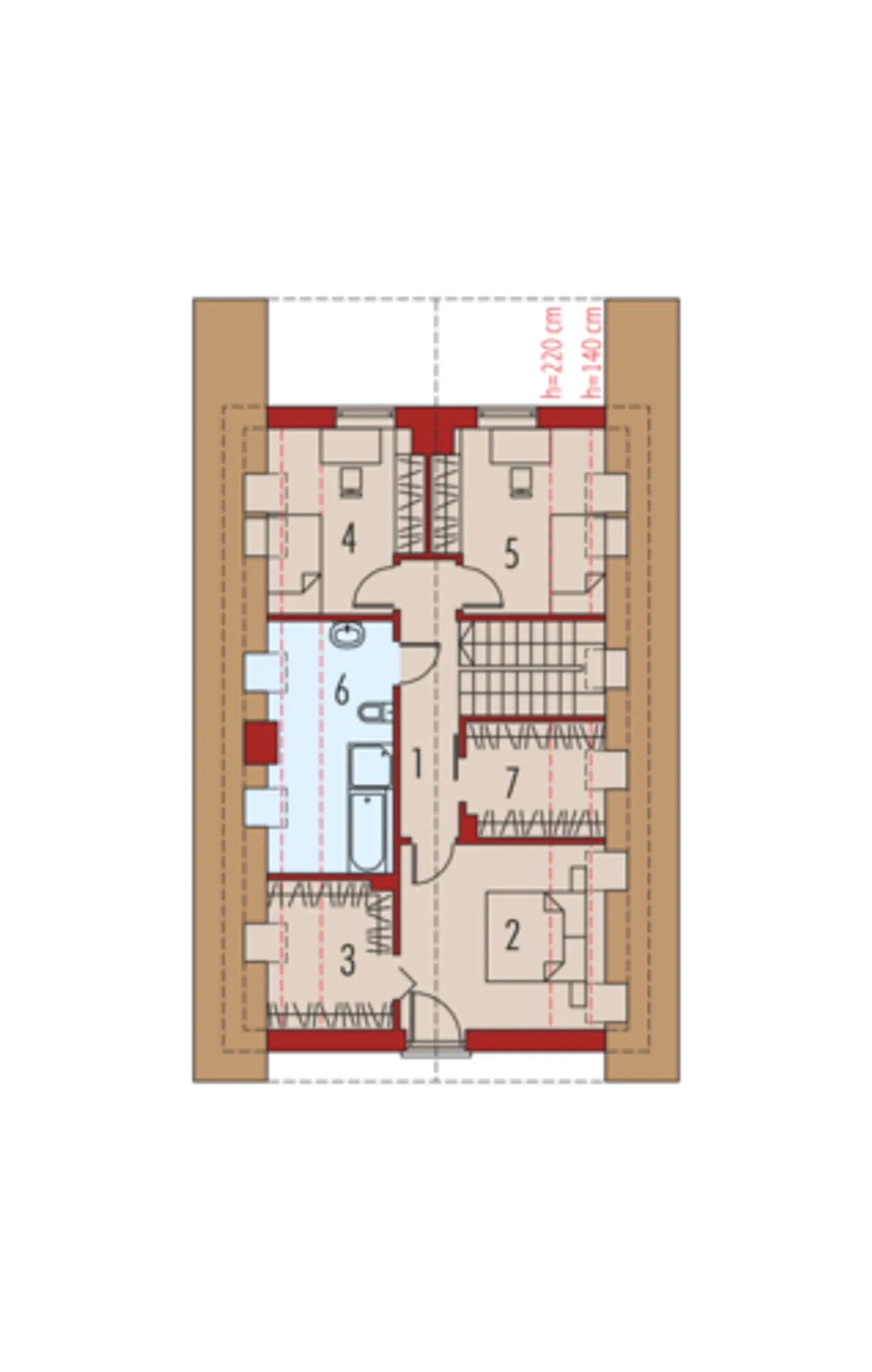
1. Korytarz | 6,53 m² |
2. Sypialnia | 12,65 m² |
3. Garderoba | 5,36 m² |
4. Sypialnia | 8,23 m² |
5. Sypialnia | 9,32 m² |
6. łazienka | 9,24 m² |
7. Garderoba | 4,71 m² |
Wypełnij formularz i otrzymaj rysunki w pdf z dokładnymi wymiarami budynku i pomieszczeń (długość, szerokość, wysokość) dla projektu Elias G1
Pow. użytkowa 109.7 m² |
Ilość pokoi 4 |
Powierzchnia zabudowy 124.52 m² |
Kondygnacje parterowy+poddasze |
Garaż 1 stanowisko |
Technologia murowany |
Szerokość działki 16.5 m |
Obiekt dom |
Typ domu jednorodzinny całoroczny |
Długość działki 20.9 m |
Wysokość budynku 8.78 m |
Przechowywanie w kuchni spiżarnia |
Bryła budynku prosta bryła |
Liczba łazieniek 1 |
Styl budynku nowoczesny |
Kominek kominek w projekcie |
Szerokość budynku 8.5 m |
Kotłownia duża kotłownia |
Kąt nachylenia dachu 45 ° |
Strop gęstożebrowy |
Długość budynku 12.9 m |
Piwnica bez podpiwniczenia |
Kalenica prostopadła do drogi |
Kubatura 497.49 m³ |
Rodzaj garażu w bryle |
Powierzchnia dachu 206.06 m² |
Rodzaj dachu dwuspadowy |
Koszty budowy 350-400 tys., tylko z kosztorysem |
Pow. użytkowa 109.7 m² |
Powierzchnia zabudowy 124.52 m² |
Garaż 1 stanowisko |
Szerokość działki 16.5 m |
Typ domu jednorodzinny całoroczny |
Wysokość budynku 8.78 m |
Bryła budynku prosta bryła |
Styl budynku nowoczesny |
Szerokość budynku 8.5 m |
Kąt nachylenia dachu 45 ° |
Długość budynku 12.9 m |
Kalenica prostopadła do drogi |
Rodzaj garażu w bryle |
Rodzaj dachu dwuspadowy |
Ilość pokoi 4 |
Kondygnacje parterowy+poddasze |
Technologia murowany |
Obiekt dom |
Długość działki 20.9 m |
Przechowywanie w kuchni spiżarnia |
Liczba łazieniek 1 |
Kominek kominek w projekcie |
Kotłownia duża kotłownia |
Strop gęstożebrowy |
Piwnica bez podpiwniczenia |
Kubatura 497.49 m³ |
Powierzchnia dachu 206.06 m² |
Koszty budowy 350-400 tys., tylko z kosztorysem |
Kupując projekt w technologii murowanej powinieneś budować dom murowany. Zupełna zmiana technologii na szkieletową wymaga przeprojektowania całego budynku ( zmieniają się obciążenia, fundamenty, konstrukcja dachu). Wydamy zgodę na takie przeprojektowanie jednak wiążę się to z dużymi kosztami. Istnieją firmy wykonawcze, które podejmują się zmiany technologii budowy bezpłatnie przy skorzystaniu z ich usług wykonawczych. Zdarza się, że pracownia architektoniczna przygotowuje warianty konkretnego projektu przewidując także inne technologie. Prosimy o sprawdzenie czy istnieje poszukiwana wersja projektu, w zakładce - warianty projektu.
Zwężenie/poszerzenie budynku* to nic innego jak zmiana w projekcie. Istnieje możliwość wprowadzenia takich zmian, we własnym zakresie (podczas adaptacji). *zwężenie/poszerzenie budynku nie powinno stanowić problemu w przypadku domów o dachu dwuspadowym jeśli wiąże się to z wydłużeniem/skróceniem kalenicy dachu.
Poznaj praktyczne porady ekspertów, które ułatwią Ci każdy etap budowy i od wyboru wymarzonego domu po jego wykończenie. Zyskaj pewność, że podejmujesz najlepsze decyzje dzięki sprawdzonym wskazówkom od specjalistów z planz.pl
Wycena szacunkowa, w kwotach netto, nie zawiera instalacji.
bezpłatnie (0zł)
przelew zwykły / PayNow
przy odbiorze
3-5 dni roboczych (jeśli projekt nie wymaga aktualizacji)
Wybierz wygodny dla Ciebie czas kontaktu z naszym Doradcą Technicznym.