22 299 20 00 (pn-nd 9.30 do 19.30)

Gotowy projekt domu Egon - bliźniak L.LL (ID: 34917)

7300 2025-12-24
Egon - bliźniak L.LL - 128.6m²
Dostawa w ciągu 3-10 dni
Gwarantujemy najniższą cenę
7300 zł
(7800 zł brutto)
TANIEJ 500 zł do 24.12.2025
Najniższa cena z 30 dni przed obniżką: 7300 zł
7300 2025-12-24
W cenie projektu:
📣 GRATIS: WIERTARKA UDAROWA
  • Tablica + dziennik budowy
  • 16 projektów ogrodowych
  • Darmowa wysyłka (kurier, paczkomat, pobranie)
  • 30 dni na zwrot
  • Pozwolenie na zmiany z podpisem i pieczęcią autora
  • GRATIS: Wiertarka Udarowa
22 299 20 00 (pn-nd 9.30 do 19.30)


Zawartość projektu

3 egzemplarze projektu archtektoniczno budowlanego + 3 egzemplarze projektu technicznego.

Dokumentacja projektowa zgodnie z nowymi przepisami WT2021 dostarczana jest w formie: 3+3 egzemplarze, czyli w dwóch częściach zawierających:
 
I - projekt architektoniczno-budowlany (opis i rysunki, analiza możliwości wykorzystania alternatywnych systemów zaopatrzenia w energię i ciepło
II - projekt techniczny, obejmujący:opracowanie konstrukcyjne (opis i wyciąg z obliczeń konstrukcji), projekt wewnętrznych instalacji sanitarnych (wodnej, kanalizacyjnej, gazowej, ogrzewanie), projekt wewnętrznych instalacji elektrycznych, projektowaną charakterystykę energetyczną.
 
W części architektonicznej znajdują się:

- Opis architektoniczno - budowlany
- Część rysunkowa (elewacje, rzuty, przekroje, zestawienie stolarki)

Projekt techniczny zawiera:

- Projekt konstrukcji
- Instalacje sanitarne + gazowe/ sanitarne + paliwo stałe
- instalacje elektryczne

Zawartość projektu nie dotyczy budynków gospodarczych, garaży oraz obiektów malej architektury.
Zawartość projektów bez rozrysowanej na rzucie kotłowni/łazienki/kuchni może nie obejmować schematów c.o. i wodno-kanalizacyjnych. W przypadku obiektów małej architektury - również może nie zawierać schematów instalacji elektrycznej.

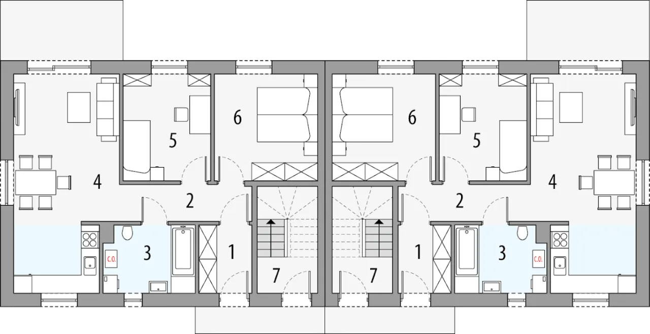
Rzuty gotowego projektu domu Egon - bliźniak L.LL

1. Wiatrołap 3,90 m²
2. Korytarz 5,30 m²
3. łazienka 6,60 m²
4. Salon z kuchnią 23,50 m²
5. Pokój 10,10 m²
6. Sypialnia 12,00 m²
7. Klatka schodowa 3,30 m²
1. Wiatrołap 2,40 m²
2. Korytarz 9,30 m²
3. łazienka 6,60 m²
4. Salon z kuchnią 23,50 m²
5. Pokój 10,10 m²
6. Sypialnia 12,00 m²

Zapoznaj się ze szczegółami projektu - pobierz bezpłatne rysunki do: Egon - bliźniak L.LL

Wypełnij formularz i otrzymaj rysunki w pdf z dokładnymi wymiarami budynku i pomieszczeń (długość, szerokość, wysokość) dla projektu Egon - bliźniak L.LL

Parametry Techniczne gotowego projektu domu Egon - bliźniak L.LL

Pow. użytkowa 128.6 m²
Powierzchnia zabudowy 175.92 m²
Kondygnacje piętrowy
Technologia murowany
Szerokość działki 14.78 m
Obiekt dom
Typ domu bliźniak i dwurodzinny
Wysokość budynku 9 m
Rodzaj dachu dwuspadowy
Liczba łazieniek 2
Kąt nachylenia dachu 35 °
Długość działki 16.16 m

Nasze prawdziwe opinie z Google

Opis projektu domu Egon - bliźniak L.LL

projekt domu Egon - bliźniak L.LL

Dom wybudowany na podstawie projektu Egon - bliźniak L.LL tworzy spójną, funkcjonalną przestrzeń dla dwóch rodzin, które chcą mieszkać blisko, a jednak w swoim rytmie. Rozwiązanie szczególnie dobrze sprawdza się w gęstszej zabudowie miejskiej lub na działkach podmiejskich, gdzie liczy się rozsądne wykorzystanie terenu przy zachowaniu prywatności.

To propozycja często wybierana przez rodziny wielopokoleniowe oraz inwestorów planujących budowę domu dwulokalowego pod wynajem. Piętrowy układ, murowana technologia oraz klasyczny dach dwuspadowy pod kątem 35° tworzą solidną bazę pod wygodne, trwałe i ekonomiczne w eksploatacji lokum.

Dlaczego warto wybrać projekt domu Egon - bliźniak L.LL?

  • Piętrowy układ: Oddzielenie strefy dziennej od nocnej sprzyja porządkowi i łatwemu funkcjonowaniu domowników.
  • Dach dwuspadowy 35°: Prosta geometria dachu obniża ryzyko usterek i upraszcza prace dekarskie.
  • Typ: bliźniak i dwurodzinny: Idealne rozwiązanie dla dwóch rodzin lub jako inwestycja pod wynajem dwóch niezależnych lokali.
  • Technologia murowana: Trwałe ściany sprzyjają stabilnemu mikroklimatowi wnętrz oraz dobrej izolacyjności akustycznej.
  • Ekonomika budowy: Wspólna ściana między segmentami ogranicza straty ciepła i obniża koszt realizacji w porównaniu z dwoma osobnymi domami.

Dla kogo najlepiej sprawdzi się ten projekt?

Projekt domu bliźniaczego w technologii murowanej szczególnie dobrze pasuje do rodzin dwupokoleniowych, które chcą mieszkać obok siebie, lecz zachować niezależne wejścia, ogródki i codzienny rytm życia. W praktyce często wybierany bywa przez rodziców budujących drugi segment dla dorosłych dzieci lub przez rodzeństwo planujące wspólną inwestycję na jednej działce.

Piętrowy charakter budynku pozwala optymalnie zagospodarować mniejsze parcele w miastach i miasteczkach, gdzie każdy metr gruntu ma znaczenie. Dom wybudowany na podstawie projektu Egon - bliźniak L.LL będzie logicznym wyborem także dla inwestorów, którzy myślą o bezpiecznym wynajmie - dwa wyraźnie odseparowane segmenty ułatwiają zarządzanie najmem długoterminowym.

Jakie atuty daje dach dwuspadowy i konstrukcja murowana?

Dach dwuspadowy o kącie nachylenia 35° sprawdza się świetnie w polskich warunkach klimatycznych. Taki kąt ułatwia spływ śniegu oraz deszczu, a jednocześnie pozwala zastosować popularne pokrycia dachowe stosowane w większości regionów kraju. Prosta, dwuspadowa forma minimalizuje liczbę newralgicznych połączeń i załamań połaci, co przekłada się na długowieczność konstrukcji.

Technologia murowana wnosi poczucie stabilności i solidności. Ściany w tej technologii dobrze akumulują ciepło, co odczuwalne bywa zwłaszcza w okresach przejściowych. Latem wnętrza nagrzewają się wolniej, zimą dłużej utrzymują przyjemną temperaturę. To istotny argument dla osób szukających energooszczędnych rozwiązań bez rezygnacji z klasycznej, trwałej zabudowy.

Podsumowanie najważniejszych korzyści

  • Funkcjonalny dom dwurodzinny na jednej działce.
  • Piętrowy układ sprzyjający wyraźnemu podziałowi stref.
  • Sprawdzony dach dwuspadowy pod kątem 35°.
  • Solidna, murowana konstrukcja odporna na upływ czasu.
  • Rozsądne zużycie terenu - dobre rozwiązanie dla miast i przedmieść.


Dodatki do projektu Egon - bliźniak L.LL

Dodatki możesz kupić razem z projektem lub dokupić po czasie

[Hor] Wentylacja mechaniczna z rekuperacją (750 zł)

[Hor] Projekt instalacji pompy ciepła (1000 zł)

[Hor] Płyta fundamentowa (1800 zł)

[Hor] Ogrzewanie podłogowe (800 zł)

[Hor] Egzemplarz archiwalny projektu (300 zł)

[Hor] Strop monolityczny (1900 zł)

[Planz] Tablica budowlana (0 zł)

[Planz] Dziennik budowy (0 zł)

[Planz] Wiertarka udarowa (0 zł)

[Planz] Zgoda na zmiany w projekcie (0 zł)

[Planz] Projekty architektury ogrodowej (0 zł)

[Planz] Charakterystyka energetyczna, tylko dla domów całorocznych (0 zł)

Wysyłka i płatność za projekt Egon - bliźniak L.LL

Koszty wysyłki

bezpłatnie (0zł)

Formy płatności

przelew zwykły / PayNow
przy odbiorze

Czas oczekiwania

4-8 dni roboczych (jeśli projekt nie wymaga aktualizacji)

 

FAQ

Czy można zmienić technologię budowy z murowanej na szkieletową lub inną, jeśli chcę szybciej zrealizować inwestycję?

Czy w projekcie Egon - bliźniak L.LL można wprowadzić zmiany w układzie pomieszczeń, np. połączyć część pokoi lub zmienić funkcję pomieszczeń?

Jakie rodzaje ogrzewania można zastosować w domu Egon - bliźniak L.LL i czy projekt sprzyja rozwiązaniom energooszczędnym?

PRACOWNIA: Horyzont - Horyzont