Efektowny - M238



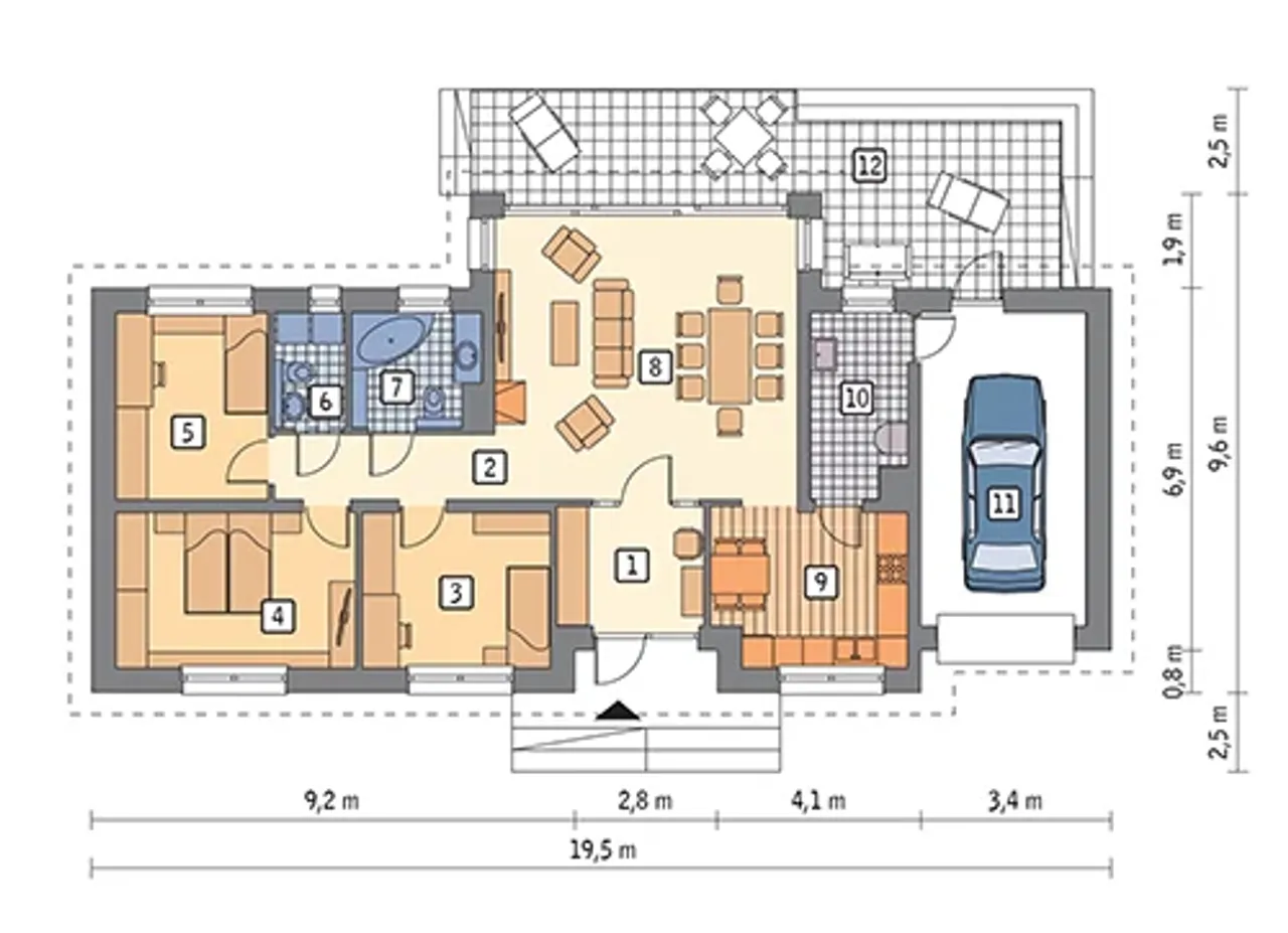
1. Przedsionek | 6,30 (6,30) m² |
2. Korytarz | 5,00 (5,00) m² |
3. Sypialnia | 10,40 (10,40) m² |
4. Sypialnia | 13,30 (13,30) m² |
5. Sypialnia | 10,10 (10,10) m² |
6. Pralnia | 2,80 (2,80) m² |
7. łazienka | 5,00 (5,00) m² |
8. Pokój dzienny | 30,50 (30,50) m² |
9. Kuchnia | 10,80 (10,80) m² |
10. Kotłownia | 6,10 (6,10) m² |
11. Garaż | 18,60 (18,60) m² |
12. Taras | 27,40 m² |
Wypełnij formularz i otrzymaj rysunki w pdf z dokładnymi wymiarami budynku i pomieszczeń (długość, szerokość, wysokość) dla projektu Efektowny - wariant I - M238a
Pow. użytkowa 94.2 m² |
Ilość pokoi 4 |
Powierzchnia zabudowy 159.3 m² |
Kondygnacje parterowy |
Garaż 1 stanowisko |
Technologia murowany |
Szerokość działki 25.5 m |
Obiekt dom |
Typ domu jednorodzinny całoroczny |
Kubatura 775.3 m³ |
Styl budynku nowoczesny |
Wysokość budynku 6.37 m |
Długość działki 17.6 m |
Liczba łazieniek 1 |
Kalenica równoległa do drogi |
Kominek kominek w projekcie |
Kąt nachylenia dachu 35 ° |
Funkcje dodatkowe z pralnią |
Rodzaj garażu przyklejony |
Kotłownia duża kotłownia |
Szerokość budynku 19.5 m |
Rodzaj dachu dwuspadowy |
Taras z tarasem |
Długość budynku 9.6 m |
Piwnica bez podpiwniczenia |
Koszty budowy tylko z kosztorysem, 200-250 tys. |
Pow. użytkowa 94.2 m² |
Powierzchnia zabudowy 159.3 m² |
Garaż 1 stanowisko |
Szerokość działki 25.5 m |
Typ domu jednorodzinny całoroczny |
Styl budynku nowoczesny |
Długość działki 17.6 m |
Kalenica równoległa do drogi |
Kąt nachylenia dachu 35 ° |
Rodzaj garażu przyklejony |
Szerokość budynku 19.5 m |
Taras z tarasem |
Piwnica bez podpiwniczenia |
Ilość pokoi 4 |
Kondygnacje parterowy |
Technologia murowany |
Obiekt dom |
Kubatura 775.3 m³ |
Wysokość budynku 6.37 m |
Liczba łazieniek 1 |
Kominek kominek w projekcie |
Funkcje dodatkowe z pralnią |
Kotłownia duża kotłownia |
Rodzaj dachu dwuspadowy |
Długość budynku 9.6 m |
Koszty budowy tylko z kosztorysem, 200-250 tys. |
Kupując projekt w technologii murowanej powinieneś budować dom murowany. Zupełna zmiana technologii na szkieletową wymaga przeprojektowania całego budynku ( zmieniają się obciążenia, fundamenty, konstrukcja dachu). Wydamy zgodę na takie przeprojektowanie jednak wiążę się to z dużymi kosztami. Istnieją firmy wykonawcze, które podejmują się zmiany technologii budowy bezpłatnie przy skorzystaniu z ich usług wykonawczych. Zdarza się, że pracownia architektoniczna przygotowuje warianty konkretnego projektu przewidując także inne technologie. Prosimy o sprawdzenie czy istnieje poszukiwana wersja projektu, w zakładce - warianty projektu.
Zwężenie/poszerzenie budynku* to nic innego jak zmiana w projekcie. Istnieje możliwość wprowadzenia takich zmian, we własnym zakresie (podczas adaptacji). *zwężenie/poszerzenie budynku nie powinno stanowić problemu w przypadku domów o dachu dwuspadowym jeśli wiąże się to z wydłużeniem/skróceniem kalenicy dachu.
Poznaj praktyczne porady ekspertów, które ułatwią Ci każdy etap budowy i od wyboru wymarzonego domu po jego wykończenie. Zyskaj pewność, że podejmujesz najlepsze decyzje dzięki sprawdzonym wskazówkom od specjalistów z planz.pl
Wycena szacunkowa, w kwotach netto, nie zawiera instalacji.
bezpłatnie (0zł)
przelew zwykły / PayNow
przy odbiorze
3-5 dni roboczych (jeśli projekt nie wymaga aktualizacji)
Wybierz wygodny dla Ciebie czas kontaktu z naszym Doradcą Technicznym.