Eco 25



Zawartość projektu
3 egzemplarze projektu archtektoniczno budowlanego + 3 egzemplarze projektu technicznego.
1. Wiatrołap | 2,56 m² |
2. Korytarz + schody | 7,37 m² |
3. Kuchnia | 7,20 m² |
4. Jadalnia | 6,17 m² |
5. Pokój dzienny | 19,34 m² |
6. łazienka | 3,02 m² |
7. Pom. gospodarcze | 1,58 m² |
8. Kotłownia | 3,18 m² |
9. Wiatrołap | 2,56 m² |
10. Korytarz + schody | 7,37 m² |
11. Kuchnia | 7,20 m² |
12. Jadalnia | 6,17 m² |
13. Pokój dzienny | 19,34 m² |
14. łazienka | 3,02 m² |
15. Pom. gospodarcze | 1,58 m² |
16. Kotłownia | 3,18 m² |
1. Korytarz | 3,97 m² |
2. Sypialnia | 12,88 m² |
3. Garderoba | 1,66 m² |
4. Pokój | 8,55 m² |
5. Pokój | 6,90 m² |
6. łazienka | 4,29 m² |
7. Korytarz | 3,97 m² |
8. Sypialnia | 12,88 m² |
9. Garderoba | 1,66 m² |
10. Pokój | 8,55 m² |
11. Pokój | 6,90 m² |
12. łazienka | 4,29 m² |
Wypełnij formularz i otrzymaj rysunki w pdf z dokładnymi wymiarami budynku i pomieszczeń (długość, szerokość, wysokość) dla projektu Eco 25 dwulokalowy
Ilość pokoi 4 |
Pow. użytkowa 83.91 m² |
Powierzchnia zabudowy 66.9 m² |
Kondygnacje parterowy+poddasze |
Garaż bez garażu |
Technologia murowany |
Szerokość działki 20.87 m |
Obiekt dom |
Typ domu jednorodzinny całoroczny |
Liczba łazieniek 2 |
Kąt nachylenia dachu 38 ° |
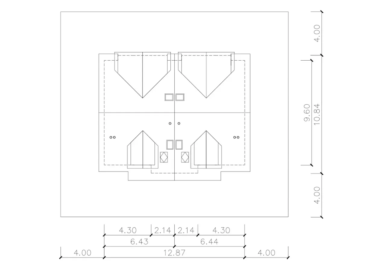
Szerokość budynku 12.87 m |
Rodzaj dachu dwuspadowy |
Kominek kominek w projekcie |
Długość budynku 10.84 m |
Piwnica bez podpiwniczenia |
Kubatura 262.66 m³ |
Wysokość budynku 8.5 m |
Kalenica równoległa do drogi |
Długość działki 18.84 m |
Styl budynku nowoczesny |
Koszty budowy tylko z kosztorysem, 150-200 tys. |
Ilość pokoi 4 |
Powierzchnia zabudowy 66.9 m² |
Garaż bez garażu |
Szerokość działki 20.87 m |
Typ domu jednorodzinny całoroczny |
Kąt nachylenia dachu 38 ° |
Rodzaj dachu dwuspadowy |
Długość budynku 10.84 m |
Kubatura 262.66 m³ |
Kalenica równoległa do drogi |
Styl budynku nowoczesny |
Pow. użytkowa 83.91 m² |
Kondygnacje parterowy+poddasze |
Technologia murowany |
Obiekt dom |
Liczba łazieniek 2 |
Szerokość budynku 12.87 m |
Kominek kominek w projekcie |
Piwnica bez podpiwniczenia |
Wysokość budynku 8.5 m |
Długość działki 18.84 m |
Koszty budowy tylko z kosztorysem, 150-200 tys. |
Kupując projekt w technologii murowanej powinieneś budować dom murowany. Zupełna zmiana technologii na szkieletową wymaga przeprojektowania całego budynku ( zmieniają się obciążenia, fundamenty, konstrukcja dachu). Wydamy zgodę na takie przeprojektowanie jednak wiążę się to z dużymi kosztami. Istnieją firmy wykonawcze, które podejmują się zmiany technologii budowy bezpłatnie przy skorzystaniu z ich usług wykonawczych. Zdarza się, że pracownia architektoniczna przygotowuje warianty konkretnego projektu przewidując także inne technologie. Prosimy o sprawdzenie czy istnieje poszukiwana wersja projektu, w zakładce - warianty projektu.
Zwężenie/poszerzenie budynku* to nic innego jak zmiana w projekcie. Istnieje możliwość wprowadzenia takich zmian, we własnym zakresie (podczas adaptacji). *zwężenie/poszerzenie budynku nie powinno stanowić problemu w przypadku domów o dachu dwuspadowym jeśli wiąże się to z wydłużeniem/skróceniem kalenicy dachu.
Poznaj praktyczne porady ekspertów, które ułatwią Ci każdy etap budowy i od wyboru wymarzonego domu po jego wykończenie. Zyskaj pewność, że podejmujesz najlepsze decyzje dzięki sprawdzonym wskazówkom od specjalistów z planz.pl
Wycena szacunkowa, w kwotach netto, nie zawiera instalacji.
bezpłatnie (0zł)
przelew zwykły / PayNow
przy odbiorze
2-6 dni roboczych
Wybierz wygodny dla Ciebie czas kontaktu z naszym Doradcą Technicznym.