Eco 17



Zawartość projektu
3 egzemplarze projektu archtektoniczno budowlanego + 3 egzemplarze projektu technicznego.
1. Wiatrołap | 3,42 m² |
2. Garderoba | 2,08 m² |
3. Korytarz + schody | 10,80 m² |
4. łazienka | 3,39 m² |
5. Spiżarnia | 2,17 m² |
6. Kuchnia + jadalnia | 10,93 m² |
7. Pokój dzienny | 22,11 m² |
8. Pokój | 10,92 m² |
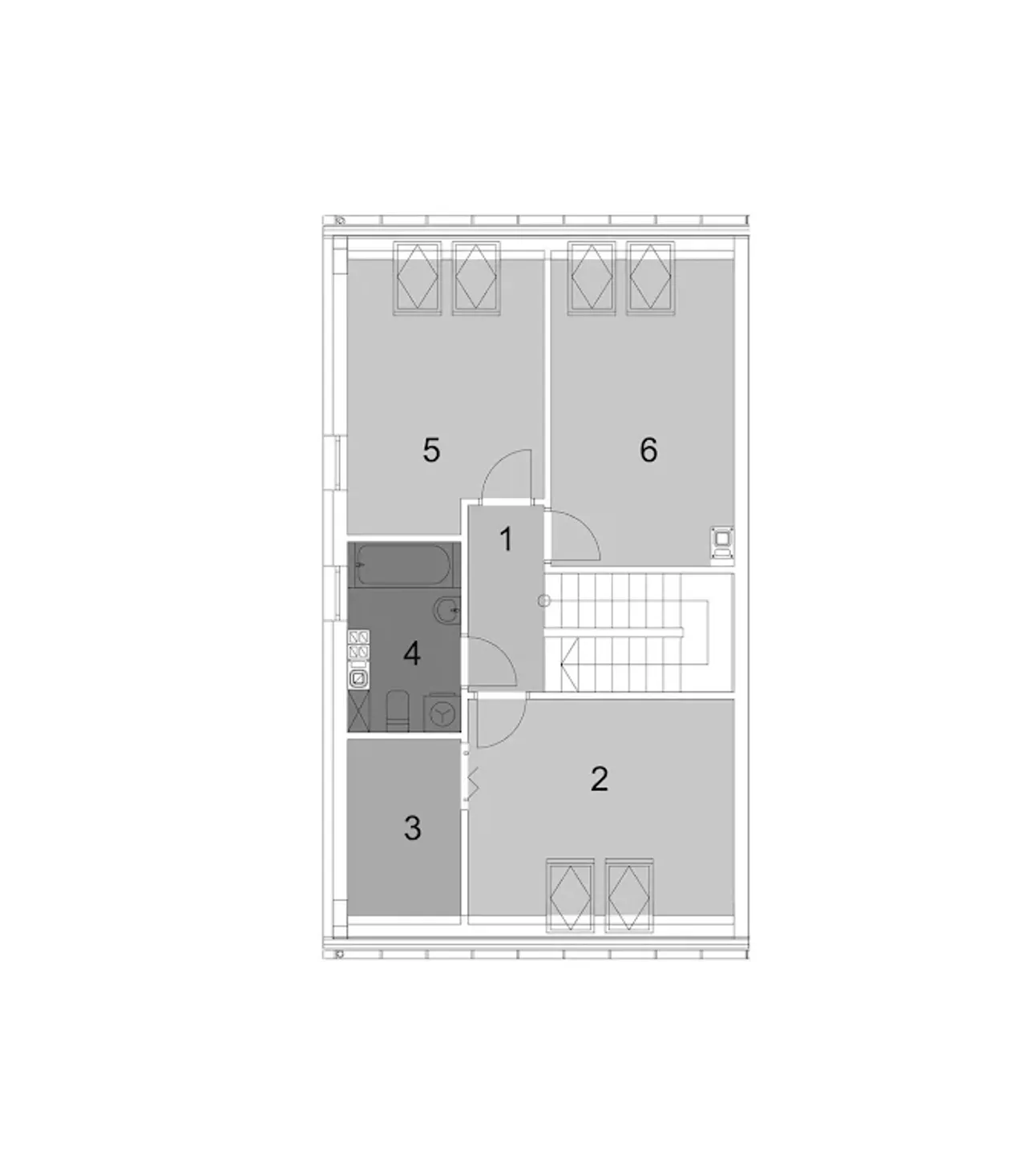
1. Korytarz | 3,76 m² |
2. Sypialnia | 10,12 m² |
3. Garderoba | 3,06 m² |
4. łazienka | 5,34 m² |
5. Pokoj | 9,78 m² |
6. Pokój | 11,12 m² |
Wypełnij formularz i otrzymaj rysunki w pdf z dokładnymi wymiarami budynku i pomieszczeń (długość, szerokość, wysokość) dla projektu Eco 17 szereg
Pow. użytkowa 109 m² |
Ilość pokoi 5 |
Powierzchnia zabudowy 83.29 m² |
Kondygnacje parterowy+poddasze |
Garaż bez garażu |
Technologia murowany |
Szerokość działki 21.96 m |
Obiekt dom |
Typ domu szeregowy |
Liczba łazieniek 2 |
Kąt nachylenia dachu 35 ° |
Szerokość budynku 6.98 m |
Rodzaj dachu dwuspadowy |
Kominek kominek w projekcie |
Długość budynku 11.86 m |
Piwnica bez podpiwniczenia |
Kubatura 330.93 m³ |
Kalenica równoległa do drogi |
Wysokość budynku 8.73 m |
Długość działki 19.86 m |
Styl budynku nowoczesny |
Pow. użytkowa 109 m² |
Powierzchnia zabudowy 83.29 m² |
Garaż bez garażu |
Szerokość działki 21.96 m |
Typ domu szeregowy |
Kąt nachylenia dachu 35 ° |
Rodzaj dachu dwuspadowy |
Długość budynku 11.86 m |
Kubatura 330.93 m³ |
Wysokość budynku 8.73 m |
Styl budynku nowoczesny |
Ilość pokoi 5 |
Kondygnacje parterowy+poddasze |
Technologia murowany |
Obiekt dom |
Liczba łazieniek 2 |
Szerokość budynku 6.98 m |
Kominek kominek w projekcie |
Piwnica bez podpiwniczenia |
Kalenica równoległa do drogi |
Długość działki 19.86 m |
Kupując projekt w technologii murowanej powinieneś budować dom murowany. Zupełna zmiana technologii na szkieletową wymaga przeprojektowania całego budynku ( zmieniają się obciążenia, fundamenty, konstrukcja dachu). Wydamy zgodę na takie przeprojektowanie jednak wiążę się to z dużymi kosztami. Istnieją firmy wykonawcze, które podejmują się zmiany technologii budowy bezpłatnie przy skorzystaniu z ich usług wykonawczych. Zdarza się, że pracownia architektoniczna przygotowuje warianty konkretnego projektu przewidując także inne technologie. Prosimy o sprawdzenie czy istnieje poszukiwana wersja projektu, w zakładce - warianty projektu.
Zwężenie/poszerzenie budynku* to nic innego jak zmiana w projekcie. Istnieje możliwość wprowadzenia takich zmian, we własnym zakresie (podczas adaptacji). *zwężenie/poszerzenie budynku nie powinno stanowić problemu w przypadku domów o dachu dwuspadowym jeśli wiąże się to z wydłużeniem/skróceniem kalenicy dachu.
Poznaj praktyczne porady ekspertów, które ułatwią Ci każdy etap budowy i od wyboru wymarzonego domu po jego wykończenie. Zyskaj pewność, że podejmujesz najlepsze decyzje dzięki sprawdzonym wskazówkom od specjalistów z planz.pl
bezpłatnie (0zł)
przelew zwykły / PayNow
przy odbiorze
2-6 dni roboczych
Projekt Eco 17 szereg zachwyca nowoczesnym wyglądem. Duże okna wpuszczają mnóstwo światła. Bryła domu jest niezwykle funkcjonalna. Użytkowe poddasze to idealne miejsce do relaksu. Projekt jest energooszczędny, co obniża koszty eksploatacji. Przestronność wnętrz robi wrażenie. Rozkład pomieszczeń jest przemyślany. Estetyka tego projektu przemawia do mnie. Zastanawiam się nad zakupem tego projektu i budową domu.
Wybierz wygodny dla Ciebie czas kontaktu z naszym Doradcą Technicznym.