E6 G1 ECONOMIC (wersja B)



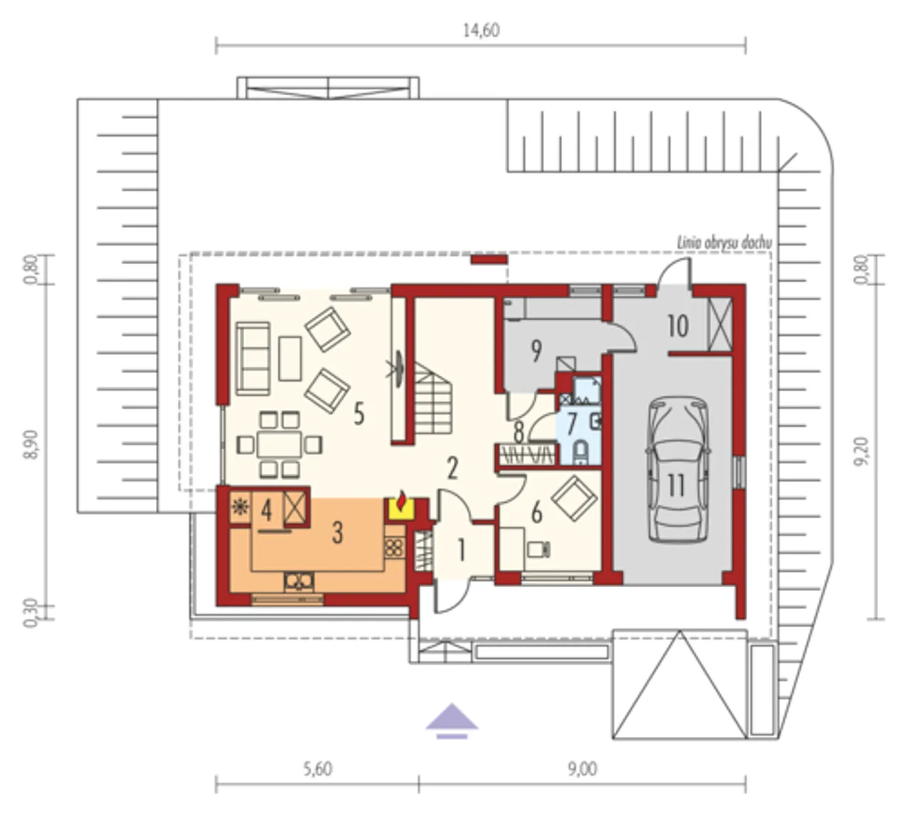
1. Wiatrołap | 2,72 m² |
2. Komunikacja | 13,11 m² |
3. Kuchnia | 10,33 m² |
4. Spiżarnia | 1,84 m² |
5. Pokój dzienny, jadalnia | 26,72 m² |
6. Gabinet | 7,80 m² |
7. łazienka | 2,76 m² |
8. Garderoba | 3,19 m² |
9. Kotłownia | 5,99 m² |
10. Składzik ogrodowy | 4,82 m² |
11. Garaż | 19,43 m² |
1. Korytarz | 7,72 m² |
2. Sypialnia | 21,92 m² |
3. łazienka | 6,62 m² |
4. Garderoba | 9,45 m² |
5. Sypialnia | 12,34 m² |
6. Sypialnia | 12,96 m² |
7. łazienka | 6,97 m² |
8. Garderoba | 2,67 m² |
Wypełnij formularz i otrzymaj rysunki w pdf z dokładnymi wymiarami budynku i pomieszczeń (długość, szerokość, wysokość) dla projektu E6 G1 ECONOMIC wersja A
Pow. użytkowa 149.07 m² |
Ilość pokoi 5 |
Powierzchnia zabudowy 131.31 m² |
Kondygnacje parterowy+poddasze |
Garaż 1 stanowisko |
Technologia murowany |
Szerokość działki 22.8 m |
Obiekt dom |
Typ domu jednorodzinny całoroczny |
Wysokość budynku 8.55 m |
Styl budynku nowoczesny |
Liczba łazieniek 3 |
Kąt nachylenia dachu 40 ° |
Szerokość budynku 14.8 m |
Kominek kominek w projekcie |
Strop gęstożebrowy |
Długość budynku 10.2 m |
Rodzaj garażu w bryle |
Piwnica bez podpiwniczenia |
Kalenica równoległa do drogi |
Kubatura 574.15 m³ |
Rodzaj dachu dwuspadowy |
Funkcje dodatkowe z lukarnami |
Powierzchnia dachu 197 m² |
Przechowywanie w kuchni spiżarnia |
Długość działki 18.2 m |
Bryła budynku prosta bryła |
Koszty budowy 350-400 tys., tylko z kosztorysem |
Pow. użytkowa 149.07 m² |
Powierzchnia zabudowy 131.31 m² |
Garaż 1 stanowisko |
Szerokość działki 22.8 m |
Typ domu jednorodzinny całoroczny |
Styl budynku nowoczesny |
Kąt nachylenia dachu 40 ° |
Kominek kominek w projekcie |
Długość budynku 10.2 m |
Piwnica bez podpiwniczenia |
Kubatura 574.15 m³ |
Funkcje dodatkowe z lukarnami |
Przechowywanie w kuchni spiżarnia |
Bryła budynku prosta bryła |
Ilość pokoi 5 |
Kondygnacje parterowy+poddasze |
Technologia murowany |
Obiekt dom |
Wysokość budynku 8.55 m |
Liczba łazieniek 3 |
Szerokość budynku 14.8 m |
Strop gęstożebrowy |
Rodzaj garażu w bryle |
Kalenica równoległa do drogi |
Rodzaj dachu dwuspadowy |
Powierzchnia dachu 197 m² |
Długość działki 18.2 m |
Koszty budowy 350-400 tys., tylko z kosztorysem |
Kupując projekt w technologii murowanej powinieneś budować dom murowany. Zupełna zmiana technologii na szkieletową wymaga przeprojektowania całego budynku ( zmieniają się obciążenia, fundamenty, konstrukcja dachu). Wydamy zgodę na takie przeprojektowanie jednak wiążę się to z dużymi kosztami. Istnieją firmy wykonawcze, które podejmują się zmiany technologii budowy bezpłatnie przy skorzystaniu z ich usług wykonawczych. Zdarza się, że pracownia architektoniczna przygotowuje warianty konkretnego projektu przewidując także inne technologie. Prosimy o sprawdzenie czy istnieje poszukiwana wersja projektu, w zakładce - warianty projektu.
Zwężenie/poszerzenie budynku* to nic innego jak zmiana w projekcie. Istnieje możliwość wprowadzenia takich zmian, we własnym zakresie (podczas adaptacji). *zwężenie/poszerzenie budynku nie powinno stanowić problemu w przypadku domów o dachu dwuspadowym jeśli wiąże się to z wydłużeniem/skróceniem kalenicy dachu.
Poznaj praktyczne porady ekspertów, które ułatwią Ci każdy etap budowy i od wyboru wymarzonego domu po jego wykończenie. Zyskaj pewność, że podejmujesz najlepsze decyzje dzięki sprawdzonym wskazówkom od specjalistów z planz.pl
Wycena szacunkowa, w kwotach netto, nie zawiera instalacji.
bezpłatnie (0zł)
przelew zwykły / PayNow
przy odbiorze
3-5 dni roboczych (jeśli projekt nie wymaga aktualizacji)
Wybierz wygodny dla Ciebie czas kontaktu z naszym Doradcą Technicznym.