- Promocja GRATISOWA do 06.10.2025 ➞ sprawdź zasady
- ✓ GRATIS: Wiertarka
- ✓ GRATIS: 16 projektów (drewutni, altany i wiaty)
- ✓ GRATIS: tablica i dziennik budowy
- ✓ GRATIS: przesyłka kurierska
- Potrzebujesz ADAPTACJI lub architekta do ZMIAN w projekcie? ➞ sprawdź jak pomożemy bez dodatkowej opłaty
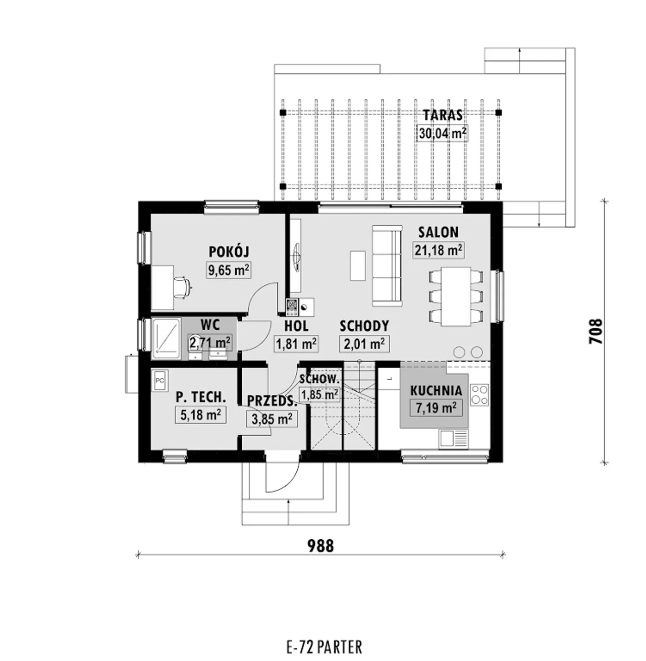
Rzuty gotowego projektu domu E-72
1. Przedsionek | 3,85 m² |
2. Schowek | 1,85 m² |
3. Hol | 1,81 m² |
4. Schody | 2,01 m² |
5. Salon | 21,18 m² |
6. Kuchnia | 7,19 m² |
7. Pokój | 9,65 m² |
8. Wc | 2,71 m² |
9. Pom. techniczne | 5,18 m² |
1. Schody | 1,66 (2,03) m² |
2. Hol | 5,05 m² |
3. Sypialnia | 10,30 (11,88) m² |
4. Garderoba | 3,13 (3,86) m² |
5. łazienka | 4,36 (5,37) m² |
6. Sypialnia | 9,48 (10,78) m² |
7. Sypialnia | 9,43 (11,27) m² |
8. Garderoba | 2,30 (2,86) m² |
Zapoznaj się ze szczegółami projektu - pobierz bezpłatne rysunki do: E-72
Wypełnij formularz i otrzymaj rysunki w pdf z dokładnymi wymiarami budynku i pomieszczeń (długość, szerokość, wysokość) dla projektu E-72

Parametry Techniczne gotowego projektu domu E-72
Pow. użytkowa 96 m² |
Ilość pokoi 5 |
Powierzchnia zabudowy 70 m² |
Kondygnacje parterowy+poddasze |
Garaż bez garażu |
Technologia murowany |
Szerokość działki 17.88 m |
Obiekt dom |
Typ domu jednorodzinny całoroczny |
Kalenica równoległa do drogi |
Liczba łazieniek 2 |
Kąt nachylenia dachu 45 ° |
Szerokość budynku 9.88 m |
Rodzaj dachu dwuspadowy |
Kominek kominek w projekcie |
Długość budynku 7.08 m |
Piwnica bez podpiwniczenia |
Powierzchnia dachu 96 m² |
Wysokość budynku 8.7 m |
Długość działki 16.08 m |
Styl budynku nowoczesny |
Koszty budowy tylko z kosztorysem, 200-250 tys. |
Pow. użytkowa 96 m² |
Powierzchnia zabudowy 70 m² |
Garaż bez garażu |
Szerokość działki 17.88 m |
Typ domu jednorodzinny całoroczny |
Liczba łazieniek 2 |
Szerokość budynku 9.88 m |
Kominek kominek w projekcie |
Piwnica bez podpiwniczenia |
Wysokość budynku 8.7 m |
Styl budynku nowoczesny |
Ilość pokoi 5 |
Kondygnacje parterowy+poddasze |
Technologia murowany |
Obiekt dom |
Kalenica równoległa do drogi |
Kąt nachylenia dachu 45 ° |
Rodzaj dachu dwuspadowy |
Długość budynku 7.08 m |
Powierzchnia dachu 96 m² |
Długość działki 16.08 m |
Koszty budowy tylko z kosztorysem, 200-250 tys. |
Nasze prawdziwe opinie z Google
Opis projektu domu E-72
Technologia wykonania:
- Ściany: 18 cm silikat + 15cm styropian.
- Strop: gęstożebrowy Teriva.
- Pokrycie dachowe: dachówka cementowa.
- Ocieplenie posadzki na gruncie: 20 cm styropian.
- Ocieplenie dachu: 25-30 cm wełna mineralna.
- Stolarka okienna: drewniana.
- Wykończenie zewnętrzne: płytki klinkierowe lub drewno.
- Ogrzewanie: pompa ciepła powietrzna, podłogówka + grzejniki
- Wentylacja: grawitacyjna.
- Energooszczędność WT2021: EP<70 kWh/(rok*m2).
Częste pytania
Czy mogę wprowadzić zmiany w projekcie?
Projekt jest murowany, a ja chcę budować drewniany
Kupując projekt w technologii murowanej powinieneś budować dom murowany. Zupełna zmiana technologii na szkieletową wymaga przeprojektowania całego budynku ( zmieniają się obciążenia, fundamenty, konstrukcja dachu). Wydamy zgodę na takie przeprojektowanie jednak wiążę się to z dużymi kosztami. Istnieją firmy wykonawcze, które podejmują się zmiany technologii budowy bezpłatnie przy skorzystaniu z ich usług wykonawczych. Zdarza się, że pracownia architektoniczna przygotowuje warianty konkretnego projektu przewidując także inne technologie. Prosimy o sprawdzenie czy istnieje poszukiwana wersja projektu, w zakładce - warianty projektu.
Co zrobić gdy wybrany dom nie mieści się na działce?
Zwężenie/poszerzenie budynku* to nic innego jak zmiana w projekcie. Istnieje możliwość wprowadzenia takich zmian, we własnym zakresie (podczas adaptacji). *zwężenie/poszerzenie budynku nie powinno stanowić problemu w przypadku domów o dachu dwuspadowym jeśli wiąże się to z wydłużeniem/skróceniem kalenicy dachu.
Jakie zmiany można wprowadzić w projekcie?
- Rozmieszczenie ścian działowych.
- Zmiany funkcji pomieszczeń.
- Modyfikacje wielkości, ilości i kształtu otworów okiennych i drzwiowych.
- Użycie innych materiałów na elementy konstrukcyjne budynku (ściany, stropy) przy zachowaniu wymagań konstrukcji, parametrów cieplnych budynku i elewacji.
- Wprowadzenie częściowego lub całkowitego podpiwniczenia budynku.
- Zmiana kąta nachylenia, kształtu i konstrukcji dachu.
- Zmiana sposobu ogrzewania i prowadzenia instalacji CO, zmiany instalacji wodno-kanalizacyjnej, gazowej, oraz elektrycznej (zachowując obowiązujące normy, zgodnie z prawem budowlanym).
- Zmiana materiałów wykończeniowych: posadzek, tynków, dachówki, izolacji cieplnej i przeciwwilgociowej (przy zachowaniu niezbędnych parametrów wytrzymałości oraz parametrów przenikania ciepła).
- Zmiany wynikające z dostosowania budynku do warunków gruntowych.
- Zmiany wymiarów fundamentów.
- Zmiany wymiarów przekrojów lub rozstawu elementów więźby dachowej wynikające z dostosowania budynku do strefy śniegowej lub wiatrowej.
- Zmiany szerokości schodów, liczby stopni i wymiarów schodów wewnętrznych oraz zewnętrznych.
- Zmiany pokrycia dachowego (uwzględniając istniejące spadki i ciężar).
- Zmiany kształtu, wielkości, usytuowania elementów takich jak tarasy, wiaty, murki.
- Zmiany wysokości ścianki kolankowej.
- Zmiany usytuowania i ilości kominów.
- Dobudowanie lub usunięcie garażu lub wiaty garażowej.
- Dobudowanie lub usunięcie lukarn.
- Dobudowanie lub usunięcie balkonów.
- Dobudowanie lub usunięcie wykuszy.
- Zabudowanie podcienia.
Poznaj praktyczne porady ekspertów, które ułatwią Ci każdy etap budowy i od wyboru wymarzonego domu po jego wykończenie. Zyskaj pewność, że podejmujesz najlepsze decyzje dzięki sprawdzonym wskazówkom od specjalistów z planz.pl
Co zawiera projekt
- ✓ 3 x projekt architektoniczno-budowlany ➞ szczegóły
- ✓ Projekty techniczne ➞ szczegóły
- ✓ charakterystyka energetyczna (do projektów domów)
- ✓ zgoda na zmiany w projekcie ➞ szczegóły
- ✓ GRATIS: Wiertarka (do projektów w cenie od 3000 zł)
- ✓ GRATIS: 16 projektów (drewutni, altany i wiaty)
- ✓ GRATIS: tablica i dziennik budowy
- ✓ GRATIS: przesyłka kurierska
Szacunkowy kosztorys dla projektu E-72


Wycena szacunkowa, w kwotach netto, nie zawiera instalacji.
Dodatki do projektu E-72
[Planz] Tablica budowlana (0 zł)
[Planz] Dziennik budowy (0 zł)
[Planz] Wiertarka udarowa (0 zł)
[Planz] Zgoda na zmiany w projekcie (0 zł)
[Planz] Projekty architektury ogrodowej (0 zł)
[Planz] Charakterystyka energetyczna, tylko dla domów całorocznych (0 zł)
Wysyłka i płatność za projekt E-72

Koszty wysyłki
bezpłatnie (0zł)

Formy płatności
przelew zwykły / PayNow
przy odbiorze

Czas oczekiwania
3-5 dni roboczych
Komentarze / pytania do projektu domu E-72
Projekt w kategoriach
Zamów rozmowę
Wybierz wygodny dla Ciebie czas kontaktu z naszym Doradcą Technicznym.