TK29



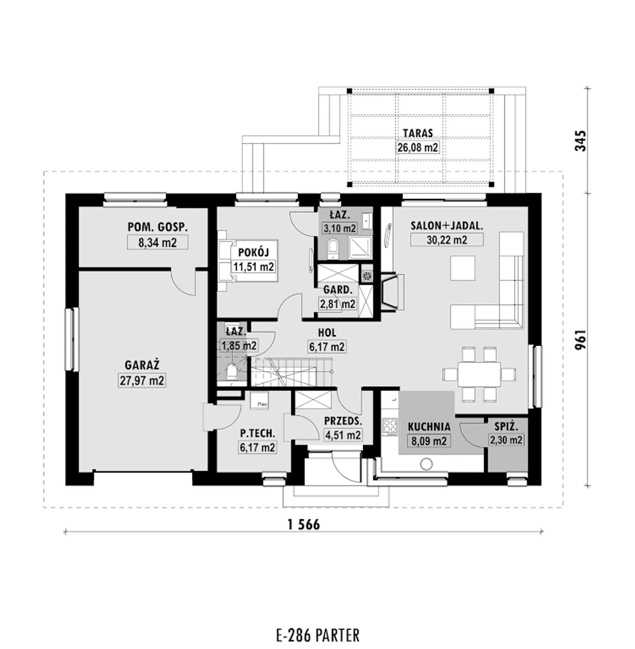
1. Przedsionek | 4,51 m² |
2. Hol | 6,17 m² |
3. Salon + jadalnia | 30,22 m² |
4. Kuchnia | 8,09 m² |
5. Spiżarnia | 2,30 m² |
6. Pokój | 11,51 m² |
7. łazienka | 3,10 m² |
8. Garderoba | 2,81 m² |
9. łazienka | 1,85 m² |
10. Pom. techniczne | 6,17 m² |
11. Pom. gospodarcze | 8,34 m² |
12. Garaż | 27,97 m² |
13. Taras | 26,08 m² |
1. Schody | 3,82 m² |
2. Hol | 9,73 m² |
3. Sypialnia | 10,90 (18,54) m² |
4. Garderoba | 5,59 (11,69) m² |
5. łazienka | 4,48 (8,22) m² |
6. Sypialnia | 8,80 (15,61) m² |
7. Sypialnia | 8,80 (15,61) m² |
8. Pralnia | 5,43 (10,51) m² |
Wypełnij formularz i otrzymaj rysunki w pdf z dokładnymi wymiarami budynku i pomieszczeń (długość, szerokość, wysokość) dla projektu E-286
Pow. użytkowa 128.1 m² |
Ilość pokoi 5 |
Powierzchnia zabudowy 150.5 m² |
Kondygnacje parterowy+poddasze |
Garaż 1 stanowisko |
Technologia murowany |
Szerokość działki 23.66 m |
Obiekt dom |
Typ domu jednorodzinny całoroczny |
Powierzchnia dachu 235 m² |
Długość działki 18.61 m |
Wysokość budynku 8.3 m |
Styl budynku nowoczesny |
Kalenica równoległa do drogi |
Liczba łazieniek 2 |
Szerokość budynku 15.66 m |
Kominek kominek w projekcie |
Kąt nachylenia dachu 40 ° |
Długość budynku 9.61 m |
Rodzaj dachu wielospadowy |
Piwnica bez podpiwniczenia |
Kubatura 536.4 m³ |
Koszty budowy 300-350 tys., tylko z kosztorysem |
Pow. użytkowa 128.1 m² |
Powierzchnia zabudowy 150.5 m² |
Garaż 1 stanowisko |
Szerokość działki 23.66 m |
Typ domu jednorodzinny całoroczny |
Długość działki 18.61 m |
Styl budynku nowoczesny |
Liczba łazieniek 2 |
Kominek kominek w projekcie |
Długość budynku 9.61 m |
Piwnica bez podpiwniczenia |
Koszty budowy 300-350 tys., tylko z kosztorysem |
Ilość pokoi 5 |
Kondygnacje parterowy+poddasze |
Technologia murowany |
Obiekt dom |
Powierzchnia dachu 235 m² |
Wysokość budynku 8.3 m |
Kalenica równoległa do drogi |
Szerokość budynku 15.66 m |
Kąt nachylenia dachu 40 ° |
Rodzaj dachu wielospadowy |
Kubatura 536.4 m³ |
Kupując projekt w technologii murowanej powinieneś budować dom murowany. Zupełna zmiana technologii na szkieletową wymaga przeprojektowania całego budynku ( zmieniają się obciążenia, fundamenty, konstrukcja dachu). Wydamy zgodę na takie przeprojektowanie jednak wiążę się to z dużymi kosztami. Istnieją firmy wykonawcze, które podejmują się zmiany technologii budowy bezpłatnie przy skorzystaniu z ich usług wykonawczych. Zdarza się, że pracownia architektoniczna przygotowuje warianty konkretnego projektu przewidując także inne technologie. Prosimy o sprawdzenie czy istnieje poszukiwana wersja projektu, w zakładce - warianty projektu.
Zwężenie/poszerzenie budynku* to nic innego jak zmiana w projekcie. Istnieje możliwość wprowadzenia takich zmian, we własnym zakresie (podczas adaptacji). *zwężenie/poszerzenie budynku nie powinno stanowić problemu w przypadku domów o dachu dwuspadowym jeśli wiąże się to z wydłużeniem/skróceniem kalenicy dachu.
Poznaj praktyczne porady ekspertów, które ułatwią Ci każdy etap budowy i od wyboru wymarzonego domu po jego wykończenie. Zyskaj pewność, że podejmujesz najlepsze decyzje dzięki sprawdzonym wskazówkom od specjalistów z planz.pl
Wycena szacunkowa, w kwotach netto, nie zawiera instalacji.
bezpłatnie (0zł)
przelew zwykły / PayNow
przy odbiorze
3-5 dni roboczych
Wybierz wygodny dla Ciebie czas kontaktu z naszym Doradcą Technicznym.