TK12



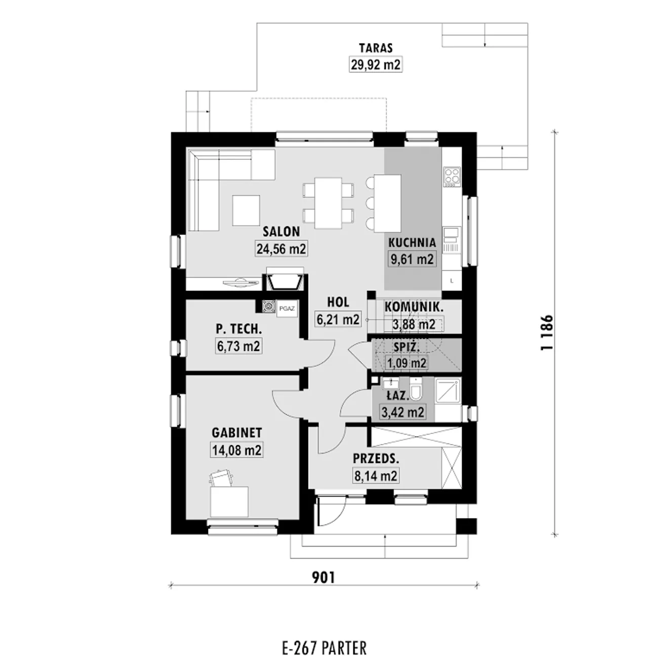
1. Przedsionek | 8,14 m² |
2. Hol | 6,21 m² |
3. Salon | 24,56 m² |
4. Kuchnia | 9,61 m² |
5. Komunikacja | 3,88 m² |
6. Spiżarnia | 1,09 m² |
7. łazienka | 3,42 m² |
8. Gabinet | 14,08 m² |
9. Pom. techniczne | 6,73 m² |
10. Taras | 29,92 m² |
1. Komunikacja | 1,51 m² |
2. Hol | 5,69 m² |
3. Sypialnia | 10,54 (13,68) m² |
4. Garderoba | 5,20 (6,74) m² |
5. łazienka | 4,94 (6,40) m² |
6. Sypialnia | 10,94 (14,19) m² |
7. Sypialnia | 10,94 (14,19) m² |
8. Pralnia | 2,60 (4,04) m² |
9. Balkon | 3,97 m² |
Wypełnij formularz i otrzymaj rysunki w pdf z dokładnymi wymiarami budynku i pomieszczeń (długość, szerokość, wysokość) dla projektu E-267
Pow. użytkowa 123.4 m² |
Ilość pokoi 4 |
Powierzchnia zabudowy 106.9 m² |
Kondygnacje parterowy+poddasze |
Garaż bez garażu |
Technologia murowany |
Szerokość działki 17.01 m |
Obiekt dom |
Typ domu jednorodzinny całoroczny |
Powierzchnia dachu 145 m² |
Długość działki 20.86 m |
Wysokość budynku 8.8 m |
Styl budynku nowoczesny |
Kalenica prostopadła do drogi |
Liczba łazieniek 2 |
Szerokość budynku 9.01 m |
Kominek kominek w projekcie |
Kąt nachylenia dachu 45 ° |
Długość budynku 11.86 m |
Rodzaj dachu dwuspadowy |
Piwnica bez podpiwniczenia |
Kubatura 385.5 m³ |
Koszty budowy 300-350 tys., tylko z kosztorysem |
Pow. użytkowa 123.4 m² |
Powierzchnia zabudowy 106.9 m² |
Garaż bez garażu |
Szerokość działki 17.01 m |
Typ domu jednorodzinny całoroczny |
Długość działki 20.86 m |
Styl budynku nowoczesny |
Liczba łazieniek 2 |
Kominek kominek w projekcie |
Długość budynku 11.86 m |
Piwnica bez podpiwniczenia |
Koszty budowy 300-350 tys., tylko z kosztorysem |
Ilość pokoi 4 |
Kondygnacje parterowy+poddasze |
Technologia murowany |
Obiekt dom |
Powierzchnia dachu 145 m² |
Wysokość budynku 8.8 m |
Kalenica prostopadła do drogi |
Szerokość budynku 9.01 m |
Kąt nachylenia dachu 45 ° |
Rodzaj dachu dwuspadowy |
Kubatura 385.5 m³ |
Kupując projekt w technologii murowanej powinieneś budować dom murowany. Zupełna zmiana technologii na szkieletową wymaga przeprojektowania całego budynku ( zmieniają się obciążenia, fundamenty, konstrukcja dachu). Wydamy zgodę na takie przeprojektowanie jednak wiążę się to z dużymi kosztami. Istnieją firmy wykonawcze, które podejmują się zmiany technologii budowy bezpłatnie przy skorzystaniu z ich usług wykonawczych. Zdarza się, że pracownia architektoniczna przygotowuje warianty konkretnego projektu przewidując także inne technologie. Prosimy o sprawdzenie czy istnieje poszukiwana wersja projektu, w zakładce - warianty projektu.
Zwężenie/poszerzenie budynku* to nic innego jak zmiana w projekcie. Istnieje możliwość wprowadzenia takich zmian, we własnym zakresie (podczas adaptacji). *zwężenie/poszerzenie budynku nie powinno stanowić problemu w przypadku domów o dachu dwuspadowym jeśli wiąże się to z wydłużeniem/skróceniem kalenicy dachu.
Poznaj praktyczne porady ekspertów, które ułatwią Ci każdy etap budowy i od wyboru wymarzonego domu po jego wykończenie. Zyskaj pewność, że podejmujesz najlepsze decyzje dzięki sprawdzonym wskazówkom od specjalistów z planz.pl
Wycena szacunkowa, w kwotach netto, nie zawiera instalacji.
bezpłatnie (0zł)
przelew zwykły / PayNow
przy odbiorze
3-5 dni roboczych
Wybierz wygodny dla Ciebie czas kontaktu z naszym Doradcą Technicznym.