E-265a



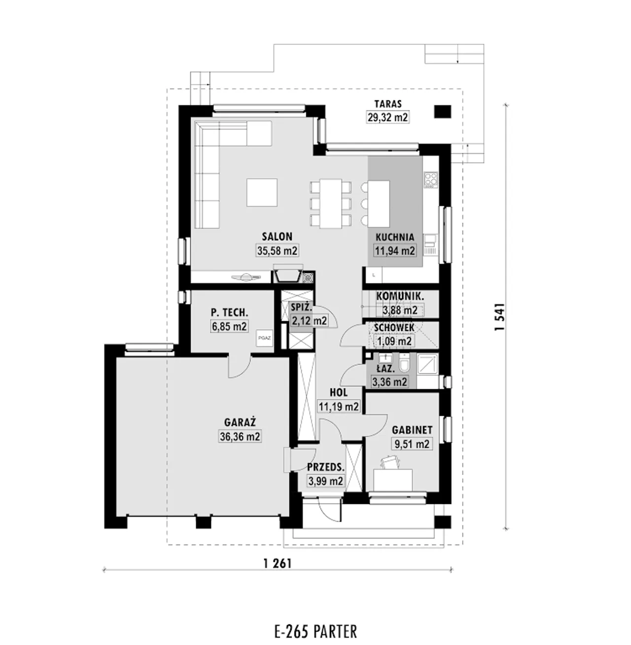
1. Przedsionek | 3,99 m² |
2. Hol | 11,19 m² |
3. Salon | 35,58 m² |
4. Kuchnia | 11,94 m² |
5. Spiżarnia | 2,12 m² |
6. Komunikacja | 3,88 m² |
7. Schowek | 1,09 m² |
8. łazienka | 3,36 m² |
9. Gabinet | 9,51 m² |
10. Pom. techniczne | 6,85 m² |
11. Garaż | 36,36 m² |
12. Taras | 29,32 m² |
1. Komunikacja | 1,51 m² |
2. Hol | 7,28 m² |
3. Sypialnia | 14,30 (17,68) m² |
4. Garderoba | 2,34 (3,73) m² |
5. łazienka | 2,77 (4,40) m² |
6. łazienka | 5,34 (7,18) m² |
7. Sypialnia | 13,29 (17,59) m² |
8. Sypialnia | 10,70 (14,41) m² |
9. Pralnia | 2,31 (3,68) m² |
10. Sypialnia | 13,32 (17,63) m² |
11. Balkon | 4,19 m² |
Wypełnij formularz i otrzymaj rysunki w pdf z dokładnymi wymiarami budynku i pomieszczeń (długość, szerokość, wysokość) dla projektu E-265
Pow. użytkowa 155.8 m² |
Ilość pokoi 6 |
Powierzchnia zabudowy 170.8 m² |
Kondygnacje parterowy+poddasze |
Garaż 2 stanowiska |
Technologia murowany |
Szerokość działki 19.61 m |
Obiekt dom |
Typ domu jednorodzinny całoroczny |
Wysokość budynku 8.8 m |
Styl budynku nowoczesny |
Kalenica prostopadła do drogi |
Liczba łazieniek 3 |
Szerokość budynku 12.61 m |
Kominek kominek w projekcie |
Kąt nachylenia dachu 42 ° |
Długość budynku 15.41 m |
Rodzaj dachu dwuspadowy |
Piwnica bez podpiwniczenia |
Kubatura 592 m³ |
Powierzchnia dachu 235 m² |
Długość działki 24.41 m |
Koszty budowy 500-550 tys., tylko z kosztorysem |
Pow. użytkowa 155.8 m² |
Powierzchnia zabudowy 170.8 m² |
Garaż 2 stanowiska |
Szerokość działki 19.61 m |
Typ domu jednorodzinny całoroczny |
Styl budynku nowoczesny |
Liczba łazieniek 3 |
Kominek kominek w projekcie |
Długość budynku 15.41 m |
Piwnica bez podpiwniczenia |
Powierzchnia dachu 235 m² |
Koszty budowy 500-550 tys., tylko z kosztorysem |
Ilość pokoi 6 |
Kondygnacje parterowy+poddasze |
Technologia murowany |
Obiekt dom |
Wysokość budynku 8.8 m |
Kalenica prostopadła do drogi |
Szerokość budynku 12.61 m |
Kąt nachylenia dachu 42 ° |
Rodzaj dachu dwuspadowy |
Kubatura 592 m³ |
Długość działki 24.41 m |
Kupując projekt w technologii murowanej powinieneś budować dom murowany. Zupełna zmiana technologii na szkieletową wymaga przeprojektowania całego budynku ( zmieniają się obciążenia, fundamenty, konstrukcja dachu). Wydamy zgodę na takie przeprojektowanie jednak wiążę się to z dużymi kosztami. Istnieją firmy wykonawcze, które podejmują się zmiany technologii budowy bezpłatnie przy skorzystaniu z ich usług wykonawczych. Zdarza się, że pracownia architektoniczna przygotowuje warianty konkretnego projektu przewidując także inne technologie. Prosimy o sprawdzenie czy istnieje poszukiwana wersja projektu, w zakładce - warianty projektu.
Zwężenie/poszerzenie budynku* to nic innego jak zmiana w projekcie. Istnieje możliwość wprowadzenia takich zmian, we własnym zakresie (podczas adaptacji). *zwężenie/poszerzenie budynku nie powinno stanowić problemu w przypadku domów o dachu dwuspadowym jeśli wiąże się to z wydłużeniem/skróceniem kalenicy dachu.
Poznaj praktyczne porady ekspertów, które ułatwią Ci każdy etap budowy i od wyboru wymarzonego domu po jego wykończenie. Zyskaj pewność, że podejmujesz najlepsze decyzje dzięki sprawdzonym wskazówkom od specjalistów z planz.pl
Wycena szacunkowa, w kwotach netto, nie zawiera instalacji.
bezpłatnie (0zł)
przelew zwykły / PayNow
przy odbiorze
3-5 dni roboczych
Wybierz wygodny dla Ciebie czas kontaktu z naszym Doradcą Technicznym.