E-238a



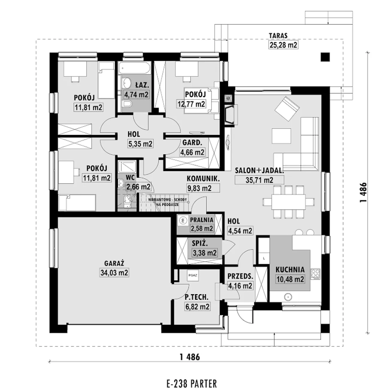
1. Przedsionek | 4,16 m² |
2. Hol | 4,54 m² |
3. Salon + jadalnia | 35,71 m² |
4. Kuchnia | 10,48 m² |
5. Komunikacja | 9,83 m² |
6. Garderoba | 4,66 m² |
7. Hol | 5,35 m² |
8. Pokój | 12,77 m² |
9. łazienka | 4,74 m² |
10. Pokój | 11,81 m² |
11. Pokój | 11,81 m² |
12. Wc | 2,66 m² |
13. Pralnia | 2,58 m² |
14. Spiżarnia | 3,38 m² |
15. Kotłowania | 6,82 m² |
16. Garaż | 34,03 m² |
17. Taras | 25,28 m² |
Wypełnij formularz i otrzymaj rysunki w pdf z dokładnymi wymiarami budynku i pomieszczeń (długość, szerokość, wysokość) dla projektu E-238
Pow. użytkowa 124.5 m² |
Ilość pokoi 4 |
Powierzchnia zabudowy 220.8 m² |
Kondygnacje parterowy |
Garaż 2 stanowiska |
Technologia murowany |
Szerokość działki 22.86 m |
Obiekt dom |
Typ domu jednorodzinny całoroczny |
Wysokość budynku 8.4 m |
Styl budynku nowoczesny |
Kalenica bez znaczenia |
Liczba łazieniek 2 |
Szerokość budynku 14.86 m |
Kominek kominek w projekcie |
Kąt nachylenia dachu 30 ° |
Długość budynku 14.86 m |
Rodzaj dachu wielospadowy |
Piwnica bez podpiwniczenia |
Kubatura 490.9 m³ |
Powierzchnia dachu 300 m² |
Długość działki 23.86 m |
Koszty budowy 350-400 tys., tylko z kosztorysem |
Pow. użytkowa 124.5 m² |
Powierzchnia zabudowy 220.8 m² |
Garaż 2 stanowiska |
Szerokość działki 22.86 m |
Typ domu jednorodzinny całoroczny |
Styl budynku nowoczesny |
Liczba łazieniek 2 |
Kominek kominek w projekcie |
Długość budynku 14.86 m |
Piwnica bez podpiwniczenia |
Powierzchnia dachu 300 m² |
Koszty budowy 350-400 tys., tylko z kosztorysem |
Ilość pokoi 4 |
Kondygnacje parterowy |
Technologia murowany |
Obiekt dom |
Wysokość budynku 8.4 m |
Kalenica bez znaczenia |
Szerokość budynku 14.86 m |
Kąt nachylenia dachu 30 ° |
Rodzaj dachu wielospadowy |
Kubatura 490.9 m³ |
Długość działki 23.86 m |
Kupując projekt w technologii murowanej powinieneś budować dom murowany. Zupełna zmiana technologii na szkieletową wymaga przeprojektowania całego budynku ( zmieniają się obciążenia, fundamenty, konstrukcja dachu). Wydamy zgodę na takie przeprojektowanie jednak wiążę się to z dużymi kosztami. Istnieją firmy wykonawcze, które podejmują się zmiany technologii budowy bezpłatnie przy skorzystaniu z ich usług wykonawczych. Zdarza się, że pracownia architektoniczna przygotowuje warianty konkretnego projektu przewidując także inne technologie. Prosimy o sprawdzenie czy istnieje poszukiwana wersja projektu, w zakładce - warianty projektu.
Zwężenie/poszerzenie budynku* to nic innego jak zmiana w projekcie. Istnieje możliwość wprowadzenia takich zmian, we własnym zakresie (podczas adaptacji). *zwężenie/poszerzenie budynku nie powinno stanowić problemu w przypadku domów o dachu dwuspadowym jeśli wiąże się to z wydłużeniem/skróceniem kalenicy dachu.
Poznaj praktyczne porady ekspertów, które ułatwią Ci każdy etap budowy i od wyboru wymarzonego domu po jego wykończenie. Zyskaj pewność, że podejmujesz najlepsze decyzje dzięki sprawdzonym wskazówkom od specjalistów z planz.pl
Wycena szacunkowa, w kwotach netto, nie zawiera instalacji.
bezpłatnie (0zł)
przelew zwykły / PayNow
przy odbiorze
3-5 dni roboczych
Wybierz wygodny dla Ciebie czas kontaktu z naszym Doradcą Technicznym.