Koralgol 2G



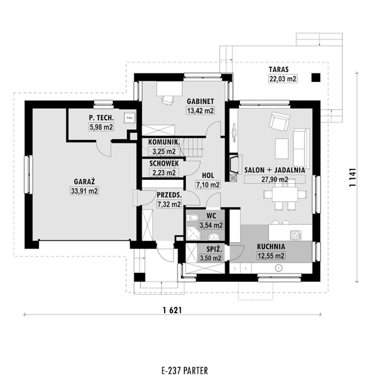
1. Przedsionek | 7,32 m² |
2. Hol | 7,10 m² |
3. Salon + jadalnia | 27,90 m² |
4. Kuchnia | 12,55 m² |
5. Spiżarnia | 3,50 m² |
6. Gabinet | 13,42 m² |
7. Komunikacja | 3,25 m² |
8. Schowek | 2,23 m² |
9. Wc | 3,54 m² |
10. Pom. techniczne | 5,98 m² |
11. Garaż | 33,91 m² |
12. Taras | 22,03 m² |
1. Komunikacja | 1,91 m² |
2. Hol | 8,80 m² |
3. Sypialnia | 14,30 (19,60) m² |
4. łazienka | 5,02 (5,85) m² |
5. łazienka | 5,38 (6,19) m² |
6. Pralnia | 4,09 m² |
7. Sypialnia | 10,05 (12,89) m² |
8. Sypialnia | 9,58 (12,93) m² |
9. Strych | 40,58 m² |
10. Taras | 4,71 m² |
Wypełnij formularz i otrzymaj rysunki w pdf z dokładnymi wymiarami budynku i pomieszczeń (długość, szerokość, wysokość) dla projektu E-237
Pow. użytkowa 139.9 m² |
Ilość pokoi 5 |
Powierzchnia zabudowy 165.2 m² |
Kondygnacje parterowy+poddasze |
Garaż 2 stanowiska |
Technologia murowany |
Szerokość działki 24.21 m |
Obiekt dom |
Typ domu jednorodzinny całoroczny |
Wysokość budynku 8.5 m |
Styl budynku nowoczesny |
Kalenica prostopadła do drogi |
Liczba łazieniek 3 |
Szerokość budynku 16.21 m |
Kominek kominek w projekcie |
Kąt nachylenia dachu 38 ° |
Długość budynku 11.41 m |
Rodzaj dachu dwuspadowy |
Piwnica bez podpiwniczenia |
Kubatura 609.2 m³ |
Powierzchnia dachu 240 m² |
Długość działki 20.41 m |
Koszty budowy 350-400 tys., tylko z kosztorysem |
Pow. użytkowa 139.9 m² |
Powierzchnia zabudowy 165.2 m² |
Garaż 2 stanowiska |
Szerokość działki 24.21 m |
Typ domu jednorodzinny całoroczny |
Styl budynku nowoczesny |
Liczba łazieniek 3 |
Kominek kominek w projekcie |
Długość budynku 11.41 m |
Piwnica bez podpiwniczenia |
Powierzchnia dachu 240 m² |
Koszty budowy 350-400 tys., tylko z kosztorysem |
Ilość pokoi 5 |
Kondygnacje parterowy+poddasze |
Technologia murowany |
Obiekt dom |
Wysokość budynku 8.5 m |
Kalenica prostopadła do drogi |
Szerokość budynku 16.21 m |
Kąt nachylenia dachu 38 ° |
Rodzaj dachu dwuspadowy |
Kubatura 609.2 m³ |
Długość działki 20.41 m |
Kupując projekt w technologii murowanej powinieneś budować dom murowany. Zupełna zmiana technologii na szkieletową wymaga przeprojektowania całego budynku ( zmieniają się obciążenia, fundamenty, konstrukcja dachu). Wydamy zgodę na takie przeprojektowanie jednak wiążę się to z dużymi kosztami. Istnieją firmy wykonawcze, które podejmują się zmiany technologii budowy bezpłatnie przy skorzystaniu z ich usług wykonawczych. Zdarza się, że pracownia architektoniczna przygotowuje warianty konkretnego projektu przewidując także inne technologie. Prosimy o sprawdzenie czy istnieje poszukiwana wersja projektu, w zakładce - warianty projektu.
Zwężenie/poszerzenie budynku* to nic innego jak zmiana w projekcie. Istnieje możliwość wprowadzenia takich zmian, we własnym zakresie (podczas adaptacji). *zwężenie/poszerzenie budynku nie powinno stanowić problemu w przypadku domów o dachu dwuspadowym jeśli wiąże się to z wydłużeniem/skróceniem kalenicy dachu.
Poznaj praktyczne porady ekspertów, które ułatwią Ci każdy etap budowy i od wyboru wymarzonego domu po jego wykończenie. Zyskaj pewność, że podejmujesz najlepsze decyzje dzięki sprawdzonym wskazówkom od specjalistów z planz.pl
Wycena szacunkowa, w kwotach netto, nie zawiera instalacji.
bezpłatnie (0zł)
przelew zwykły / PayNow
przy odbiorze
3-5 dni roboczych
Wybierz wygodny dla Ciebie czas kontaktu z naszym Doradcą Technicznym.