TK36



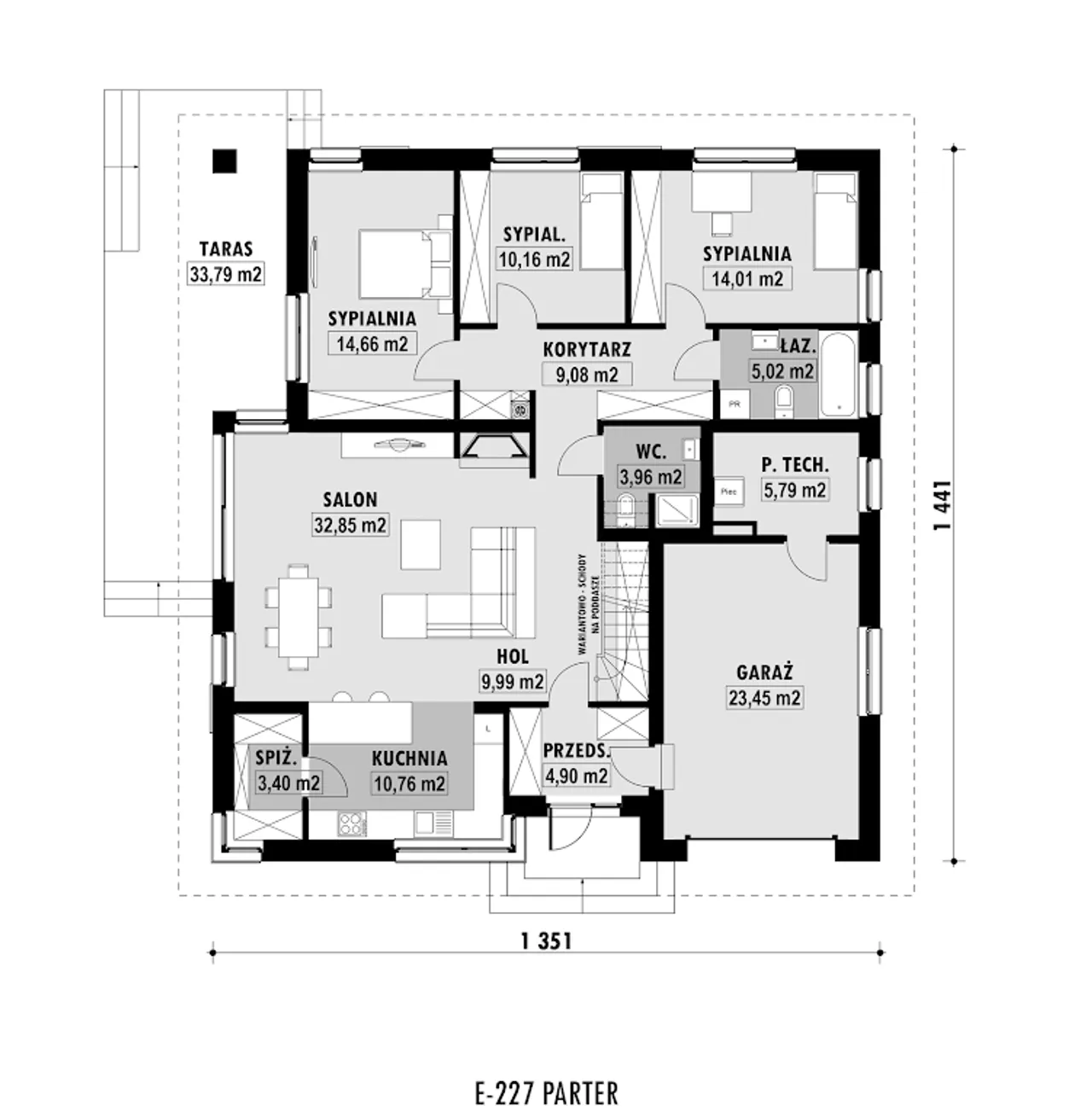
1. Przedsionek | 4,90 m² |
2. Hol | 9,99 m² |
3. Salon | 32,85 m² |
4. Kuchnia | 10,76 m² |
5. Spiżarnia | 3,40 m² |
6. Wc | 3,96 m² |
7. Korytarz | 9,08 m² |
8. Sypialnia | 14,66 m² |
9. Sypialnia | 10,16 m² |
10. Sypialnia | 14,01 m² |
11. łazienka | 5,02 m² |
12. Pom. techniczne | 5,79 m² |
13. Garaż | 23,45 m² |
14. Taras | 33,79 m² |
Wypełnij formularz i otrzymaj rysunki w pdf z dokładnymi wymiarami budynku i pomieszczeń (długość, szerokość, wysokość) dla projektu E-227
Pow. użytkowa 118.8 m² |
Ilość pokoi 4 |
Powierzchnia zabudowy 194.7 m² |
Kondygnacje parterowy |
Garaż 1 stanowisko |
Technologia murowany |
Szerokość działki 21.51 m |
Obiekt dom |
Typ domu jednorodzinny całoroczny |
Powierzchnia dachu 270 m² |
Długość działki 23.41 m |
Wysokość budynku 8 m |
Styl budynku nowoczesny |
Kalenica prostopadła do drogi |
Liczba łazieniek 2 |
Szerokość budynku 13.51 m |
Kominek kominek w projekcie |
Kąt nachylenia dachu 30 ° |
Długość budynku 14.41 m |
Rodzaj dachu wielospadowy |
Piwnica bez podpiwniczenia |
Kubatura 440 m³ |
Koszty budowy 350-400 tys., tylko z kosztorysem |
Pow. użytkowa 118.8 m² |
Powierzchnia zabudowy 194.7 m² |
Garaż 1 stanowisko |
Szerokość działki 21.51 m |
Typ domu jednorodzinny całoroczny |
Długość działki 23.41 m |
Styl budynku nowoczesny |
Liczba łazieniek 2 |
Kominek kominek w projekcie |
Długość budynku 14.41 m |
Piwnica bez podpiwniczenia |
Koszty budowy 350-400 tys., tylko z kosztorysem |
Ilość pokoi 4 |
Kondygnacje parterowy |
Technologia murowany |
Obiekt dom |
Powierzchnia dachu 270 m² |
Wysokość budynku 8 m |
Kalenica prostopadła do drogi |
Szerokość budynku 13.51 m |
Kąt nachylenia dachu 30 ° |
Rodzaj dachu wielospadowy |
Kubatura 440 m³ |
Kupując projekt w technologii murowanej powinieneś budować dom murowany. Zupełna zmiana technologii na szkieletową wymaga przeprojektowania całego budynku ( zmieniają się obciążenia, fundamenty, konstrukcja dachu). Wydamy zgodę na takie przeprojektowanie jednak wiążę się to z dużymi kosztami. Istnieją firmy wykonawcze, które podejmują się zmiany technologii budowy bezpłatnie przy skorzystaniu z ich usług wykonawczych. Zdarza się, że pracownia architektoniczna przygotowuje warianty konkretnego projektu przewidując także inne technologie. Prosimy o sprawdzenie czy istnieje poszukiwana wersja projektu, w zakładce - warianty projektu.
Zwężenie/poszerzenie budynku* to nic innego jak zmiana w projekcie. Istnieje możliwość wprowadzenia takich zmian, we własnym zakresie (podczas adaptacji). *zwężenie/poszerzenie budynku nie powinno stanowić problemu w przypadku domów o dachu dwuspadowym jeśli wiąże się to z wydłużeniem/skróceniem kalenicy dachu.
Poznaj praktyczne porady ekspertów, które ułatwią Ci każdy etap budowy i od wyboru wymarzonego domu po jego wykończenie. Zyskaj pewność, że podejmujesz najlepsze decyzje dzięki sprawdzonym wskazówkom od specjalistów z planz.pl
Wycena szacunkowa, w kwotach netto, nie zawiera instalacji.
bezpłatnie (0zł)
przelew zwykły / PayNow
przy odbiorze
3-5 dni roboczych
Wybierz wygodny dla Ciebie czas kontaktu z naszym Doradcą Technicznym.