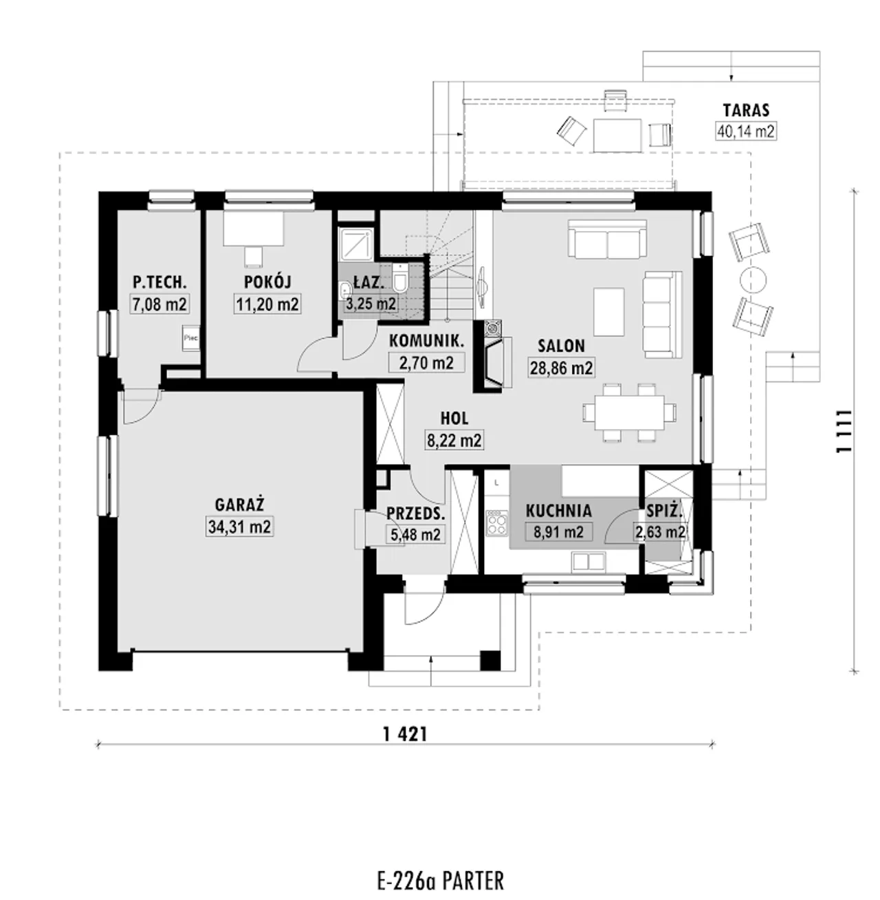
E-226



1. Przedsionek | 5,48 m² |
2. Hol | 8,22 m² |
3. Salon | 28,86 m² |
4. Kuchnia | 8,91 m² |
5. Spiżarnia | 2,63 m² |
6. Komunikacja | 2,70 m² |
7. łazienka | 3,25 m² |
8. Pokój | 11,20 m² |
9. Pom. techniczne | 7,08 m² |
10. Garaż | 34,31 m² |
11. Taras | 40,14 m² |
1. Komunikacja | 2,50 m² |
2. Hol | 11,46 m² |
3. Sypialnia | 10,69 (19,32) m² |
4. łazienka | 4,91 (7,28) m² |
5. Sypialnia | 10,34 (18,67) m² |
6. Sypialnia | 8,43 (15,93) m² |
7. Sypialnia | 9,60 (17,46) m² |
8. Pralnia | 3,03 (7,29) m² |
Wypełnij formularz i otrzymaj rysunki w pdf z dokładnymi wymiarami budynku i pomieszczeń (długość, szerokość, wysokość) dla projektu E-226a
Pow. użytkowa 132.2 m² |
Ilość pokoi 6 |
Powierzchnia zabudowy 149.1 m² |
Kondygnacje parterowy+poddasze |
Garaż 2 stanowiska |
Technologia murowany |
Szerokość działki 22.21 m |
Obiekt dom |
Typ domu jednorodzinny całoroczny |
Powierzchnia dachu 235 m² |
Długość działki 20.86 m |
Wysokość budynku 8.1 m |
Styl budynku nowoczesny |
Kalenica bez znaczenia |
Liczba łazieniek 2 |
Szerokość budynku 14.21 m |
Kominek kominek w projekcie |
Kąt nachylenia dachu 37 ° |
Długość budynku 11.11 m |
Rodzaj dachu wielospadowy |
Piwnica bez podpiwniczenia |
Kubatura 537.5 m³ |
Koszty budowy 350-400 tys., tylko z kosztorysem |
Pow. użytkowa 132.2 m² |
Powierzchnia zabudowy 149.1 m² |
Garaż 2 stanowiska |
Szerokość działki 22.21 m |
Typ domu jednorodzinny całoroczny |
Długość działki 20.86 m |
Styl budynku nowoczesny |
Liczba łazieniek 2 |
Kominek kominek w projekcie |
Długość budynku 11.11 m |
Piwnica bez podpiwniczenia |
Koszty budowy 350-400 tys., tylko z kosztorysem |
Ilość pokoi 6 |
Kondygnacje parterowy+poddasze |
Technologia murowany |
Obiekt dom |
Powierzchnia dachu 235 m² |
Wysokość budynku 8.1 m |
Kalenica bez znaczenia |
Szerokość budynku 14.21 m |
Kąt nachylenia dachu 37 ° |
Rodzaj dachu wielospadowy |
Kubatura 537.5 m³ |
Kupując projekt w technologii murowanej powinieneś budować dom murowany. Zupełna zmiana technologii na szkieletową wymaga przeprojektowania całego budynku ( zmieniają się obciążenia, fundamenty, konstrukcja dachu). Wydamy zgodę na takie przeprojektowanie jednak wiążę się to z dużymi kosztami. Istnieją firmy wykonawcze, które podejmują się zmiany technologii budowy bezpłatnie przy skorzystaniu z ich usług wykonawczych. Zdarza się, że pracownia architektoniczna przygotowuje warianty konkretnego projektu przewidując także inne technologie. Prosimy o sprawdzenie czy istnieje poszukiwana wersja projektu, w zakładce - warianty projektu.
Zwężenie/poszerzenie budynku* to nic innego jak zmiana w projekcie. Istnieje możliwość wprowadzenia takich zmian, we własnym zakresie (podczas adaptacji). *zwężenie/poszerzenie budynku nie powinno stanowić problemu w przypadku domów o dachu dwuspadowym jeśli wiąże się to z wydłużeniem/skróceniem kalenicy dachu.
Poznaj praktyczne porady ekspertów, które ułatwią Ci każdy etap budowy i od wyboru wymarzonego domu po jego wykończenie. Zyskaj pewność, że podejmujesz najlepsze decyzje dzięki sprawdzonym wskazówkom od specjalistów z planz.pl
Wycena szacunkowa, w kwotach netto, nie zawiera instalacji.
bezpłatnie (0zł)
przelew zwykły / PayNow
przy odbiorze
3-5 dni roboczych
Wybierz wygodny dla Ciebie czas kontaktu z naszym Doradcą Technicznym.