TK31



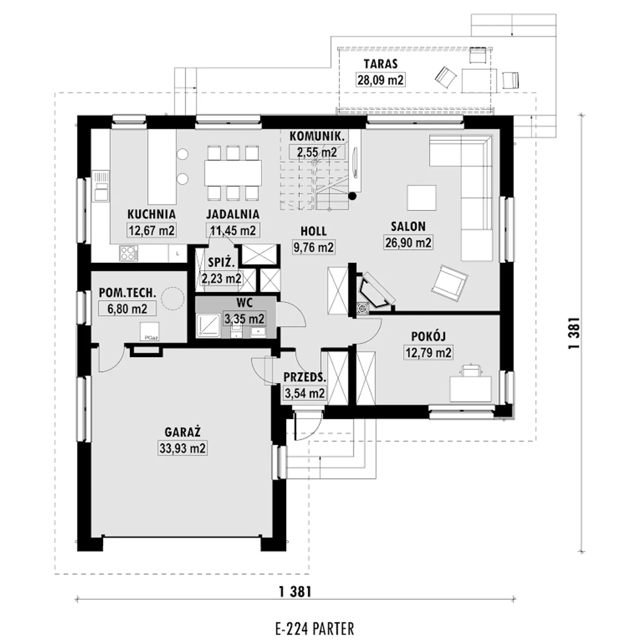
1. Przedsionek | 3,54 m² |
2. Hol | 9,76 m² |
3. Komunikacja | 2,55 m² |
4. Jadalnia | 11,45 m² |
5. Spiżarnia | 11,45 m² |
6. Kuchnia | 12,67 m² |
7. Salon | 26,90 m² |
8. Pokój | 12,79 m² |
9. Wc | 3,35 m² |
10. Pom. techniczne | 6,80 m² |
11. Garaż | 33,93 m² |
12. Taras | 28,09 m² |
1. Hol | 10,66 m² |
2. Sypialnia | 16,48 (29,51) m² |
3. łazienka | 2,37 (4,97) m² |
4. Pralnia | 1,00 (3,29) m² |
5. Sypialnia | 9,44 (17,39) m² |
6. Sypialnia | 6,75 (13,32) m² |
7. Sypialnia | 7,53 (14,50) m² |
8. łazienka | 3,35 (5,54) m² |
9. Wc | 1,33 (1,53) m² |
10. Komunikacja | 2,57 m² |
Wypełnij formularz i otrzymaj rysunki w pdf z dokładnymi wymiarami budynku i pomieszczeń (długość, szerokość, wysokość) dla projektu E-224
Pow. użytkowa 146.7 m² |
Ilość pokoi 6 |
Powierzchnia zabudowy 160.5 m² |
Kondygnacje parterowy+poddasze |
Garaż 2 stanowiska |
Technologia murowany |
Szerokość działki 21.81 m |
Obiekt dom |
Typ domu jednorodzinny całoroczny |
Powierzchnia dachu 240 m² |
Długość działki 22.81 m |
Wysokość budynku 8 m |
Styl budynku nowoczesny |
Kalenica równoległa do drogi |
Liczba łazieniek 3 |
Szerokość budynku 13.81 m |
Kominek kominek w projekcie |
Kąt nachylenia dachu 37 ° |
Długość budynku 13.81 m |
Rodzaj dachu wielospadowy |
Piwnica bez podpiwniczenia |
Kubatura 554.5 m³ |
Koszty budowy 400-450 tys., tylko z kosztorysem |
Pow. użytkowa 146.7 m² |
Powierzchnia zabudowy 160.5 m² |
Garaż 2 stanowiska |
Szerokość działki 21.81 m |
Typ domu jednorodzinny całoroczny |
Długość działki 22.81 m |
Styl budynku nowoczesny |
Liczba łazieniek 3 |
Kominek kominek w projekcie |
Długość budynku 13.81 m |
Piwnica bez podpiwniczenia |
Koszty budowy 400-450 tys., tylko z kosztorysem |
Ilość pokoi 6 |
Kondygnacje parterowy+poddasze |
Technologia murowany |
Obiekt dom |
Powierzchnia dachu 240 m² |
Wysokość budynku 8 m |
Kalenica równoległa do drogi |
Szerokość budynku 13.81 m |
Kąt nachylenia dachu 37 ° |
Rodzaj dachu wielospadowy |
Kubatura 554.5 m³ |
Kupując projekt w technologii murowanej powinieneś budować dom murowany. Zupełna zmiana technologii na szkieletową wymaga przeprojektowania całego budynku ( zmieniają się obciążenia, fundamenty, konstrukcja dachu). Wydamy zgodę na takie przeprojektowanie jednak wiążę się to z dużymi kosztami. Istnieją firmy wykonawcze, które podejmują się zmiany technologii budowy bezpłatnie przy skorzystaniu z ich usług wykonawczych. Zdarza się, że pracownia architektoniczna przygotowuje warianty konkretnego projektu przewidując także inne technologie. Prosimy o sprawdzenie czy istnieje poszukiwana wersja projektu, w zakładce - warianty projektu.
Zwężenie/poszerzenie budynku* to nic innego jak zmiana w projekcie. Istnieje możliwość wprowadzenia takich zmian, we własnym zakresie (podczas adaptacji). *zwężenie/poszerzenie budynku nie powinno stanowić problemu w przypadku domów o dachu dwuspadowym jeśli wiąże się to z wydłużeniem/skróceniem kalenicy dachu.
Poznaj praktyczne porady ekspertów, które ułatwią Ci każdy etap budowy i od wyboru wymarzonego domu po jego wykończenie. Zyskaj pewność, że podejmujesz najlepsze decyzje dzięki sprawdzonym wskazówkom od specjalistów z planz.pl
Wycena szacunkowa, w kwotach netto, nie zawiera instalacji.
bezpłatnie (0zł)
przelew zwykły / PayNow
przy odbiorze
3-5 dni roboczych
Wybierz wygodny dla Ciebie czas kontaktu z naszym Doradcą Technicznym.