Granada



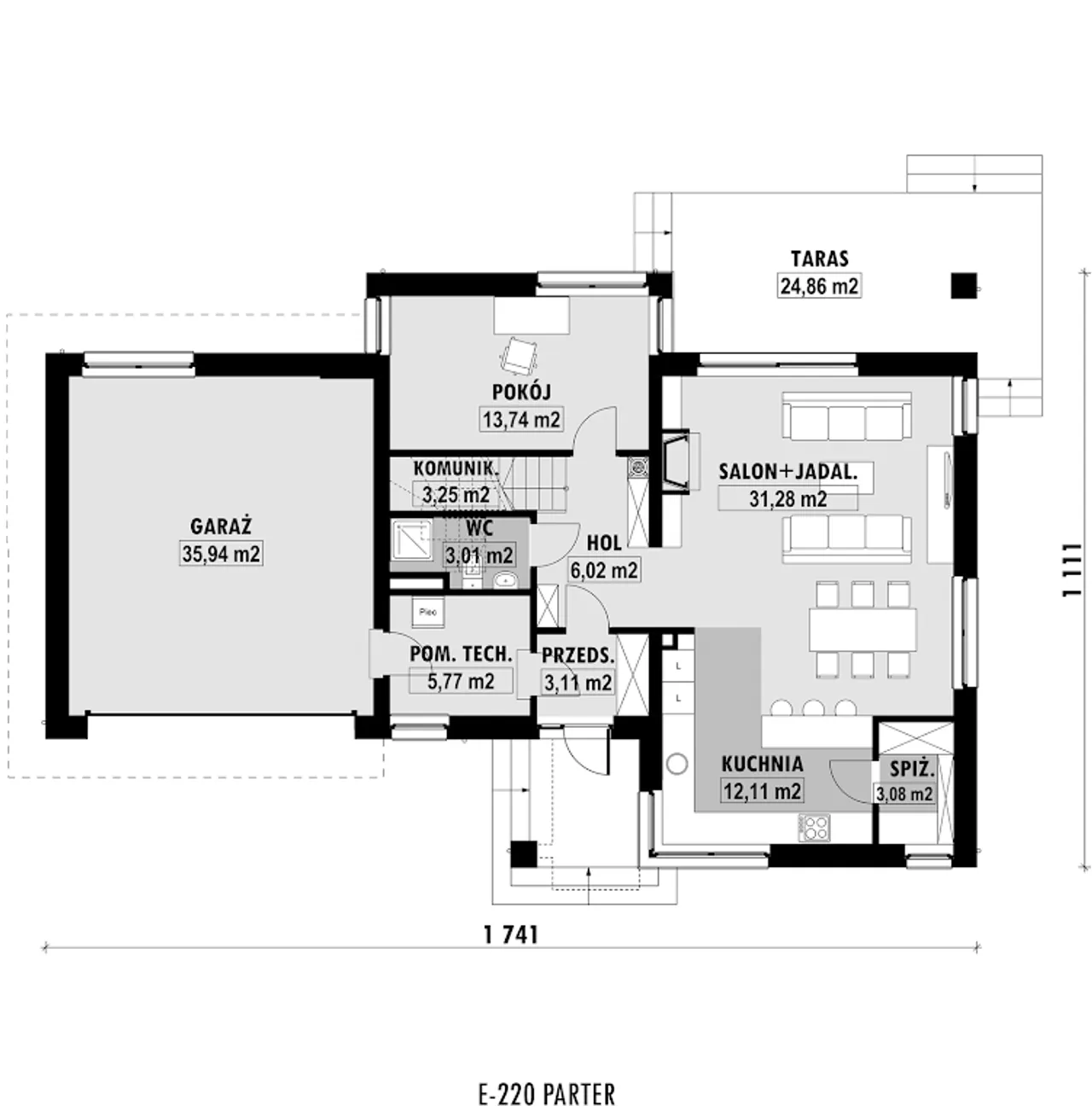
1. Przedsionek | 3,11 m² |
2. Hol | 6,02 m² |
3. Salon + jadalnia | 31,28 m² |
4. Kuchnia | 12,11 m² |
5. Spiżarnia | 3,08 m² |
6. Pokój | 13,74 m² |
7. Komunikacja | 3,25 m² |
8. Wc | 3,01 m² |
9. Pom. techniczne | 5,77 m² |
10. Garaż | 35,94 m² |
11. Taras | 24,86 m² |
1. Hol | 9,80 m² |
2. Sypialnia | 19,40 m² |
3. Garderoba | 3,75 m² |
4. łazienka | 3,66 m² |
5. łazienka | 7,05 m² |
6. Komunikacja | 1,91 m² |
7. Sypialnia | 13,74 m² |
8. Sypialnia | 15,91 m² |
9. Pralnia | 2,31 m² |
10. Strych | 36,14 m² |
11. Taras | 13,28 m² |
12. Taras | 4,57 m² |
Wypełnij formularz i otrzymaj rysunki w pdf z dokładnymi wymiarami budynku i pomieszczeń (długość, szerokość, wysokość) dla projektu E-220
Pow. użytkowa 158.9 m² |
Ilość pokoi 5 |
Powierzchnia zabudowy 163.7 m² |
Kondygnacje piętrowy |
Garaż 2 stanowiska |
Technologia murowany |
Szerokość działki 24.41 m |
Obiekt dom |
Typ domu jednorodzinny całoroczny |
Wysokość budynku 9 m |
Styl budynku nowoczesny |
Liczba łazieniek 3 |
Kalenica równoległa do drogi |
Szerokość budynku 17.41 m |
Kominek kominek w projekcie |
Kąt nachylenia dachu 25 ° |
Długość budynku 11.11 m |
Piwnica bez podpiwniczenia |
Kubatura 578.4 m³ |
Rodzaj dachu wielospadowy |
Powierzchnia dachu 210 m² |
Długość działki 20.11 m |
Ogrzewanie paliwo stałe, pompa ciepła |
Koszty budowy 500-550 tys., tylko z kosztorysem |
Pow. użytkowa 158.9 m² |
Powierzchnia zabudowy 163.7 m² |
Garaż 2 stanowiska |
Szerokość działki 24.41 m |
Typ domu jednorodzinny całoroczny |
Styl budynku nowoczesny |
Kalenica równoległa do drogi |
Kominek kominek w projekcie |
Długość budynku 11.11 m |
Kubatura 578.4 m³ |
Powierzchnia dachu 210 m² |
Ogrzewanie paliwo stałe, pompa ciepła |
Ilość pokoi 5 |
Kondygnacje piętrowy |
Technologia murowany |
Obiekt dom |
Wysokość budynku 9 m |
Liczba łazieniek 3 |
Szerokość budynku 17.41 m |
Kąt nachylenia dachu 25 ° |
Piwnica bez podpiwniczenia |
Rodzaj dachu wielospadowy |
Długość działki 20.11 m |
Koszty budowy 500-550 tys., tylko z kosztorysem |
Kupując projekt w technologii murowanej powinieneś budować dom murowany. Zupełna zmiana technologii na szkieletową wymaga przeprojektowania całego budynku ( zmieniają się obciążenia, fundamenty, konstrukcja dachu). Wydamy zgodę na takie przeprojektowanie jednak wiążę się to z dużymi kosztami. Istnieją firmy wykonawcze, które podejmują się zmiany technologii budowy bezpłatnie przy skorzystaniu z ich usług wykonawczych. Zdarza się, że pracownia architektoniczna przygotowuje warianty konkretnego projektu przewidując także inne technologie. Prosimy o sprawdzenie czy istnieje poszukiwana wersja projektu, w zakładce - warianty projektu.
Zwężenie/poszerzenie budynku* to nic innego jak zmiana w projekcie. Istnieje możliwość wprowadzenia takich zmian, we własnym zakresie (podczas adaptacji). *zwężenie/poszerzenie budynku nie powinno stanowić problemu w przypadku domów o dachu dwuspadowym jeśli wiąże się to z wydłużeniem/skróceniem kalenicy dachu.
Poznaj praktyczne porady ekspertów, które ułatwią Ci każdy etap budowy i od wyboru wymarzonego domu po jego wykończenie. Zyskaj pewność, że podejmujesz najlepsze decyzje dzięki sprawdzonym wskazówkom od specjalistów z planz.pl
Wycena szacunkowa, w kwotach netto, nie zawiera instalacji.
bezpłatnie (0zł)
przelew zwykły / PayNow
przy odbiorze
3-5 dni roboczych
Wybierz wygodny dla Ciebie czas kontaktu z naszym Doradcą Technicznym.