Granada



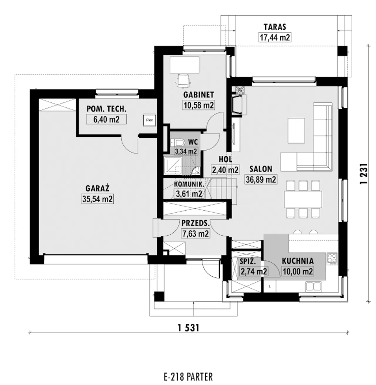
1. Przedsionek | 7,63 m² |
2. Salon | 36,89 m² |
3. Kuchnia | 10,00 m² |
4. Spiżarnia | 2,74 m² |
5. Hol | 2,40 m² |
6. Komunikacja | 3,61 m² |
7. Wc | 3,34 m² |
8. Gabinet | 10,58 m² |
9. Pom. techniczne | 6,40 m² |
10. Garaż | 35,54 m² |
11. Taras | 17,44 m² |
Wypełnij formularz i otrzymaj rysunki w pdf z dokładnymi wymiarami budynku i pomieszczeń (długość, szerokość, wysokość) dla projektu E-218
Pow. użytkowa 159.4 m² |
Ilość pokoi 6 |
Powierzchnia zabudowy 165.1 m² |
Kondygnacje piętrowy |
Garaż 2 stanowiska |
Technologia murowany |
Szerokość działki 22.31 m |
Obiekt dom |
Typ domu jednorodzinny całoroczny |
Kubatura 553.7 m³ |
Powierzchnia dachu 215 m² |
Długość działki 21.31 m |
Wysokość budynku 9.3 m |
Styl budynku nowoczesny |
Kalenica prostopadła do drogi |
Liczba łazieniek 3 |
Szerokość budynku 15.31 m |
Kominek kominek w projekcie |
Kąt nachylenia dachu 25 ° |
Długość budynku 12.31 m |
Rodzaj dachu wielospadowy |
Piwnica bez podpiwniczenia |
Koszty budowy 500-550 tys., tylko z kosztorysem |
Pow. użytkowa 159.4 m² |
Powierzchnia zabudowy 165.1 m² |
Garaż 2 stanowiska |
Szerokość działki 22.31 m |
Typ domu jednorodzinny całoroczny |
Powierzchnia dachu 215 m² |
Wysokość budynku 9.3 m |
Kalenica prostopadła do drogi |
Szerokość budynku 15.31 m |
Kąt nachylenia dachu 25 ° |
Rodzaj dachu wielospadowy |
Koszty budowy 500-550 tys., tylko z kosztorysem |
Ilość pokoi 6 |
Kondygnacje piętrowy |
Technologia murowany |
Obiekt dom |
Kubatura 553.7 m³ |
Długość działki 21.31 m |
Styl budynku nowoczesny |
Liczba łazieniek 3 |
Kominek kominek w projekcie |
Długość budynku 12.31 m |
Piwnica bez podpiwniczenia |
Kupując projekt w technologii murowanej powinieneś budować dom murowany. Zupełna zmiana technologii na szkieletową wymaga przeprojektowania całego budynku ( zmieniają się obciążenia, fundamenty, konstrukcja dachu). Wydamy zgodę na takie przeprojektowanie jednak wiążę się to z dużymi kosztami. Istnieją firmy wykonawcze, które podejmują się zmiany technologii budowy bezpłatnie przy skorzystaniu z ich usług wykonawczych. Zdarza się, że pracownia architektoniczna przygotowuje warianty konkretnego projektu przewidując także inne technologie. Prosimy o sprawdzenie czy istnieje poszukiwana wersja projektu, w zakładce - warianty projektu.
Zwężenie/poszerzenie budynku* to nic innego jak zmiana w projekcie. Istnieje możliwość wprowadzenia takich zmian, we własnym zakresie (podczas adaptacji). *zwężenie/poszerzenie budynku nie powinno stanowić problemu w przypadku domów o dachu dwuspadowym jeśli wiąże się to z wydłużeniem/skróceniem kalenicy dachu.
Poznaj praktyczne porady ekspertów, które ułatwią Ci każdy etap budowy i od wyboru wymarzonego domu po jego wykończenie. Zyskaj pewność, że podejmujesz najlepsze decyzje dzięki sprawdzonym wskazówkom od specjalistów z planz.pl
Wycena szacunkowa, w kwotach netto, nie zawiera instalacji.
bezpłatnie (0zł)
przelew zwykły / PayNow
przy odbiorze
3-5 dni roboczych
Wybierz wygodny dla Ciebie czas kontaktu z naszym Doradcą Technicznym.