TK33



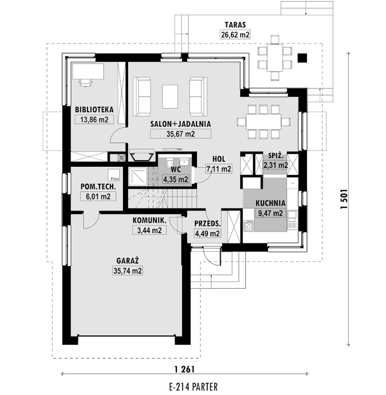
1. Przedsionek | 4,49 m² |
2. Hol | 7,11 m² |
3. Salon + jadalnia | 35,67 m² |
4. Kuchnia | 9,47 m² |
5. Spiżarnia | 2,31 m² |
6. Wc | 4,35 m² |
7. Biblioteka | 13,86 m² |
8. Komunikacja | 3,44 m² |
9. Pom. techniczne | 6,01 m² |
10. Garaż | 35,74 m² |
11. Taras | 26,62 m² |
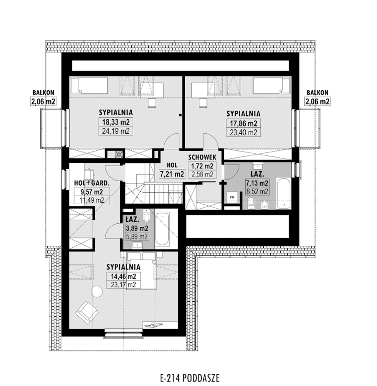
1. Hol | 7,21 m² |
2. Sypialnia | 14,46 (23,17) m² |
3. łazienka | 3,89 (5,89) m² |
4. Hol + garderoba | 9,57 (11,49) m² |
5. Sypialnia | 18,33 (24,19) m² |
6. Sypialnia | 17,86 (23,40) m² |
7. łazienka | 7,13 (8,52) m² |
8. Schowek | 1,72 (2,58) m² |
9. Balkon | 2,06 m² |
10. Balkon | 2,06 m² |
Wypełnij formularz i otrzymaj rysunki w pdf z dokładnymi wymiarami budynku i pomieszczeń (długość, szerokość, wysokość) dla projektu E-214
Pow. użytkowa 160.9 m² |
Ilość pokoi 5 |
Powierzchnia zabudowy 160.5 m² |
Kondygnacje parterowy+poddasze |
Garaż 2 stanowiska |
Technologia murowany |
Szerokość działki 20.61 m |
Obiekt dom |
Typ domu jednorodzinny całoroczny |
Powierzchnia dachu 240 m² |
Długość działki 24.01 m |
Wysokość budynku 8.2 m |
Styl budynku nowoczesny |
Kalenica równoległa do drogi |
Liczba łazieniek 3 |
Szerokość budynku 12.61 m |
Kominek kominek w projekcie |
Kąt nachylenia dachu 37 ° |
Długość budynku 15.01 m |
Rodzaj dachu dwuspadowy |
Piwnica bez podpiwniczenia |
Kubatura 581.9 m³ |
Koszty budowy 400-450 tys., tylko z kosztorysem |
Pow. użytkowa 160.9 m² |
Powierzchnia zabudowy 160.5 m² |
Garaż 2 stanowiska |
Szerokość działki 20.61 m |
Typ domu jednorodzinny całoroczny |
Długość działki 24.01 m |
Styl budynku nowoczesny |
Liczba łazieniek 3 |
Kominek kominek w projekcie |
Długość budynku 15.01 m |
Piwnica bez podpiwniczenia |
Koszty budowy 400-450 tys., tylko z kosztorysem |
Ilość pokoi 5 |
Kondygnacje parterowy+poddasze |
Technologia murowany |
Obiekt dom |
Powierzchnia dachu 240 m² |
Wysokość budynku 8.2 m |
Kalenica równoległa do drogi |
Szerokość budynku 12.61 m |
Kąt nachylenia dachu 37 ° |
Rodzaj dachu dwuspadowy |
Kubatura 581.9 m³ |
Kupując projekt w technologii murowanej powinieneś budować dom murowany. Zupełna zmiana technologii na szkieletową wymaga przeprojektowania całego budynku ( zmieniają się obciążenia, fundamenty, konstrukcja dachu). Wydamy zgodę na takie przeprojektowanie jednak wiążę się to z dużymi kosztami. Istnieją firmy wykonawcze, które podejmują się zmiany technologii budowy bezpłatnie przy skorzystaniu z ich usług wykonawczych. Zdarza się, że pracownia architektoniczna przygotowuje warianty konkretnego projektu przewidując także inne technologie. Prosimy o sprawdzenie czy istnieje poszukiwana wersja projektu, w zakładce - warianty projektu.
Zwężenie/poszerzenie budynku* to nic innego jak zmiana w projekcie. Istnieje możliwość wprowadzenia takich zmian, we własnym zakresie (podczas adaptacji). *zwężenie/poszerzenie budynku nie powinno stanowić problemu w przypadku domów o dachu dwuspadowym jeśli wiąże się to z wydłużeniem/skróceniem kalenicy dachu.
Poznaj praktyczne porady ekspertów, które ułatwią Ci każdy etap budowy i od wyboru wymarzonego domu po jego wykończenie. Zyskaj pewność, że podejmujesz najlepsze decyzje dzięki sprawdzonym wskazówkom od specjalistów z planz.pl
Wycena szacunkowa, w kwotach netto, nie zawiera instalacji.
bezpłatnie (0zł)
przelew zwykły / PayNow
przy odbiorze
3-5 dni roboczych
Wybierz wygodny dla Ciebie czas kontaktu z naszym Doradcą Technicznym.