E-210



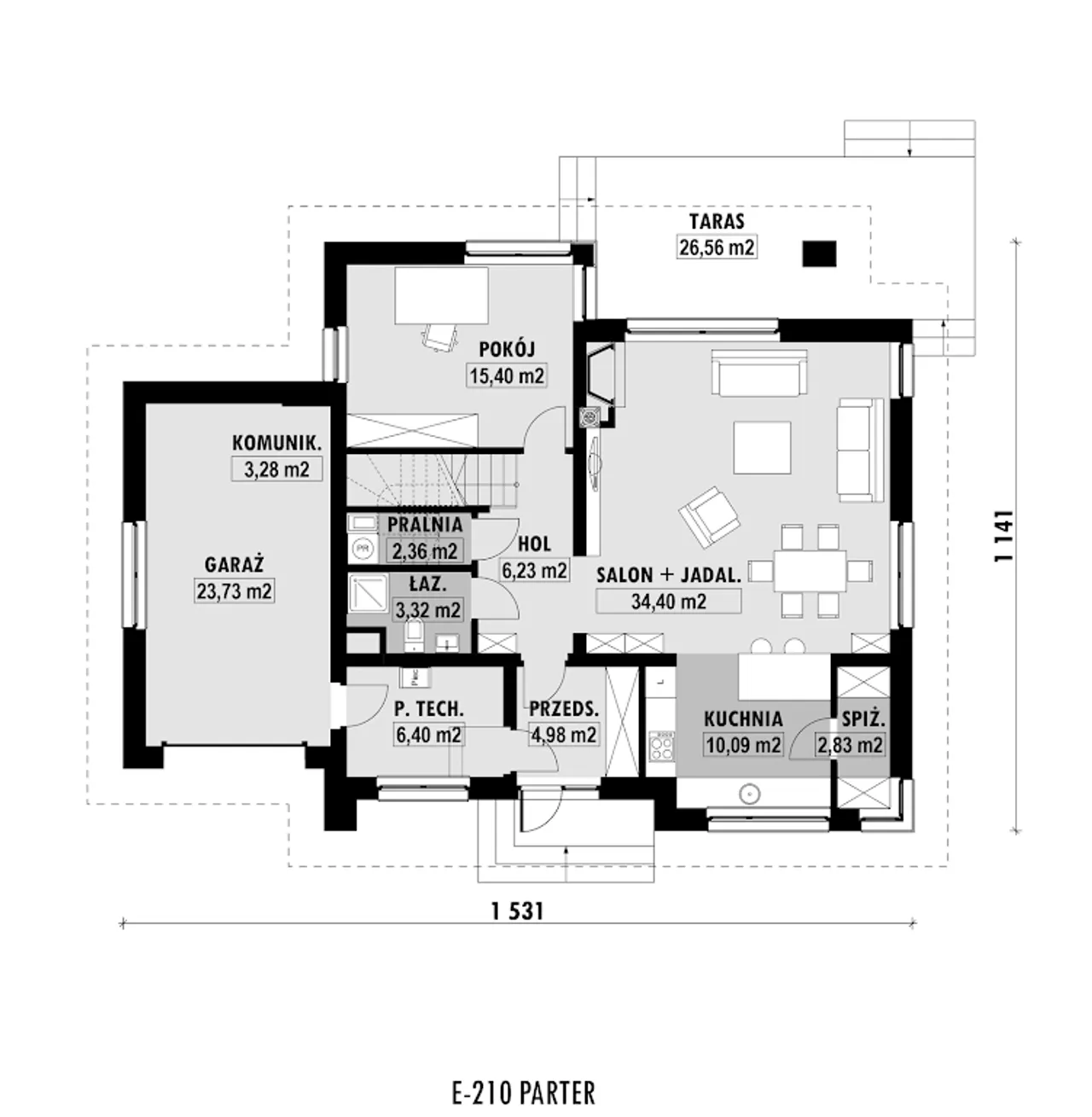
1. Przedsionek | 4,98 m² |
2. Hol | 6,23 m² |
3. Salon + jadalnia | 34,40 m² |
4. Kuchnia | 10,09 m² |
5. Spiżarnia | 2,83 m² |
6. Pokój | 15,40 m² |
7. Komunikacja | 3,28 m² |
8. Pralnia | 2,36 m² |
9. łazienka | 3,32 m² |
10. Pom. techniczne | 6,40 m² |
11. Garaż | 39,64 m² |
12. Taras | 26,56 m² |
1. Hol | 9,55 m² |
2. łazienka | 5,25 (9,39) m² |
3. Schowek | 2,42 (3,91) m² |
4. Sypialnia | 9,33 (17,11) m² |
5. Sypialnia | 12,05 (20,25) m² |
6. Sypialnia | 10,71 (16,38) m² |
7. Strych | 39,76 (39,76) m² |
Wypełnij formularz i otrzymaj rysunki w pdf z dokładnymi wymiarami budynku i pomieszczeń (długość, szerokość, wysokość) dla projektu E-209
Pow. użytkowa 132.2 m² |
Ilość pokoi 5 |
Powierzchnia zabudowy 175.3 m² |
Kondygnacje parterowy+poddasze |
Garaż 2 stanowiska |
Technologia murowany |
Szerokość działki 25.71 m |
Obiekt dom |
Typ domu jednorodzinny całoroczny |
Wysokość budynku 8.2 m |
Styl budynku nowoczesny |
Liczba łazieniek 2 |
Kalenica bez znaczenia |
Szerokość budynku 17.71 m |
Kominek kominek w projekcie |
Kąt nachylenia dachu 37 ° |
Długość budynku 11.41 m |
Piwnica bez podpiwniczenia |
Kubatura 598.9 m³ |
Rodzaj dachu wielospadowy |
Powierzchnia dachu 255 m² |
Długość działki 20.41 m |
Ogrzewanie paliwo stałe, pompa ciepła |
Koszty budowy 450-500 tys., tylko z kosztorysem |
Pow. użytkowa 132.2 m² |
Powierzchnia zabudowy 175.3 m² |
Garaż 2 stanowiska |
Szerokość działki 25.71 m |
Typ domu jednorodzinny całoroczny |
Styl budynku nowoczesny |
Kalenica bez znaczenia |
Kominek kominek w projekcie |
Długość budynku 11.41 m |
Kubatura 598.9 m³ |
Powierzchnia dachu 255 m² |
Ogrzewanie paliwo stałe, pompa ciepła |
Ilość pokoi 5 |
Kondygnacje parterowy+poddasze |
Technologia murowany |
Obiekt dom |
Wysokość budynku 8.2 m |
Liczba łazieniek 2 |
Szerokość budynku 17.71 m |
Kąt nachylenia dachu 37 ° |
Piwnica bez podpiwniczenia |
Rodzaj dachu wielospadowy |
Długość działki 20.41 m |
Koszty budowy 450-500 tys., tylko z kosztorysem |
Kupując projekt w technologii murowanej powinieneś budować dom murowany. Zupełna zmiana technologii na szkieletową wymaga przeprojektowania całego budynku ( zmieniają się obciążenia, fundamenty, konstrukcja dachu). Wydamy zgodę na takie przeprojektowanie jednak wiążę się to z dużymi kosztami. Istnieją firmy wykonawcze, które podejmują się zmiany technologii budowy bezpłatnie przy skorzystaniu z ich usług wykonawczych. Zdarza się, że pracownia architektoniczna przygotowuje warianty konkretnego projektu przewidując także inne technologie. Prosimy o sprawdzenie czy istnieje poszukiwana wersja projektu, w zakładce - warianty projektu.
Zwężenie/poszerzenie budynku* to nic innego jak zmiana w projekcie. Istnieje możliwość wprowadzenia takich zmian, we własnym zakresie (podczas adaptacji). *zwężenie/poszerzenie budynku nie powinno stanowić problemu w przypadku domów o dachu dwuspadowym jeśli wiąże się to z wydłużeniem/skróceniem kalenicy dachu.
Poznaj praktyczne porady ekspertów, które ułatwią Ci każdy etap budowy i od wyboru wymarzonego domu po jego wykończenie. Zyskaj pewność, że podejmujesz najlepsze decyzje dzięki sprawdzonym wskazówkom od specjalistów z planz.pl
Wycena szacunkowa, w kwotach netto, nie zawiera instalacji.
bezpłatnie (0zł)
przelew zwykły / PayNow
przy odbiorze
3-5 dni roboczych
Wybierz wygodny dla Ciebie czas kontaktu z naszym Doradcą Technicznym.