Granada



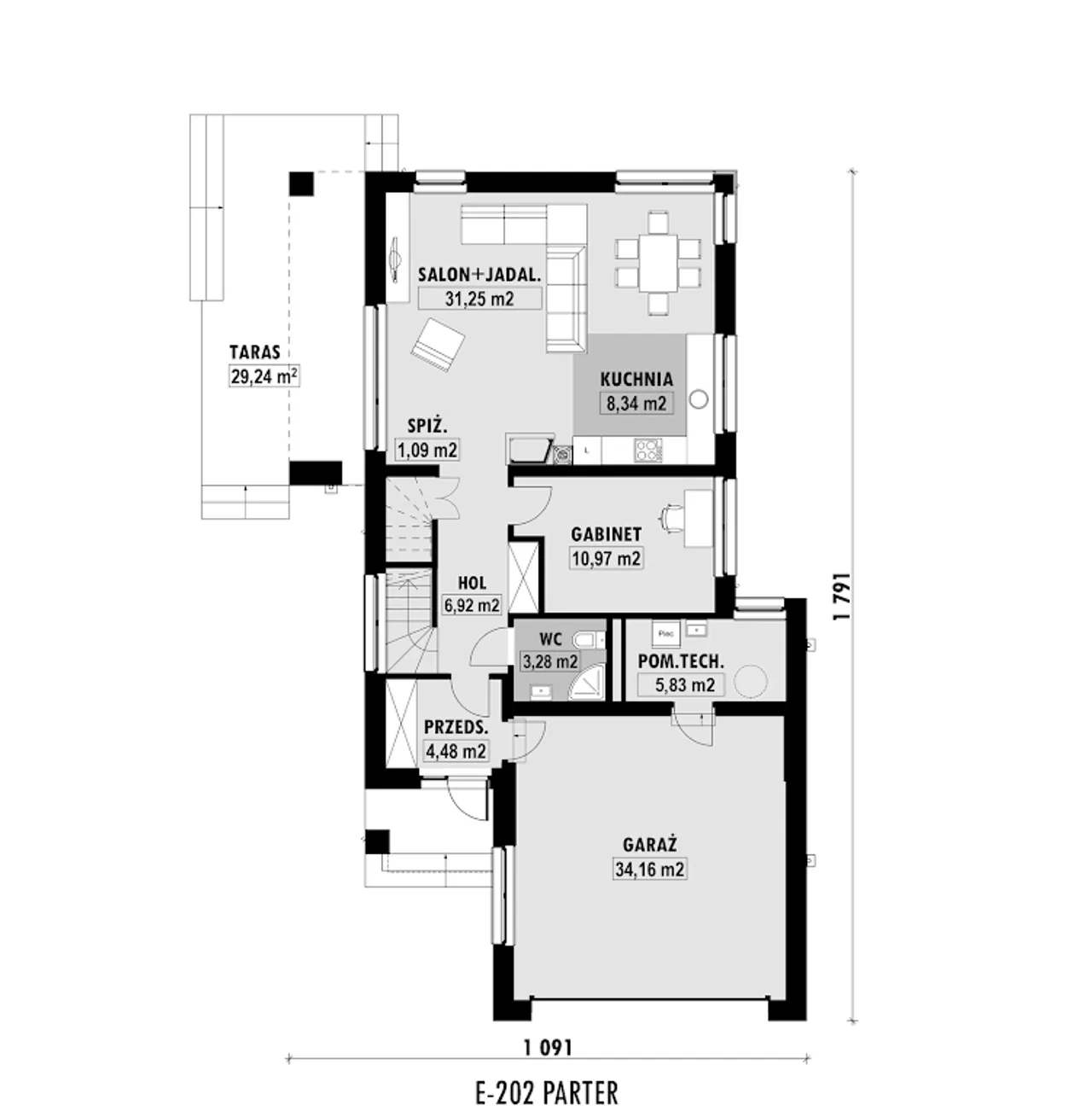
1. Przedsionek | 4,48 m² |
2. Hol | 6,92 m² |
3. Spiżarnia | 1,09 m² |
4. Salon + jadalnia | 31,25 m² |
5. Kuchnia | 8,34 m² |
6. Gabinet | 10,97 m² |
7. Wc | 3,28 m² |
8. Pom. techniczne | 5,83 m² |
9. Garaż | 34,16 m² |
10. Taras | 29,24 m² |
Wypełnij formularz i otrzymaj rysunki w pdf z dokładnymi wymiarami budynku i pomieszczeń (długość, szerokość, wysokość) dla projektu E-202
Pow. użytkowa 158.6 m² |
Ilość pokoi 5 |
Powierzchnia zabudowy 154.4 m² |
Kondygnacje piętrowy |
Garaż 2 stanowiska |
Technologia murowany |
Szerokość działki 17.91 m |
Obiekt dom |
Typ domu jednorodzinny całoroczny |
Wysokość budynku 8.5 m |
Kalenica prostopadła do drogi |
Styl budynku nowoczesny |
Liczba łazieniek 3 |
Szerokość budynku 10.91 m |
Kominek kominek w projekcie |
Kąt nachylenia dachu 22 ° |
Długość budynku 17.91 m |
Rodzaj dachu wielospadowy |
Piwnica bez podpiwniczenia |
Kubatura 539.5 m³ |
Powierzchnia dachu 140 m² |
Długość działki 26.91 m |
Koszty budowy 400-450 tys., tylko z kosztorysem |
Pow. użytkowa 158.6 m² |
Powierzchnia zabudowy 154.4 m² |
Garaż 2 stanowiska |
Szerokość działki 17.91 m |
Typ domu jednorodzinny całoroczny |
Kalenica prostopadła do drogi |
Liczba łazieniek 3 |
Kominek kominek w projekcie |
Długość budynku 17.91 m |
Piwnica bez podpiwniczenia |
Powierzchnia dachu 140 m² |
Koszty budowy 400-450 tys., tylko z kosztorysem |
Ilość pokoi 5 |
Kondygnacje piętrowy |
Technologia murowany |
Obiekt dom |
Wysokość budynku 8.5 m |
Styl budynku nowoczesny |
Szerokość budynku 10.91 m |
Kąt nachylenia dachu 22 ° |
Rodzaj dachu wielospadowy |
Kubatura 539.5 m³ |
Długość działki 26.91 m |
Kupując projekt w technologii murowanej powinieneś budować dom murowany. Zupełna zmiana technologii na szkieletową wymaga przeprojektowania całego budynku ( zmieniają się obciążenia, fundamenty, konstrukcja dachu). Wydamy zgodę na takie przeprojektowanie jednak wiążę się to z dużymi kosztami. Istnieją firmy wykonawcze, które podejmują się zmiany technologii budowy bezpłatnie przy skorzystaniu z ich usług wykonawczych. Zdarza się, że pracownia architektoniczna przygotowuje warianty konkretnego projektu przewidując także inne technologie. Prosimy o sprawdzenie czy istnieje poszukiwana wersja projektu, w zakładce - warianty projektu.
Zwężenie/poszerzenie budynku* to nic innego jak zmiana w projekcie. Istnieje możliwość wprowadzenia takich zmian, we własnym zakresie (podczas adaptacji). *zwężenie/poszerzenie budynku nie powinno stanowić problemu w przypadku domów o dachu dwuspadowym jeśli wiąże się to z wydłużeniem/skróceniem kalenicy dachu.
Poznaj praktyczne porady ekspertów, które ułatwią Ci każdy etap budowy i od wyboru wymarzonego domu po jego wykończenie. Zyskaj pewność, że podejmujesz najlepsze decyzje dzięki sprawdzonym wskazówkom od specjalistów z planz.pl
Wycena szacunkowa, w kwotach netto, nie zawiera instalacji.
bezpłatnie (0zł)
przelew zwykły / PayNow
przy odbiorze
3-5 dni roboczych
Wybierz wygodny dla Ciebie czas kontaktu z naszym Doradcą Technicznym.