TK33



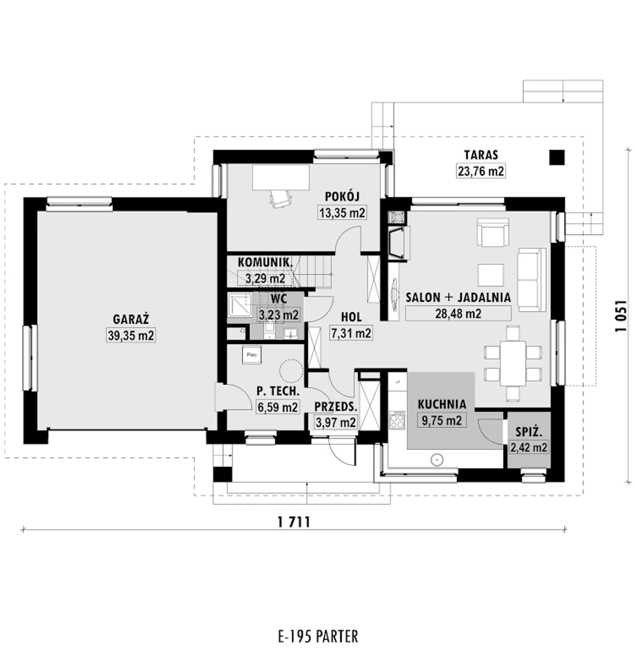
1. Przedsionek | 3,97 m² |
2. Hol | 7,31 m² |
3. Salon + jadalnia | 28,48 m² |
4. Kuchnia | 9,75 m² |
5. Spiżarnia | 2,42 m² |
6. Pokój | 13,35 m² |
7. Komunikacja | 3,29 m² |
8. Wc | 3,23 m² |
9. Pom. techniczne | 6,59 m² |
10. Garaż | 39,35 m² |
11. Taras | 23,76 m² |
1. Hol | 10,91 m² |
2. Garderoba | 4,82 (10,24) m² |
3. Sypialnia | 15,03 (20,53) m² |
4. Sypialnia | 15,14 (20,75) m² |
5. Pralnia | 1,88 (4,14) m² |
6. łazienka | 6,74 (9,67) m² |
7. Korytarz | 2,77 m² |
8. Sypialnia | 11,43 (17,52) m² |
9. Sypialnia | 11,43 (17,52) m² |
Wypełnij formularz i otrzymaj rysunki w pdf z dokładnymi wymiarami budynku i pomieszczeń (długość, szerokość, wysokość) dla projektu E-195
Pow. użytkowa 158.5 m² |
Ilość pokoi 6 |
Powierzchnia zabudowy 163.6 m² |
Kondygnacje parterowy+poddasze |
Garaż 2 stanowiska |
Technologia murowany |
Szerokość działki 25.11 m |
Obiekt dom |
Typ domu jednorodzinny całoroczny |
Kubatura 576 m³ |
Powierzchnia dachu 240 m² |
Długość działki 19.51 m |
Wysokość budynku 8.4 m |
Kalenica równoległa do drogi |
Styl budynku nowoczesny |
Liczba łazieniek 1 |
Szerokość budynku 17.11 m |
Kominek kominek w projekcie |
Kąt nachylenia dachu 38 ° |
Długość budynku 10.51 m |
Rodzaj dachu dwuspadowy |
Piwnica bez podpiwniczenia |
Koszty budowy 400-450 tys., tylko z kosztorysem |
Pow. użytkowa 158.5 m² |
Powierzchnia zabudowy 163.6 m² |
Garaż 2 stanowiska |
Szerokość działki 25.11 m |
Typ domu jednorodzinny całoroczny |
Powierzchnia dachu 240 m² |
Wysokość budynku 8.4 m |
Styl budynku nowoczesny |
Szerokość budynku 17.11 m |
Kąt nachylenia dachu 38 ° |
Rodzaj dachu dwuspadowy |
Koszty budowy 400-450 tys., tylko z kosztorysem |
Ilość pokoi 6 |
Kondygnacje parterowy+poddasze |
Technologia murowany |
Obiekt dom |
Kubatura 576 m³ |
Długość działki 19.51 m |
Kalenica równoległa do drogi |
Liczba łazieniek 1 |
Kominek kominek w projekcie |
Długość budynku 10.51 m |
Piwnica bez podpiwniczenia |
Kupując projekt w technologii murowanej powinieneś budować dom murowany. Zupełna zmiana technologii na szkieletową wymaga przeprojektowania całego budynku ( zmieniają się obciążenia, fundamenty, konstrukcja dachu). Wydamy zgodę na takie przeprojektowanie jednak wiążę się to z dużymi kosztami. Istnieją firmy wykonawcze, które podejmują się zmiany technologii budowy bezpłatnie przy skorzystaniu z ich usług wykonawczych. Zdarza się, że pracownia architektoniczna przygotowuje warianty konkretnego projektu przewidując także inne technologie. Prosimy o sprawdzenie czy istnieje poszukiwana wersja projektu, w zakładce - warianty projektu.
Zwężenie/poszerzenie budynku* to nic innego jak zmiana w projekcie. Istnieje możliwość wprowadzenia takich zmian, we własnym zakresie (podczas adaptacji). *zwężenie/poszerzenie budynku nie powinno stanowić problemu w przypadku domów o dachu dwuspadowym jeśli wiąże się to z wydłużeniem/skróceniem kalenicy dachu.
Poznaj praktyczne porady ekspertów, które ułatwią Ci każdy etap budowy i od wyboru wymarzonego domu po jego wykończenie. Zyskaj pewność, że podejmujesz najlepsze decyzje dzięki sprawdzonym wskazówkom od specjalistów z planz.pl
Wycena szacunkowa, w kwotach netto, nie zawiera instalacji.
bezpłatnie (0zł)
przelew zwykły / PayNow
przy odbiorze
3-5 dni roboczych
Wybierz wygodny dla Ciebie czas kontaktu z naszym Doradcą Technicznym.