Jadeit



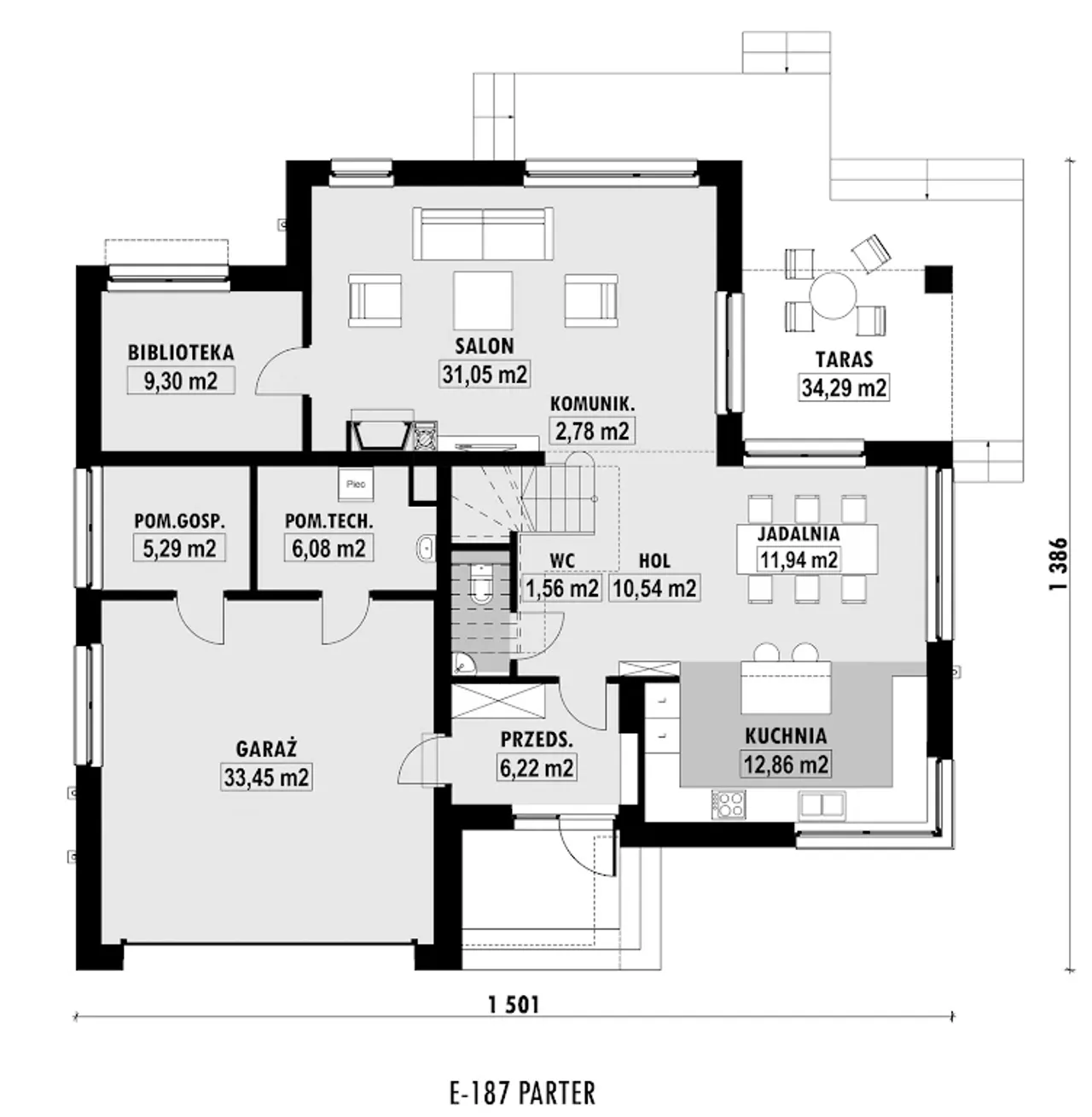
1. Przedsionek | 6,22 m² |
2. Hol | 10,54 m² |
3. Kuchnia | 12,86 m² |
4. Jadalnia | 11,94 m² |
5. Komunikacja | 2,78 m² |
6. Salon | 31,05 m² |
7. Biblioteka | 9,30 m² |
8. Wc | 1,56 m² |
9. Pom. gospodarcze | 5,29 m² |
10. Pom. techniczne | 6,08 m² |
11. Garaż | 33,45 m² |
12. Taras | 34,29 m² |
1. Przedpokój | 14,72 m² |
2. Sypialnia | 18,00 m² |
3. łazienka | 3,72 m² |
4. łazienka | 4,71 m² |
5. Sypialnia | 15,17 m² |
6. Sypialnia | 14,71 m² |
7. Taras | 9,79 m² |
8. Balkon | 9,16 m² |
9. Taras | 15,35 m² |
Wypełnij formularz i otrzymaj rysunki w pdf z dokładnymi wymiarami budynku i pomieszczeń (długość, szerokość, wysokość) dla projektu E-187
Ilość pokoi 5 |
Pow. użytkowa 157.3 m² |
Powierzchnia zabudowy 183.1 m² |
Kondygnacje piętrowy |
Garaż 2 stanowiska |
Technologia murowany |
Szerokość działki 23.01 m |
Obiekt dom |
Typ domu jednorodzinny całoroczny |
Liczba łazieniek 2 |
Szerokość budynku 15.01 m |
Kominek kominek w projekcie |
Kąt nachylenia dachu 1 ° |
Długość budynku 13.86 m |
Rodzaj dachu płaski |
Piwnica bez podpiwniczenia |
Kubatura 590.1 m³ |
Powierzchnia dachu 113.1 m² |
Długość działki 22.86 m |
Wysokość budynku 7.6 m |
Kalenica bez znaczenia |
Styl budynku nowoczesny |
Koszty budowy 400-450 tys., tylko z kosztorysem |
Ilość pokoi 5 |
Powierzchnia zabudowy 183.1 m² |
Garaż 2 stanowiska |
Szerokość działki 23.01 m |
Typ domu jednorodzinny całoroczny |
Szerokość budynku 15.01 m |
Kąt nachylenia dachu 1 ° |
Rodzaj dachu płaski |
Kubatura 590.1 m³ |
Długość działki 22.86 m |
Kalenica bez znaczenia |
Koszty budowy 400-450 tys., tylko z kosztorysem |
Pow. użytkowa 157.3 m² |
Kondygnacje piętrowy |
Technologia murowany |
Obiekt dom |
Liczba łazieniek 2 |
Kominek kominek w projekcie |
Długość budynku 13.86 m |
Piwnica bez podpiwniczenia |
Powierzchnia dachu 113.1 m² |
Wysokość budynku 7.6 m |
Styl budynku nowoczesny |
Kupując projekt w technologii murowanej powinieneś budować dom murowany. Zupełna zmiana technologii na szkieletową wymaga przeprojektowania całego budynku ( zmieniają się obciążenia, fundamenty, konstrukcja dachu). Wydamy zgodę na takie przeprojektowanie jednak wiążę się to z dużymi kosztami. Istnieją firmy wykonawcze, które podejmują się zmiany technologii budowy bezpłatnie przy skorzystaniu z ich usług wykonawczych. Zdarza się, że pracownia architektoniczna przygotowuje warianty konkretnego projektu przewidując także inne technologie. Prosimy o sprawdzenie czy istnieje poszukiwana wersja projektu, w zakładce - warianty projektu.
Zwężenie/poszerzenie budynku* to nic innego jak zmiana w projekcie. Istnieje możliwość wprowadzenia takich zmian, we własnym zakresie (podczas adaptacji). *zwężenie/poszerzenie budynku nie powinno stanowić problemu w przypadku domów o dachu dwuspadowym jeśli wiąże się to z wydłużeniem/skróceniem kalenicy dachu.
Poznaj praktyczne porady ekspertów, które ułatwią Ci każdy etap budowy i od wyboru wymarzonego domu po jego wykończenie. Zyskaj pewność, że podejmujesz najlepsze decyzje dzięki sprawdzonym wskazówkom od specjalistów z planz.pl
Wycena szacunkowa, w kwotach netto, nie zawiera instalacji.
bezpłatnie (0zł)
przelew zwykły / PayNow
przy odbiorze
3-5 dni roboczych
Projekt ten sprawia wrażenie przestronnego, a nowoczesna architektura doda piękna każdej działce. Uwagę zwraca przede wszystkim połączenie strefy dziennej i kuchni, która stanie się sercem domu. Optymalne rozplanowanie pokoi sprawia, że będzie to doskonałe miejsce zarówno dla rodziny, jak i do przyjmowania gości.
Wybierz wygodny dla Ciebie czas kontaktu z naszym Doradcą Technicznym.