Szeherezada



1. Przedsionek | 6,12 m² |
2. Hol | 6,92 m² |
3. Pokój | 13,17 m² |
4. Kuchnia | 10,19 m² |
5. Wc | 2,27 m² |
6. Komunikacja | 3,28 m² |
7. Salon + jadalnia | 38,88 m² |
8. Pom. techniczne | 5,30 m² |
9. Garaż | 21,56 m² |
10. Taras | 32,54 m² |
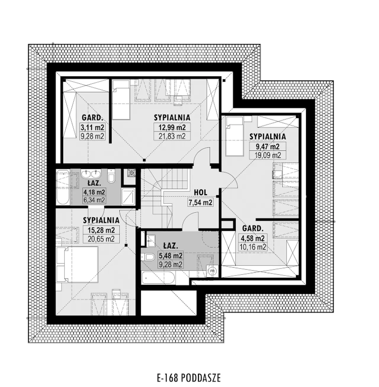
1. Hol | 7,54 m² |
2. Sypialnia | 12,99 (21,83) m² |
3. Gardeoba | 3,11 (9,28) m² |
4. Sypialnia | 9,47 (19,09) m² |
5. Garderoba | 4,58 (10,16) m² |
6. łazienka | 5,48 (9,28) m² |
7. Sypialnia | 15,28 (20,65) m² |
8. łazienka | 4,18 (6,34) m² |
Wypełnij formularz i otrzymaj rysunki w pdf z dokładnymi wymiarami budynku i pomieszczeń (długość, szerokość, wysokość) dla projektu E-168
Pow. użytkowa 143.5 m² |
Ilość pokoi 5 |
Powierzchnia zabudowy 156 m² |
Kondygnacje parterowy+poddasze |
Garaż 1 stanowisko |
Technologia murowany |
Szerokość działki 21.21 m |
Obiekt dom |
Typ domu jednorodzinny całoroczny |
Wysokość budynku 8 m |
Kalenica równoległa do drogi |
Styl budynku nowoczesny |
Liczba łazieniek 2 |
Szerokość budynku 13.21 m |
Kominek kominek w projekcie |
Kąt nachylenia dachu 35 ° |
Długość budynku 12.91 m |
Rodzaj dachu wielospadowy |
Piwnica bez podpiwniczenia |
Kubatura 520.7 m³ |
Powierzchnia dachu 240 m² |
Długość działki 21.91 m |
Koszty budowy 350-400 tys., tylko z kosztorysem |
Pow. użytkowa 143.5 m² |
Powierzchnia zabudowy 156 m² |
Garaż 1 stanowisko |
Szerokość działki 21.21 m |
Typ domu jednorodzinny całoroczny |
Kalenica równoległa do drogi |
Liczba łazieniek 2 |
Kominek kominek w projekcie |
Długość budynku 12.91 m |
Piwnica bez podpiwniczenia |
Powierzchnia dachu 240 m² |
Koszty budowy 350-400 tys., tylko z kosztorysem |
Ilość pokoi 5 |
Kondygnacje parterowy+poddasze |
Technologia murowany |
Obiekt dom |
Wysokość budynku 8 m |
Styl budynku nowoczesny |
Szerokość budynku 13.21 m |
Kąt nachylenia dachu 35 ° |
Rodzaj dachu wielospadowy |
Kubatura 520.7 m³ |
Długość działki 21.91 m |
Kupując projekt w technologii murowanej powinieneś budować dom murowany. Zupełna zmiana technologii na szkieletową wymaga przeprojektowania całego budynku ( zmieniają się obciążenia, fundamenty, konstrukcja dachu). Wydamy zgodę na takie przeprojektowanie jednak wiążę się to z dużymi kosztami. Istnieją firmy wykonawcze, które podejmują się zmiany technologii budowy bezpłatnie przy skorzystaniu z ich usług wykonawczych. Zdarza się, że pracownia architektoniczna przygotowuje warianty konkretnego projektu przewidując także inne technologie. Prosimy o sprawdzenie czy istnieje poszukiwana wersja projektu, w zakładce - warianty projektu.
Zwężenie/poszerzenie budynku* to nic innego jak zmiana w projekcie. Istnieje możliwość wprowadzenia takich zmian, we własnym zakresie (podczas adaptacji). *zwężenie/poszerzenie budynku nie powinno stanowić problemu w przypadku domów o dachu dwuspadowym jeśli wiąże się to z wydłużeniem/skróceniem kalenicy dachu.
Poznaj praktyczne porady ekspertów, które ułatwią Ci każdy etap budowy i od wyboru wymarzonego domu po jego wykończenie. Zyskaj pewność, że podejmujesz najlepsze decyzje dzięki sprawdzonym wskazówkom od specjalistów z planz.pl
Wycena szacunkowa, w kwotach netto, nie zawiera instalacji.
bezpłatnie (0zł)
przelew zwykły / PayNow
przy odbiorze
3-5 dni roboczych
Wybierz wygodny dla Ciebie czas kontaktu z naszym Doradcą Technicznym.