TK31



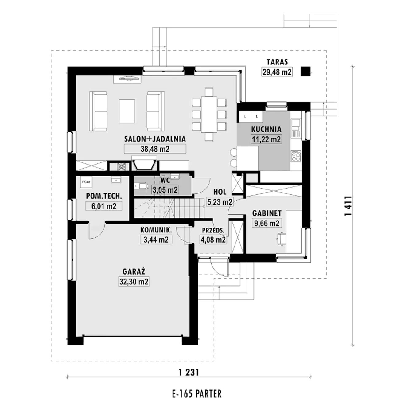
1. Przedsionek | 4,08 m² |
2. Hol | 5,23 m² |
3. Gabinet | 9,66 m² |
4. Kuchnia | 11,22 m² |
5. Salon + jadalnia | 38,48 m² |
6. Wc | 3,05 m² |
7. Pom. techniczne | 6,01 m² |
8. Komunikacja | 3,44 m² |
9. Garaż | 32,30 m² |
10. Taras | 29,48 m² |
1. Hol | 4,13 m² |
2. Sypialnia | 10,87 (17,85) m² |
3. Sypialnia | 10,52 (17,66) m² |
4. łazienka | 5,79 (8,22) m² |
5. Sypialnia | 18,14 (32,72) m² |
6. łazienka | 3,57 (4,96) m² |
Wypełnij formularz i otrzymaj rysunki w pdf z dokładnymi wymiarami budynku i pomieszczeń (długość, szerokość, wysokość) dla projektu E-165
Pow. użytkowa 134.2 m² |
Ilość pokoi 5 |
Powierzchnia zabudowy 149.8 m² |
Kondygnacje parterowy+poddasze |
Garaż 2 stanowiska |
Technologia murowany |
Szerokość działki 20.31 m |
Obiekt dom |
Typ domu jednorodzinny całoroczny |
Powierzchnia dachu 215 m² |
Długość działki 23.11 m |
Wysokość budynku 7.9 m |
Kalenica równoległa do drogi |
Styl budynku tradycyjny |
Liczba łazieniek 2 |
Szerokość budynku 12.31 m |
Kominek kominek w projekcie |
Kąt nachylenia dachu 35 ° |
Długość budynku 14.11 m |
Rodzaj dachu wielospadowy |
Piwnica bez podpiwniczenia |
Kubatura 810 m³ |
Koszty budowy 350-400 tys., tylko z kosztorysem |
Pow. użytkowa 134.2 m² |
Powierzchnia zabudowy 149.8 m² |
Garaż 2 stanowiska |
Szerokość działki 20.31 m |
Typ domu jednorodzinny całoroczny |
Długość działki 23.11 m |
Kalenica równoległa do drogi |
Liczba łazieniek 2 |
Kominek kominek w projekcie |
Długość budynku 14.11 m |
Piwnica bez podpiwniczenia |
Koszty budowy 350-400 tys., tylko z kosztorysem |
Ilość pokoi 5 |
Kondygnacje parterowy+poddasze |
Technologia murowany |
Obiekt dom |
Powierzchnia dachu 215 m² |
Wysokość budynku 7.9 m |
Styl budynku tradycyjny |
Szerokość budynku 12.31 m |
Kąt nachylenia dachu 35 ° |
Rodzaj dachu wielospadowy |
Kubatura 810 m³ |
Kupując projekt w technologii murowanej powinieneś budować dom murowany. Zupełna zmiana technologii na szkieletową wymaga przeprojektowania całego budynku ( zmieniają się obciążenia, fundamenty, konstrukcja dachu). Wydamy zgodę na takie przeprojektowanie jednak wiążę się to z dużymi kosztami. Istnieją firmy wykonawcze, które podejmują się zmiany technologii budowy bezpłatnie przy skorzystaniu z ich usług wykonawczych. Zdarza się, że pracownia architektoniczna przygotowuje warianty konkretnego projektu przewidując także inne technologie. Prosimy o sprawdzenie czy istnieje poszukiwana wersja projektu, w zakładce - warianty projektu.
Zwężenie/poszerzenie budynku* to nic innego jak zmiana w projekcie. Istnieje możliwość wprowadzenia takich zmian, we własnym zakresie (podczas adaptacji). *zwężenie/poszerzenie budynku nie powinno stanowić problemu w przypadku domów o dachu dwuspadowym jeśli wiąże się to z wydłużeniem/skróceniem kalenicy dachu.
Poznaj praktyczne porady ekspertów, które ułatwią Ci każdy etap budowy i od wyboru wymarzonego domu po jego wykończenie. Zyskaj pewność, że podejmujesz najlepsze decyzje dzięki sprawdzonym wskazówkom od specjalistów z planz.pl
Wycena szacunkowa, w kwotach netto, nie zawiera instalacji.
bezpłatnie (0zł)
przelew zwykły / PayNow
przy odbiorze
3-5 dni roboczych
Wybierz wygodny dla Ciebie czas kontaktu z naszym Doradcą Technicznym.