Dom przy Sielskiej



Wypełnij formularz i otrzymaj rysunki w pdf z dokładnymi wymiarami budynku i pomieszczeń (długość, szerokość, wysokość) dla projektu E-141
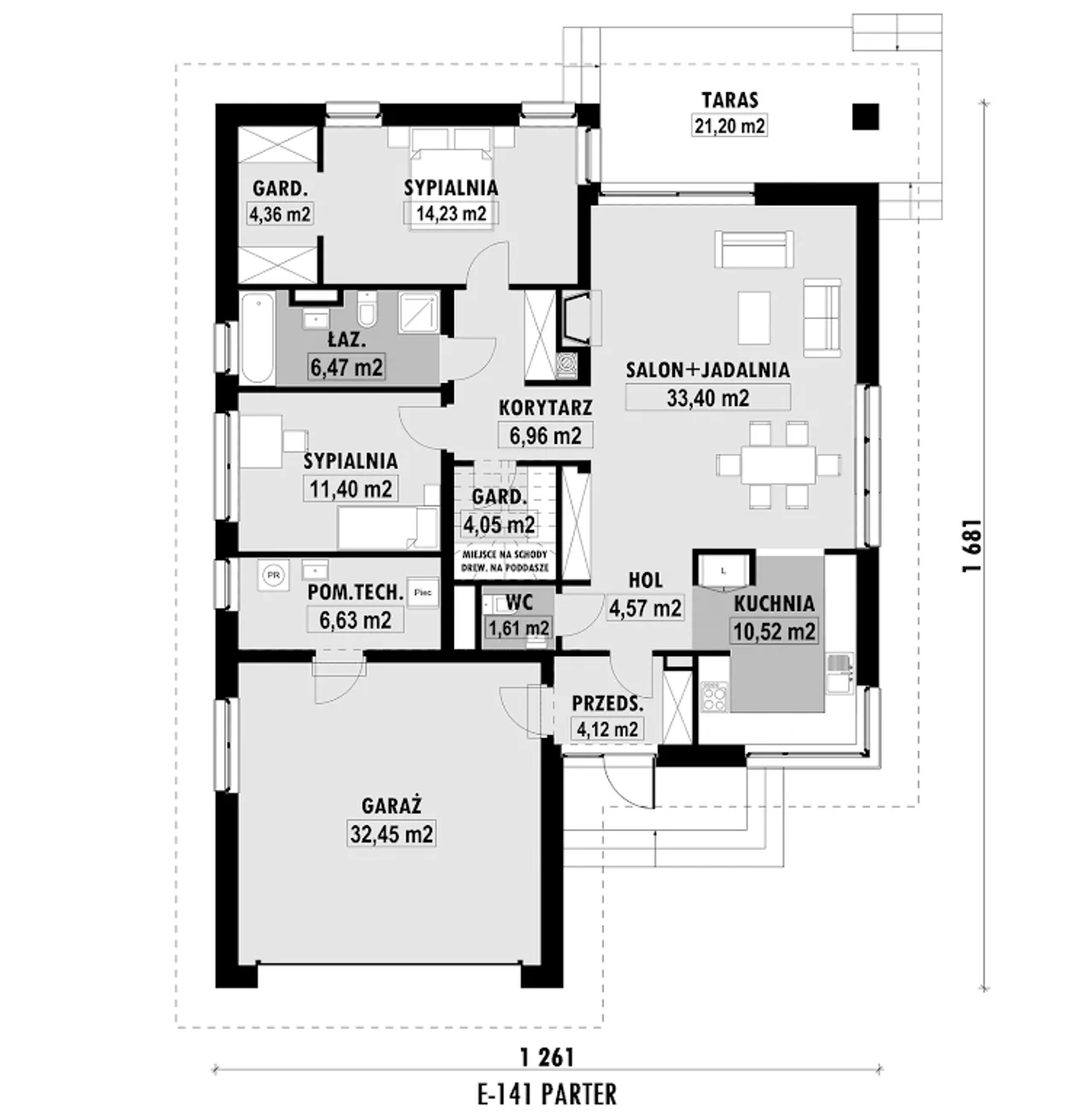
Pow. użytkowa 108.3 m² |
Ilość pokoi 3 |
Powierzchnia zabudowy 186.8 m² |
Kondygnacje parterowy |
Garaż 2 stanowiska |
Technologia murowany |
Szerokość działki 20.61 m |
Obiekt dom |
Typ domu jednorodzinny całoroczny |
Powierzchnia dachu 255 m² |
Długość działki 25.81 m |
Wysokość budynku 7.8 m |
Kalenica bez znaczenia |
Styl budynku tradycyjny |
Liczba łazieniek 1 |
Szerokość budynku 12.61 m |
Kominek kominek w projekcie |
Kąt nachylenia dachu 30 ° |
Długość budynku 16.81 m |
Rodzaj dachu wielospadowy |
Piwnica bez podpiwniczenia |
Kubatura 423.6 m³ |
Koszty budowy 300-350 tys., tylko z kosztorysem |
Pow. użytkowa 108.3 m² |
Powierzchnia zabudowy 186.8 m² |
Garaż 2 stanowiska |
Szerokość działki 20.61 m |
Typ domu jednorodzinny całoroczny |
Długość działki 25.81 m |
Kalenica bez znaczenia |
Liczba łazieniek 1 |
Kominek kominek w projekcie |
Długość budynku 16.81 m |
Piwnica bez podpiwniczenia |
Koszty budowy 300-350 tys., tylko z kosztorysem |
Ilość pokoi 3 |
Kondygnacje parterowy |
Technologia murowany |
Obiekt dom |
Powierzchnia dachu 255 m² |
Wysokość budynku 7.8 m |
Styl budynku tradycyjny |
Szerokość budynku 12.61 m |
Kąt nachylenia dachu 30 ° |
Rodzaj dachu wielospadowy |
Kubatura 423.6 m³ |
Kupując projekt w technologii murowanej powinieneś budować dom murowany. Zupełna zmiana technologii na szkieletową wymaga przeprojektowania całego budynku ( zmieniają się obciążenia, fundamenty, konstrukcja dachu). Wydamy zgodę na takie przeprojektowanie jednak wiążę się to z dużymi kosztami. Istnieją firmy wykonawcze, które podejmują się zmiany technologii budowy bezpłatnie przy skorzystaniu z ich usług wykonawczych. Zdarza się, że pracownia architektoniczna przygotowuje warianty konkretnego projektu przewidując także inne technologie. Prosimy o sprawdzenie czy istnieje poszukiwana wersja projektu, w zakładce - warianty projektu.
Zwężenie/poszerzenie budynku* to nic innego jak zmiana w projekcie. Istnieje możliwość wprowadzenia takich zmian, we własnym zakresie (podczas adaptacji). *zwężenie/poszerzenie budynku nie powinno stanowić problemu w przypadku domów o dachu dwuspadowym jeśli wiąże się to z wydłużeniem/skróceniem kalenicy dachu.
Poznaj praktyczne porady ekspertów, które ułatwią Ci każdy etap budowy i od wyboru wymarzonego domu po jego wykończenie. Zyskaj pewność, że podejmujesz najlepsze decyzje dzięki sprawdzonym wskazówkom od specjalistów z planz.pl
Wycena szacunkowa, w kwotach netto, nie zawiera instalacji.
bezpłatnie (0zł)
przelew zwykły / PayNow
przy odbiorze
3-5 dni roboczych
Projekt domu E-141 to naprawdę interesujące połączenie nowoczesności i funkcjonalności. Wygląda na bardzo przemyślane rozwiązanie dla rodziny szukającej swojego wymarzonego miejsca do życia. Na pewno przemyślę ten projekt w moim procesie poszukiwania.
Wybierz wygodny dla Ciebie czas kontaktu z naszym Doradcą Technicznym.