Koralgol 2G



1. Przedsionek | 4,63 m² |
2. Hol | 13,41 m² |
3. Spiżarnia | 2,66 m² |
4. Kuchnia | 16,17 m² |
5. Salon + jadalnia | 31,66 m² |
6. Komunikacja | 3,60 m² |
7. Wc | 2,83 m² |
8. łazienka | 6,86 m² |
9. Sypialnia | 12,66 m² |
10. Sypialnia | 12,43 m² |
11. Sypialnia | 13,42 m² |
12. Pom. techniczne | 5,30 m² |
13. Garaż | 41,56 m² |
14. Taras | 48,31 m² |
Wypełnij formularz i otrzymaj rysunki w pdf z dokładnymi wymiarami budynku i pomieszczeń (długość, szerokość, wysokość) dla projektu E-136
Pow. użytkowa 132.4 m² |
Ilość pokoi 4 |
Powierzchnia zabudowy 227.2 m² |
Kondygnacje parterowy |
Garaż 2 stanowiska |
Technologia murowany |
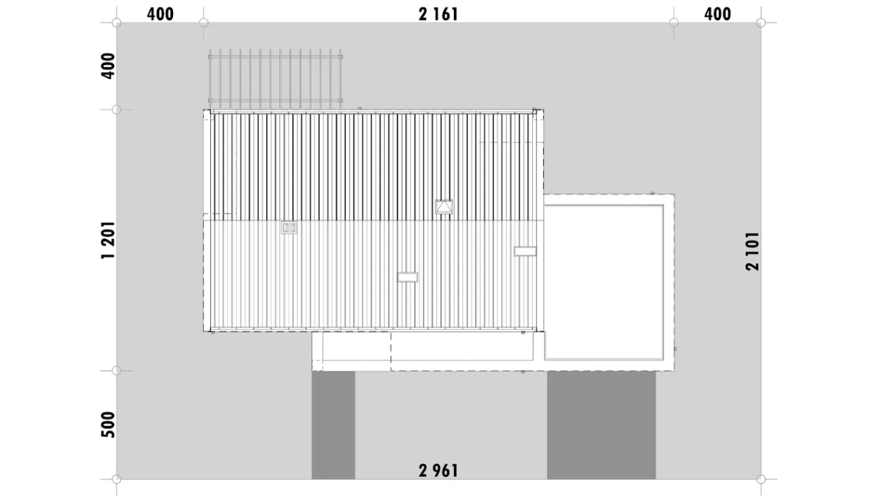
Szerokość działki 29.61 m |
Obiekt dom |
Typ domu jednorodzinny całoroczny |
Długość budynku 12.01 m |
Rodzaj dachu dwuspadowy |
Piwnica bez podpiwniczenia |
Kubatura 990 m³ |
Powierzchnia dachu 195 m² |
Długość działki 21.01 m |
Wysokość budynku 8.8 m |
Kalenica równoległa do drogi |
Styl budynku nowoczesny |
Liczba łazieniek 2 |
Szerokość budynku 21.61 m |
Kominek kominek w projekcie |
Kąt nachylenia dachu 40 ° |
Koszty budowy 400-450 tys., tylko z kosztorysem |
Pow. użytkowa 132.4 m² |
Powierzchnia zabudowy 227.2 m² |
Garaż 2 stanowiska |
Szerokość działki 29.61 m |
Typ domu jednorodzinny całoroczny |
Rodzaj dachu dwuspadowy |
Kubatura 990 m³ |
Długość działki 21.01 m |
Kalenica równoległa do drogi |
Liczba łazieniek 2 |
Kominek kominek w projekcie |
Koszty budowy 400-450 tys., tylko z kosztorysem |
Ilość pokoi 4 |
Kondygnacje parterowy |
Technologia murowany |
Obiekt dom |
Długość budynku 12.01 m |
Piwnica bez podpiwniczenia |
Powierzchnia dachu 195 m² |
Wysokość budynku 8.8 m |
Styl budynku nowoczesny |
Szerokość budynku 21.61 m |
Kąt nachylenia dachu 40 ° |
Kupując projekt w technologii murowanej powinieneś budować dom murowany. Zupełna zmiana technologii na szkieletową wymaga przeprojektowania całego budynku ( zmieniają się obciążenia, fundamenty, konstrukcja dachu). Wydamy zgodę na takie przeprojektowanie jednak wiążę się to z dużymi kosztami. Istnieją firmy wykonawcze, które podejmują się zmiany technologii budowy bezpłatnie przy skorzystaniu z ich usług wykonawczych. Zdarza się, że pracownia architektoniczna przygotowuje warianty konkretnego projektu przewidując także inne technologie. Prosimy o sprawdzenie czy istnieje poszukiwana wersja projektu, w zakładce - warianty projektu.
Zwężenie/poszerzenie budynku* to nic innego jak zmiana w projekcie. Istnieje możliwość wprowadzenia takich zmian, we własnym zakresie (podczas adaptacji). *zwężenie/poszerzenie budynku nie powinno stanowić problemu w przypadku domów o dachu dwuspadowym jeśli wiąże się to z wydłużeniem/skróceniem kalenicy dachu.
Poznaj praktyczne porady ekspertów, które ułatwią Ci każdy etap budowy i od wyboru wymarzonego domu po jego wykończenie. Zyskaj pewność, że podejmujesz najlepsze decyzje dzięki sprawdzonym wskazówkom od specjalistów z planz.pl
Wycena szacunkowa, w kwotach netto, nie zawiera instalacji.
bezpłatnie (0zł)
przelew zwykły / PayNow
przy odbiorze
3-5 dni roboczych
Wybierz wygodny dla Ciebie czas kontaktu z naszym Doradcą Technicznym.