TK31



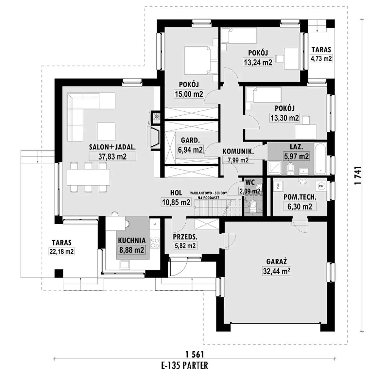
1. Przedsionek | 5,82 m² |
2. Hol | 10,85 m² |
3. Salon + jadalnia | 37,83 m² |
4. Kuchnia | 8,88 m² |
5. Wc | 2,09 m² |
6. Komunikacja | 7,99 m² |
7. łazienka | 5,97 m² |
8. Garderoba | 6,94 m² |
9. Pokój | 15,00 m² |
10. Pokój | 13,24 m² |
11. Pokój | 13,30 m² |
12. Pom. techniczne | 6,30 m² |
13. Garaż | 32,44 m² |
14. Taras | 22,18 m² |
15. Taras | 4,73 m² |
Wypełnij formularz i otrzymaj rysunki w pdf z dokładnymi wymiarami budynku i pomieszczeń (długość, szerokość, wysokość) dla projektu E-135
Pow. użytkowa 134.2 m² |
Ilość pokoi 4 |
Powierzchnia zabudowy 226 m² |
Kondygnacje parterowy |
Garaż 2 stanowiska |
Technologia murowany |
Szerokość działki 23.61 m |
Obiekt dom |
Typ domu jednorodzinny całoroczny |
Powierzchnia dachu 310 m² |
Długość działki 26.41 m |
Wysokość budynku 7.3 m |
Kalenica równoległa do drogi |
Styl budynku nowoczesny |
Liczba łazieniek 1 |
Szerokość budynku 15.61 m |
Kominek kominek w projekcie |
Kąt nachylenia dachu 30 ° |
Długość budynku 17.41 m |
Rodzaj dachu wielospadowy |
Piwnica bez podpiwniczenia |
Kubatura 840 m³ |
Koszty budowy 400-450 tys., tylko z kosztorysem |
Pow. użytkowa 134.2 m² |
Powierzchnia zabudowy 226 m² |
Garaż 2 stanowiska |
Szerokość działki 23.61 m |
Typ domu jednorodzinny całoroczny |
Długość działki 26.41 m |
Kalenica równoległa do drogi |
Liczba łazieniek 1 |
Kominek kominek w projekcie |
Długość budynku 17.41 m |
Piwnica bez podpiwniczenia |
Koszty budowy 400-450 tys., tylko z kosztorysem |
Ilość pokoi 4 |
Kondygnacje parterowy |
Technologia murowany |
Obiekt dom |
Powierzchnia dachu 310 m² |
Wysokość budynku 7.3 m |
Styl budynku nowoczesny |
Szerokość budynku 15.61 m |
Kąt nachylenia dachu 30 ° |
Rodzaj dachu wielospadowy |
Kubatura 840 m³ |
Kupując projekt w technologii murowanej powinieneś budować dom murowany. Zupełna zmiana technologii na szkieletową wymaga przeprojektowania całego budynku ( zmieniają się obciążenia, fundamenty, konstrukcja dachu). Wydamy zgodę na takie przeprojektowanie jednak wiążę się to z dużymi kosztami. Istnieją firmy wykonawcze, które podejmują się zmiany technologii budowy bezpłatnie przy skorzystaniu z ich usług wykonawczych. Zdarza się, że pracownia architektoniczna przygotowuje warianty konkretnego projektu przewidując także inne technologie. Prosimy o sprawdzenie czy istnieje poszukiwana wersja projektu, w zakładce - warianty projektu.
Zwężenie/poszerzenie budynku* to nic innego jak zmiana w projekcie. Istnieje możliwość wprowadzenia takich zmian, we własnym zakresie (podczas adaptacji). *zwężenie/poszerzenie budynku nie powinno stanowić problemu w przypadku domów o dachu dwuspadowym jeśli wiąże się to z wydłużeniem/skróceniem kalenicy dachu.
Poznaj praktyczne porady ekspertów, które ułatwią Ci każdy etap budowy i od wyboru wymarzonego domu po jego wykończenie. Zyskaj pewność, że podejmujesz najlepsze decyzje dzięki sprawdzonym wskazówkom od specjalistów z planz.pl
Wycena szacunkowa, w kwotach netto, nie zawiera instalacji.
bezpłatnie (0zł)
przelew zwykły / PayNow
przy odbiorze
3-5 dni roboczych
Wybierz wygodny dla Ciebie czas kontaktu z naszym Doradcą Technicznym.