TK31



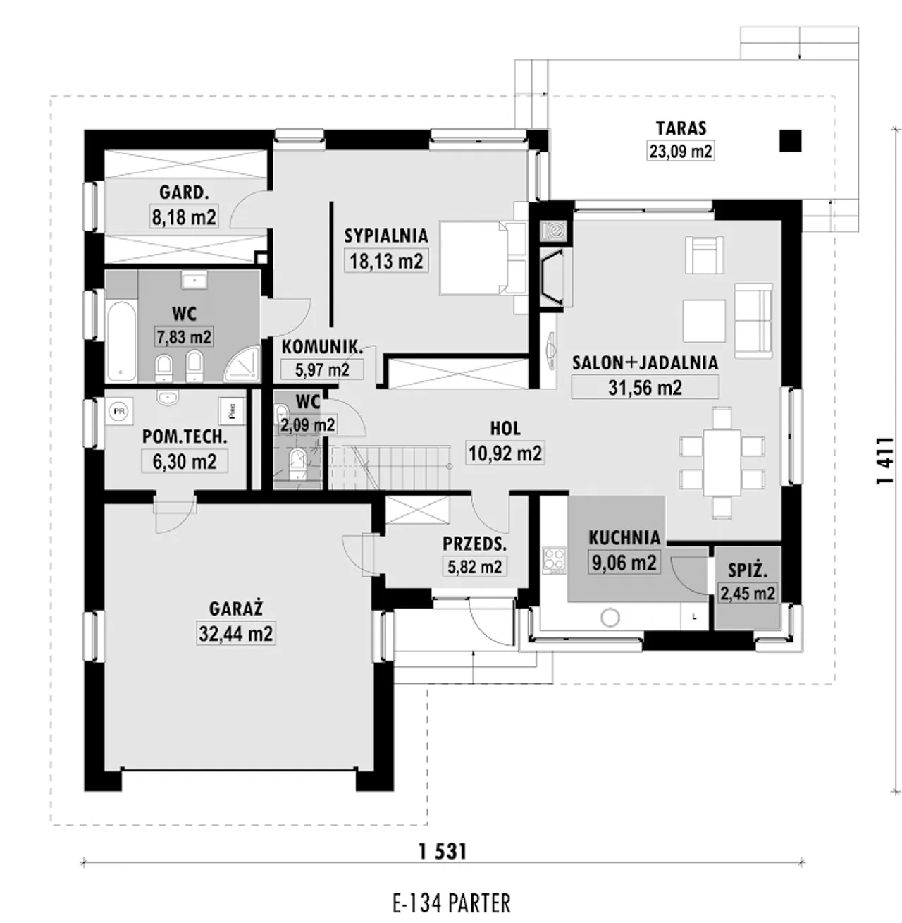
1. Przedsionek | 5,82 m² |
2. Hol | 10,92 m² |
3. Kuchnia | 9,06 m² |
4. Spiżarnia | 2,45 m² |
5. Salon + jadalnia | 31,56 m² |
6. Wc | 2,09 m² |
7. Komunikacja | 5,97 m² |
8. Sypialnia | 18,13 m² |
9. Garderoba | 8,18 m² |
10. łazienka | 7,83 m² |
11. Pom. techniczne | 6,30 m² |
12. Garaż | 32,44 m² |
13. Taras | 23,09 m² |
1. Hol | 6,66 m² |
2. Sypialnia | 9,70 (15,82) m² |
3. Sypialnia | 9,70 (15,82) m² |
4. łazienka | 2,74 (5,68) m² |
5. Schowek | 0,98 (3,93) m² |
Wypełnij formularz i otrzymaj rysunki w pdf z dokładnymi wymiarami budynku i pomieszczeń (długość, szerokość, wysokość) dla projektu E-134
Pow. użytkowa 138.2 m² |
Ilość pokoi 4 |
Powierzchnia zabudowy 189.9 m² |
Kondygnacje parterowy+poddasze |
Garaż 2 stanowiska |
Technologia murowany |
Szerokość działki 23.31 m |
Obiekt dom |
Typ domu jednorodzinny całoroczny |
Szerokość budynku 15.31 m |
Kominek kominek w projekcie |
Kąt nachylenia dachu 37 ° |
Długość budynku 14.11 m |
Rodzaj dachu wielospadowy |
Piwnica bez podpiwniczenia |
Kubatura 830 m³ |
Powierzchnia dachu 265 m² |
Długość działki 23.11 m |
Wysokość budynku 8.3 m |
Kalenica równoległa do drogi |
Styl budynku nowoczesny |
Liczba łazieniek 2 |
Koszty budowy 350-400 tys., tylko z kosztorysem |
Pow. użytkowa 138.2 m² |
Powierzchnia zabudowy 189.9 m² |
Garaż 2 stanowiska |
Szerokość działki 23.31 m |
Typ domu jednorodzinny całoroczny |
Kominek kominek w projekcie |
Długość budynku 14.11 m |
Piwnica bez podpiwniczenia |
Powierzchnia dachu 265 m² |
Wysokość budynku 8.3 m |
Styl budynku nowoczesny |
Koszty budowy 350-400 tys., tylko z kosztorysem |
Ilość pokoi 4 |
Kondygnacje parterowy+poddasze |
Technologia murowany |
Obiekt dom |
Szerokość budynku 15.31 m |
Kąt nachylenia dachu 37 ° |
Rodzaj dachu wielospadowy |
Kubatura 830 m³ |
Długość działki 23.11 m |
Kalenica równoległa do drogi |
Liczba łazieniek 2 |
Kupując projekt w technologii murowanej powinieneś budować dom murowany. Zupełna zmiana technologii na szkieletową wymaga przeprojektowania całego budynku ( zmieniają się obciążenia, fundamenty, konstrukcja dachu). Wydamy zgodę na takie przeprojektowanie jednak wiążę się to z dużymi kosztami. Istnieją firmy wykonawcze, które podejmują się zmiany technologii budowy bezpłatnie przy skorzystaniu z ich usług wykonawczych. Zdarza się, że pracownia architektoniczna przygotowuje warianty konkretnego projektu przewidując także inne technologie. Prosimy o sprawdzenie czy istnieje poszukiwana wersja projektu, w zakładce - warianty projektu.
Zwężenie/poszerzenie budynku* to nic innego jak zmiana w projekcie. Istnieje możliwość wprowadzenia takich zmian, we własnym zakresie (podczas adaptacji). *zwężenie/poszerzenie budynku nie powinno stanowić problemu w przypadku domów o dachu dwuspadowym jeśli wiąże się to z wydłużeniem/skróceniem kalenicy dachu.
Poznaj praktyczne porady ekspertów, które ułatwią Ci każdy etap budowy i od wyboru wymarzonego domu po jego wykończenie. Zyskaj pewność, że podejmujesz najlepsze decyzje dzięki sprawdzonym wskazówkom od specjalistów z planz.pl
Wycena szacunkowa, w kwotach netto, nie zawiera instalacji.
bezpłatnie (0zł)
przelew zwykły / PayNow
przy odbiorze
3-5 dni roboczych
Wybierz wygodny dla Ciebie czas kontaktu z naszym Doradcą Technicznym.