Granada



1. Przedsionek | 4,92 m² |
2. Hol | 5,87 m² |
3. Kuchnia | 9,20 m² |
4. Jadalnia | 8,86 m² |
5. Salon | 28,70 m² |
6. Komunikacja | 3,16 m² |
7. Wc | 2,27 m² |
8. Pom. techniczne | 6,30 m² |
9. Garaż | 34,55 m² |
10. Taras | 21,70 m² |
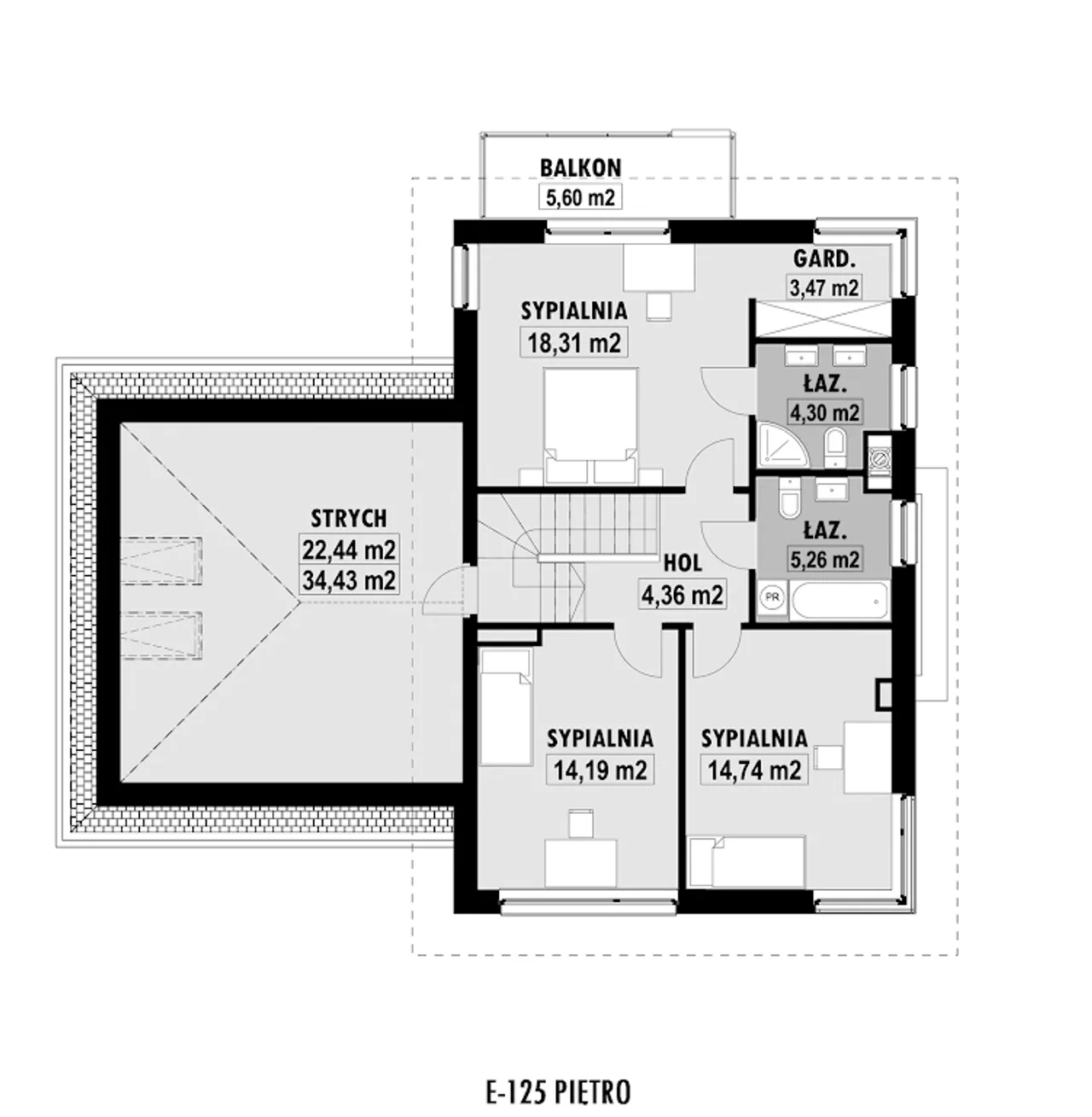
1. Hol | 4,36 m² |
2. Sypialnia | 18,31 m² |
3. Garderoba | 3,47 m² |
4. łazienka | 4,30 m² |
5. łazienka | 5,26 m² |
6. Sypialnia | 14,74 m² |
7. Sypialnia | 14,19 m² |
8. Strych | 22,44 (34,43) m² |
9. Balkon | 5,60 m² |
Wypełnij formularz i otrzymaj rysunki w pdf z dokładnymi wymiarami budynku i pomieszczeń (długość, szerokość, wysokość) dla projektu E-125
Pow. użytkowa 156.4 m² |
Ilość pokoi 4 |
Powierzchnia zabudowy 134.9 m² |
Kondygnacje piętrowy |
Garaż 2 stanowiska |
Technologia murowany |
Szerokość działki 22.31 m |
Obiekt dom |
Typ domu jednorodzinny całoroczny |
Kubatura 750 m³ |
Powierzchnia dachu 175 m² |
Długość działki 20.71 m |
Wysokość budynku 8.7 m |
Kalenica prostopadła do drogi |
Styl budynku nowoczesny |
Liczba łazieniek 2 |
Szerokość budynku 14.31 m |
Kominek kominek w projekcie |
Kąt nachylenia dachu 22 ° |
Długość budynku 11.71 m |
Rodzaj dachu wielospadowy |
Piwnica bez podpiwniczenia |
Koszty budowy 400-450 tys., tylko z kosztorysem |
Pow. użytkowa 156.4 m² |
Powierzchnia zabudowy 134.9 m² |
Garaż 2 stanowiska |
Szerokość działki 22.31 m |
Typ domu jednorodzinny całoroczny |
Powierzchnia dachu 175 m² |
Wysokość budynku 8.7 m |
Styl budynku nowoczesny |
Szerokość budynku 14.31 m |
Kąt nachylenia dachu 22 ° |
Rodzaj dachu wielospadowy |
Koszty budowy 400-450 tys., tylko z kosztorysem |
Ilość pokoi 4 |
Kondygnacje piętrowy |
Technologia murowany |
Obiekt dom |
Kubatura 750 m³ |
Długość działki 20.71 m |
Kalenica prostopadła do drogi |
Liczba łazieniek 2 |
Kominek kominek w projekcie |
Długość budynku 11.71 m |
Piwnica bez podpiwniczenia |
Kupując projekt w technologii murowanej powinieneś budować dom murowany. Zupełna zmiana technologii na szkieletową wymaga przeprojektowania całego budynku ( zmieniają się obciążenia, fundamenty, konstrukcja dachu). Wydamy zgodę na takie przeprojektowanie jednak wiążę się to z dużymi kosztami. Istnieją firmy wykonawcze, które podejmują się zmiany technologii budowy bezpłatnie przy skorzystaniu z ich usług wykonawczych. Zdarza się, że pracownia architektoniczna przygotowuje warianty konkretnego projektu przewidując także inne technologie. Prosimy o sprawdzenie czy istnieje poszukiwana wersja projektu, w zakładce - warianty projektu.
Zwężenie/poszerzenie budynku* to nic innego jak zmiana w projekcie. Istnieje możliwość wprowadzenia takich zmian, we własnym zakresie (podczas adaptacji). *zwężenie/poszerzenie budynku nie powinno stanowić problemu w przypadku domów o dachu dwuspadowym jeśli wiąże się to z wydłużeniem/skróceniem kalenicy dachu.
Poznaj praktyczne porady ekspertów, które ułatwią Ci każdy etap budowy i od wyboru wymarzonego domu po jego wykończenie. Zyskaj pewność, że podejmujesz najlepsze decyzje dzięki sprawdzonym wskazówkom od specjalistów z planz.pl
Wycena szacunkowa, w kwotach netto, nie zawiera instalacji.
bezpłatnie (0zł)
przelew zwykły / PayNow
przy odbiorze
3-5 dni roboczych
Wybierz wygodny dla Ciebie czas kontaktu z naszym Doradcą Technicznym.