E-130



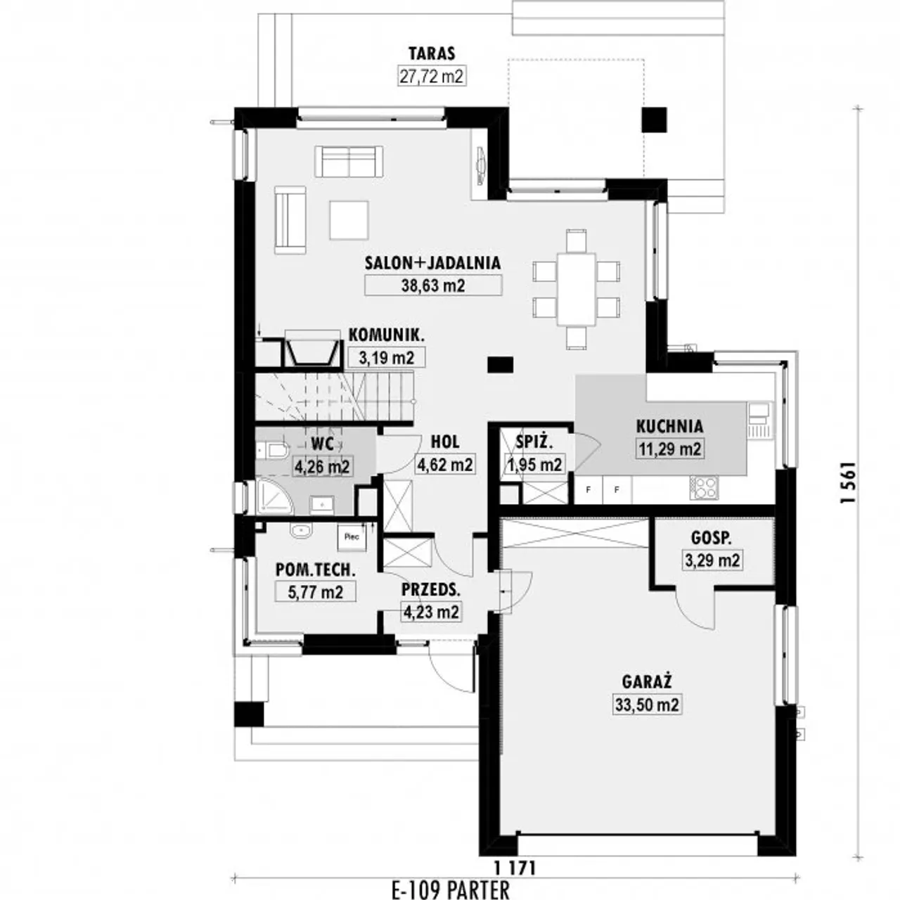
1. Przedsionek | 4,23 m² |
2. Pomieszczenie.tech. | 5,77 m² |
3. Wc | 4,26 m² |
4. Hol | 4,62 m² |
5. Komunikacja | 3,19 m² |
6. Salon+jadalnia | 38,63 m² |
7. Spiżarnia | 1,95 m² |
8. Kuchnia | 11,29 m² |
9. Pomieszczenie gosp. | 3,29 m² |
10. Garaż* | 33,50 m² |
1. Sypialnia | 23,48 m² |
2. Garderoba | 4,71 m² |
3. łazienka | 5,43 m² |
4. Hol | 6,85 m² |
5. łazienka | 6,23 m² |
6. Sypialnia | 16,76 m² |
7. Sypialnia | 19,30 m² |
8. Balkon | 7,08 m² |
9. Taras | 22,38 m² |
Wypełnij formularz i otrzymaj rysunki w pdf z dokładnymi wymiarami budynku i pomieszczeń (długość, szerokość, wysokość) dla projektu E-109
Pow. użytkowa 156.7 m² |
Ilość pokoi 4 |
Powierzchnia zabudowy 155.3 m² |
Kondygnacje piętrowy |
Garaż 2 stanowiska |
Technologia murowany |
Szerokość działki 24 m |
Obiekt dom |
Typ domu jednorodzinny całoroczny |
Piwnica bez podpiwniczenia |
Kubatura 925 m³ |
Ogrzewanie paliwo stałe, pompa ciepła |
Wysokość budynku 8.7 m |
Długość działki 19.7 m |
Kalenica prostopadła do drogi |
Styl budynku nowoczesny |
Liczba łazieniek 3 |
Kominek kominek w projekcie |
Kąt nachylenia dachu 22 ° |
Szerokość budynku 11.71 m |
Taras z tarasem |
Długość budynku 15.61 m |
Rodzaj dachu wielospadowy |
Koszty budowy 400-450 tys., tylko z kosztorysem |
Pow. użytkowa 156.7 m² |
Powierzchnia zabudowy 155.3 m² |
Garaż 2 stanowiska |
Szerokość działki 24 m |
Typ domu jednorodzinny całoroczny |
Kubatura 925 m³ |
Wysokość budynku 8.7 m |
Kalenica prostopadła do drogi |
Liczba łazieniek 3 |
Kąt nachylenia dachu 22 ° |
Taras z tarasem |
Rodzaj dachu wielospadowy |
Ilość pokoi 4 |
Kondygnacje piętrowy |
Technologia murowany |
Obiekt dom |
Piwnica bez podpiwniczenia |
Ogrzewanie paliwo stałe, pompa ciepła |
Długość działki 19.7 m |
Styl budynku nowoczesny |
Kominek kominek w projekcie |
Szerokość budynku 11.71 m |
Długość budynku 15.61 m |
Koszty budowy 400-450 tys., tylko z kosztorysem |
Kupując projekt w technologii murowanej powinieneś budować dom murowany. Zupełna zmiana technologii na szkieletową wymaga przeprojektowania całego budynku ( zmieniają się obciążenia, fundamenty, konstrukcja dachu). Wydamy zgodę na takie przeprojektowanie jednak wiążę się to z dużymi kosztami. Istnieją firmy wykonawcze, które podejmują się zmiany technologii budowy bezpłatnie przy skorzystaniu z ich usług wykonawczych. Zdarza się, że pracownia architektoniczna przygotowuje warianty konkretnego projektu przewidując także inne technologie. Prosimy o sprawdzenie czy istnieje poszukiwana wersja projektu, w zakładce - warianty projektu.
Zwężenie/poszerzenie budynku* to nic innego jak zmiana w projekcie. Istnieje możliwość wprowadzenia takich zmian, we własnym zakresie (podczas adaptacji). *zwężenie/poszerzenie budynku nie powinno stanowić problemu w przypadku domów o dachu dwuspadowym jeśli wiąże się to z wydłużeniem/skróceniem kalenicy dachu.
Poznaj praktyczne porady ekspertów, które ułatwią Ci każdy etap budowy i od wyboru wymarzonego domu po jego wykończenie. Zyskaj pewność, że podejmujesz najlepsze decyzje dzięki sprawdzonym wskazówkom od specjalistów z planz.pl
Wycena szacunkowa, w kwotach netto, nie zawiera instalacji.
bezpłatnie (0zł)
przelew zwykły / PayNow
przy odbiorze
3-5 dni roboczych
Wybierz wygodny dla Ciebie czas kontaktu z naszym Doradcą Technicznym.