22 299 20 00 (pn-nd 9.30 do 19.30)

Gotowy projekt budynku DTD G55CS (ID: 32691)

1650 2025-12-23
DTD G55CS - 55.07m²
Projekt dostępny od ręki
Gwarantujemy najniższą cenę
1650 zł
W cenie projektu:
  • Tablica + dziennik budowy
  • 16 projektów ogrodowych
  • Darmowa wysyłka (kurier, paczkomat, pobranie)
  • 30 dni na zwrot
  • Pozwolenie na zmiany z podpisem i pieczęcią autora
22 299 20 00 (pn-nd 9.30 do 19.30)

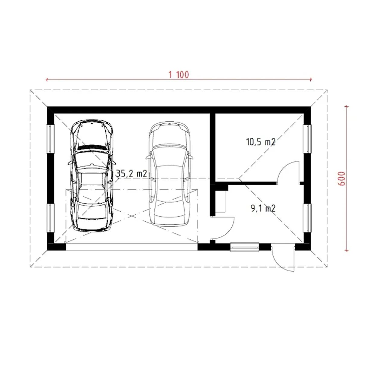
Rzuty gotowego projektu budynku DTD G55CS

1. Przedsionek 9,24 m²
2. Garaż 35,34 m²
3. Pom. gospodarcze 10,49 m²

Zapoznaj się ze szczegółami projektu - pobierz bezpłatne rysunki do: DTD G55CS

Wypełnij formularz i otrzymaj rysunki w pdf z dokładnymi wymiarami budynku i pomieszczeń (długość, szerokość, wysokość) dla projektu DTD G55CS

Parametry Techniczne gotowego projektu domu DTD G55CS

Pow. użytkowa 55.07 m²
Powierzchnia zabudowy 67.71 m²
Kondygnacje parterowy
Garaż 2 stanowiska
Technologia murowany
Obiekt inny
Rodzaj dachu wielospadowy
Obiekt inny (szczegóły) garaże
Kąt nachylenia dachu 30 °
Szerokość budynku 6.1 m
Długość budynku 11.1 m
Kalenica równoległa do drogi
Kubatura 263 m³
Przestrzeń z pom. gospodarczym
Wysokość budynku 5.11 m

Nasze prawdziwe opinie z Google

Opis projektu domu DTD G55CS

Technologia wykonania:

  • Ściany zewnętrzne: dwuwarstwowe, bloczek gazobetonowy 24cm + styropian 10cm.
  • Strop: płyta żelbetowa.
  • Schody: brak.
  • Ścianka kolankowa: brak.
  • Dach: czterospadowy, nachylenie 30°, pokrycie z dachówki ceramicznej.

Dodatki do projektu DTD G55CS

Dodatki możesz kupić razem z projektem lub dokupić po czasie

[Planz] Tablica budowlana (0 zł)

[Planz] Dziennik budowy (0 zł)

[Planz] Wiertarka udarowa (0 zł)

[Planz] Zgoda na zmiany w projekcie (0 zł)

[Planz] Projekty architektury ogrodowej (0 zł)

[Planz] Charakterystyka energetyczna, tylko dla domów całorocznych (0 zł)

Wysyłka i płatność za projekt DTD G55CS

Koszty wysyłki

bezpłatnie (0zł)

Formy płatności

przelew zwykły / PayNow
przy odbiorze

Czas oczekiwania

3-5 dni roboczych

Wersje gotowego projektu domu DTD G55CS

Podobne projekty do budynku DTD G55CS

PRACOWNIA: Dom to dom