Gotowy projekt domu Domena 210 B (ID: 34899)
Możliwy dłuzszy czas realizacji
Gwarantujemy najniższą cenę
- Tablica + dziennik budowy
- 16 projektów ogrodowych
- Darmowa wysyłka (kurier, paczkomat, pobranie)
- 30 dni na zwrot
- Pozwolenie na zmiany z podpisem i pieczęcią autora
- GRATIS: Wiertarka Udarowa
Zawartość projektu
- opis techniczny – zawiera rozwiązania funkcjonalne projektu, wielkości powierzchni (całkowitej, zabudowy, użytkowej), kubatury, wysokość kalenicy itp., proponowane rozwiązania materiałowe i wykończeniowe
- widoki elewacji obrazujące wygląd domu z każdej strony w skali 1:100
- rzuty poziome kondygnacji (rozmieszczenie i zwymiarowane wielkości pomieszczeń, umiejscowienie kominów, wentylacji, urządzeń sanitarnych i kuchennych) w skali 1:100
- rzut dachu w skali 1:100
- przekroje pionowe ze szczególnym uwzględnieniem miejsc charakterystycznych budynku wykonane w skali 1:50
- zestawienie stolarki drzwiowej i okiennej z ilościami i wymiarami
- charakterystyka energetyczna wraz z analizą porównawczą systemów ogrzewania
W części technicznej znajdują się:
1. Część konstrukcyjna, która zawiera:
- rysunki techniczne w rozpiętości skal od 1:20 do 1:100
- opis techniczny rozwiązań konstrukcyjnych wraz z proponowanymi materiałami
- rzuty fundamentów, stropów i więźby dachowej
- rozwiązania detali konstrukcyjnych
- obliczenia statyczne
- zestawienia stali i drewna
2. Część instalacyjna – to szereg projektów branżowych, których rysunki wykonano w skali 1:100 prezentujących miedzy innymi rozmieszczenie elementów instalacji:
- elektrycznej
- wodno-kanalizacyjnej
- gazowej
- centralnego ogrzewania
- rekuperacji, solarnej - jeżeli występują w projekcie
3. Dodatki – najczęściej są to:
- obliczenia statyczne
- zestawienia stali i drewna
Zawartość projektu nie dotyczy budynków gospodarczych, garaży oraz obiektów malej architektury.
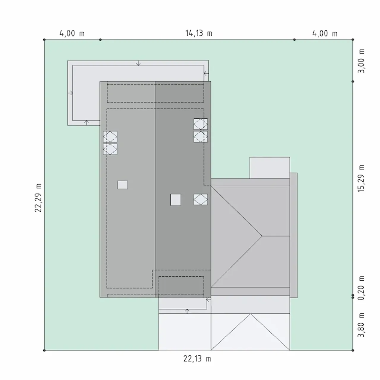
Rzuty gotowego projektu domu Domena 210 B
| 1. Wiatrołap | 5,79 m² |
| 2. Korytarz | 8,93 m² |
| 3. Salon z jadalnia + kuchnia | 40,00 m² |
| 4. Spiżarnia | 1,57 m² |
| 5. Pokój | 9,17 m² |
| 6. łazienka | 3,52 m² |
| 7. Kotłownia | 6,28 m² |
| 8. Garaż | 34,90 m² |
| 1. Korytarz | 6,76 m² |
| 2. Pokój | 14,45 (15,84) m² |
| 3. Pokój | 12,00 (13,59) m² |
| 4. Pokój | 12,00 (13,59) m² |
| 5. łazienka | 6,06 (7,43) m² |
| 6. Pralnia | 3,06 m² |
| 7. Garderoba 1 | 3,88 (4,72) m² |
| 8. Garderoba 2 | 2,86 (3,47) m² |
Zapoznaj się ze szczegółami projektu - pobierz bezpłatne rysunki do: Domena 210 B
Wypełnij formularz i otrzymaj rysunki w pdf z dokładnymi wymiarami budynku i pomieszczeń (długość, szerokość, wysokość) dla projektu Domena 210 B
Parametry Techniczne gotowego projektu domu Domena 210 B
| Pow. użytkowa 130 m² |
| Ilość pokoi 5 |
| Powierzchnia zabudowy 166.58 m² |
| Kondygnacje parterowy+poddasze |
| Garaż 2 stanowiska |
| Technologia murowany |
| Szerokość działki 22.13 m |
| Obiekt dom |
| Typ domu jednorodzinny całoroczny |
| Kubatura 534.69 m³ |
| Rodzaj dachu dwuspadowy |
| Powierzchnia dachu 166.74 m² |
| Długość działki 22.29 m |
| Ogrzewanie paliwo stałe |
| Wysokość budynku 8.94 m |
| Styl budynku nowoczesny |
| Liczba łazieniek 2 |
| Kalenica prostopadła do drogi |
| Szerokość budynku 14.13 m |
| Kominek kominek w projekcie |
| Kąt nachylenia dachu 45 ° |
| Długość budynku 15.49 m |
| Piwnica bez podpiwniczenia |
| Pow. użytkowa 130 m² |
| Powierzchnia zabudowy 166.58 m² |
| Garaż 2 stanowiska |
| Szerokość działki 22.13 m |
| Typ domu jednorodzinny całoroczny |
| Rodzaj dachu dwuspadowy |
| Długość działki 22.29 m |
| Wysokość budynku 8.94 m |
| Liczba łazieniek 2 |
| Szerokość budynku 14.13 m |
| Kąt nachylenia dachu 45 ° |
| Piwnica bez podpiwniczenia |
| Ilość pokoi 5 |
| Kondygnacje parterowy+poddasze |
| Technologia murowany |
| Obiekt dom |
| Kubatura 534.69 m³ |
| Powierzchnia dachu 166.74 m² |
| Ogrzewanie paliwo stałe |
| Styl budynku nowoczesny |
| Kalenica prostopadła do drogi |
| Kominek kominek w projekcie |
| Długość budynku 15.49 m |
Energia i ogrzewanie gotowego projektu domu Domena 210 B
Nasze prawdziwe opinie z Google
Opis projektu domu Domena 210 B
Projekt domu Domena 210 B - nowoczesny dom z poddaszem
Projekt domu Domena 210 B to nowoczesny dom jednorodzinny z poddaszem użytkowym i dwustanowiskowym garażem, zaprojektowany dla osób ceniących wyrazistą architekturę i funkcjonalny układ wnętrza. Zwarta bryła z dachem dwuspadowym i elegancką blachą na rąbek tworzy spójny, współczesny wizerunek budynku.
Dom wybudowany na podstawie projektu Domena 210 B będzie solidną, murowaną inwestycją na lata, przystosowaną do całorocznego użytkowania i aktualnych wymagań energetycznych WT2025. Przemyślany układ pięciu pokoi sprzyja wygodnemu życiu rodziny, a kominek dodaje wnętrzom przytulności i nastroju.
Najważniejsze atuty projektu domu jednorodzinnego z poddaszem
- Nowoczesny styl budynku: Prosta bryła z dachem dwuspadowym i okładziną imitującą drewno tworzy współczesny, elegancki charakter.
- Pięć pokoi dla rodziny: Przemyślany układ pomieszczeń ułatwia wygodne rozdzielenie strefy dziennej i nocnej.
- Garaż na dwa auta: Dwustanowiskowy garaż chroni samochody przed warunkami atmosferycznymi i porządkuje przestrzeń na działce.
- Kominek jako dodatkowe źródło ciepła: Palenisko w strefie dziennej tworzy przyjemny klimat i wspiera system ogrzewania na paliwo stałe.
- Murowana technologia i strop żelbetowy: Ściany z bloczków wapienno‑piaskowych i monolityczny strop zwiększają trwałość konstrukcji i akustykę pomieszczeń.
Projekt domu nowoczesnego z dachem dwuspadowym
Projekt przedstawia nowoczesny dom jednorodzinny całoroczny z wyraźnie zarysowaną kalenicą prostopadłą do drogi. Dach dwuspadowy o kącie nachylenia 45° nadaje bryle dynamiczny, klasyczny charakter, a jednocześnie pozwala efektywnie zagospodarować poddasze. Pokrycie z blachy na rąbek stojący podkreśla współczesny styl i ułatwia utrzymanie połaci w czystości.
Konstrukcja dachu opiera się na tradycyjnej więźbie drewnianej, co upraszcza realizację i umożliwia precyzyjne dopasowanie izolacji termicznej. Schody drewniane między parterem a poddaszem wprowadzają do wnętrza naturalny akcent, budują przyjemny klimat i dodają lekkości strefie komunikacji.
Solidna technologia i energooszczędne rozwiązania
Fundamenty zaprojektowano jako bezpośrednie, na ławach i stopach fundamentowych, co zwiększa stabilność posadowienia na zróżnicowanych gruntach. Ściany zewnętrzne z bloczków wapienno‑piaskowych o grubości 24 cm uzupełniono warstwą styropianu TERMO ORGANIKA Fasada 20-24 cm, co skutkuje bardzo dobrymi parametrami cieplnymi i akustycznymi. Tynk systemowy tej samej firmy i okładzina imitująca drewno tworzą spójną, dopracowaną elewację.
Ściany wewnętrzne nośne również wykonane są z bloczków wapienno‑piaskowych, a ściany działowe na parterze z elementów 8 i 12 cm. Na poddaszu przewidziano lekkie ścianki z płyt g‑k na ruszcie, co pozwala elastycznie kształtować układ pomieszczeń. Strop żelbetowy monolityczny wzmacnia sztywność konstrukcji, poprawia akustykę między kondygnacjami i daje stabilną bazę pod różnorodne wykończenia podłóg.
Dom ogrzewany paliwem stałym z kominkiem
Ogrzewanie oparto na paliwie stałym, co umożliwia optymalny dobór kotła do lokalnych warunków i oczekiwań inwestora. Dodatkowe źródło ciepła w postaci kominka zwiększa elastyczność systemu grzewczego i tworzy centralny punkt strefy dziennej. Projekt domu jest zgodny z wymaganiami WT2025, dlatego przy właściwej realizacji inwestycja może osiągać korzystne parametry energetyczne.
Dom wybudowany na podstawie projektu Domena 210 B będzie nowoczesną, funkcjonalną przestrzenią dla rodziny, w której tradycyjna, murowana technologia łączy się z aktualnymi standardami efektywności energetycznej. Połączenie dwustanowiskowego garażu, pięciu pokoi i poddasza z żelbetowym stropem tworzy bezpieczne, wygodne miejsce do życia przez wiele lat.
Podsumowanie korzyści - projekt domu jednorodzinnego murowanego
- Nowoczesna architektura z dachem dwuspadowym i drewnopodobną okładziną.
- Pięć pokoi i wyraźny podział na strefę dzienną oraz nocną.
- Dwustanowiskowy garaż zintegrowany z bryłą budynku.
- Murowana technologia, ściany z bloczków wapienno‑piaskowych i strop żelbetowy.
- Ogrzewanie paliwem stałym i kominek jako dodatkowe źródło ciepła.
- Zgodność projektu z wymaganiami WT2025.
Nie zwlekaj, wybierz ten projekt domu jednorodzinnego z poddaszem, zamów dokumentację i rozpocznij realizację inwestycji w solidny, nowoczesny dom.
Technologia wykonania:
- Fundamenty: bezpośrednie, na ławach i stopach fundamentowych.
- Ściany zewnętrzne: bloczki wapienno-piaskowe – 24 cm+ styropian TERMO ORGANIKA typ Fasada 20-24cm.
- Ściany wewnętrzne: bloczki wapienno-piaskowe – 24 cm, działowe – bloczki wapienno-piaskowe - 8 cm, 12 cm (parter) + dzialowe z płyty G-K na ruszcie (poddasze).
- Strop: żelbetowy monolityczny.
- Elewacje: tynk - systemowy firmy TERMO ORGANIKA, okładzina imitująca drewno.
- Pokrycie dachu: blacha na rąbek stojący.
- Konstrukcja dachu: tradycyjna drewniana.
- Schody wewnętrzne: schody drewniane.
- Ogrzewanie: paliwo stałe, dodatkowe źródło ciepła – kominek.
- Projekt jest zgodny z wymaganiami WT2025.
Dodatki do projektu Domena 210 B
Dodatki możesz kupić razem z projektem lub dokupić po czasie
[Domena] Dodatkowy egzemplarz projektu (550 zł)
[Domena] Kosztorys inwestorski w wersji elektronicznej (500 zł)
[Domena] Instalacja solarna (450 zł)
[Domena] Pompa ciepła gruntowa (550 zł)
[Planz] Tablica budowlana (0 zł)
[Planz] Dziennik budowy (0 zł)
[Planz] Wiertarka udarowa (0 zł)
[Planz] Zgoda na zmiany w projekcie (0 zł)
[Planz] Projekty architektury ogrodowej (0 zł)
[Planz] Charakterystyka energetyczna, tylko dla domów całorocznych (0 zł)
Wysyłka i płatność za projekt Domena 210 B
Koszty wysyłki
bezpłatnie (0zł)
Formy płatności
przelew zwykły / PayNow
przy odbiorze
Czas oczekiwania
3-6 dni roboczych
FAQ
Co zawiera dokumentacja projektowa domu Domena 210 B i czy obejmuje ona również szczegóły technologii oraz zgodność z WT2025?
Czy można wprowadzić zmiany w projekcie Domena 210 B, na przykład zmienić układ pomieszczeń lub funkcję garażu?
Czy w projekcie można zmienić system ogrzewania na pompę ciepła lub ogrzewanie gazowe zamiast kotła na paliwo stałe?
Projekt w kategoriach
Zamów rozmowę
Wybierz wygodny dla Ciebie czas kontaktu z naszym Doradcą Technicznym.
parterowy+poddasze
2 stanowiska
murowany
[Domena] Kosztorys inwestorski w wersji elektronicznej (500 zł)
[Domena] Pompa ciepła gruntowa (550 zł)
[Planz] Dziennik budowy (0 zł)
[Planz] Zgoda na zmiany w projekcie (0 zł)
[Planz] Charakterystyka energetyczna, tylko dla domów całorocznych (0 zł)