Dom przy Bukowej 5



Zawartość projektu
3 egzemplarze projektu archtektoniczno budowlanego + 3 egzemplarze projektu technicznego.
Wypełnij formularz i otrzymaj rysunki w pdf z dokładnymi wymiarami budynku i pomieszczeń (długość, szerokość, wysokość) dla projektu Dom przy Przyjemnej 7 bis
Pow. użytkowa 83.08 m² |
Powierzchnia zabudowy 156.07 m² |
Kondygnacje parterowy |
Garaż 2 stanowiska |
Technologia murowany |
Szerokość działki 21.3 m |
Obiekt dom |
Typ domu jednorodzinny całoroczny |
Strop żelbetowy |
Kalenica równoległa do drogi |
Szerokość budynku 14.3 m |
Kominek kominek w projekcie |
Kąt nachylenia dachu 30 ° |
Długość budynku 11.45 m |
Rodzaj garażu z przodu |
Piwnica bez podpiwniczenia |
Kubatura 510.76 m³ |
Rodzaj dachu dwuspadowy |
Powierzchnia dachu 213.43 m² |
Długość działki 19.45 m |
Wysokość budynku 6.93 m |
Styl budynku nowoczesny |
Koszty budowy tylko z kosztorysem, 200-250 tys. |
Pow. użytkowa 83.08 m² |
Kondygnacje parterowy |
Technologia murowany |
Obiekt dom |
Strop żelbetowy |
Szerokość budynku 14.3 m |
Kąt nachylenia dachu 30 ° |
Rodzaj garażu z przodu |
Kubatura 510.76 m³ |
Powierzchnia dachu 213.43 m² |
Wysokość budynku 6.93 m |
Koszty budowy tylko z kosztorysem, 200-250 tys. |
Powierzchnia zabudowy 156.07 m² |
Garaż 2 stanowiska |
Szerokość działki 21.3 m |
Typ domu jednorodzinny całoroczny |
Kalenica równoległa do drogi |
Kominek kominek w projekcie |
Długość budynku 11.45 m |
Piwnica bez podpiwniczenia |
Rodzaj dachu dwuspadowy |
Długość działki 19.45 m |
Styl budynku nowoczesny |
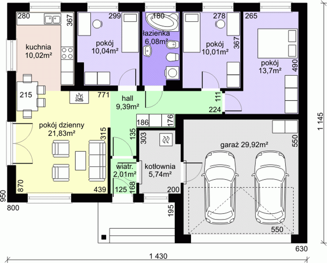
Prezentujemy gotowy projekt domu o nazwie Dom przy Przyjemnej 7 bis. Budynek na podstawie tego projektu domu będzie wykonany w technologii murowanej. Projekt Dom przy Przyjemnej 7 bis ma zaprojektowany kominek w salonie . Powierzchnia użytkowa domu o wielkości 83.08m obejmuje parter budynku. Projekt domu Dom przy Przyjemnej 7 bis jest przystosowany do ogrzewania na gaz. Dom nie jest podpiwniczony.Projekt przewiduje garaż na dwa auta. Dach w projekcie Dom przy Przyjemnej 7 bis ma kształt dwuspadowy i powierzchnię 213.43m a kąt nachylenia dachu wynosi 30 stopni.Gotowy projekt domu Dom przy Przyjemnej 7 bis to dom całoroczny o nowoczesnym stylu wykończenia elewacji zewnętrznych.Dom przy Przyjemnej 7 bis zmieści się na działce, której szerokość nie będzie mniejsza niż 19.45m. Wysokość domu do poziomu kalenicy wyniesie 6.93m.
Kupując projekt w technologii murowanej powinieneś budować dom murowany. Zupełna zmiana technologii na szkieletową wymaga przeprojektowania całego budynku ( zmieniają się obciążenia, fundamenty, konstrukcja dachu). Wydamy zgodę na takie przeprojektowanie jednak wiążę się to z dużymi kosztami. Istnieją firmy wykonawcze, które podejmują się zmiany technologii budowy bezpłatnie przy skorzystaniu z ich usług wykonawczych. Zdarza się, że pracownia architektoniczna przygotowuje warianty konkretnego projektu przewidując także inne technologie. Prosimy o sprawdzenie czy istnieje poszukiwana wersja projektu, w zakładce - warianty projektu.
Zwężenie/poszerzenie budynku* to nic innego jak zmiana w projekcie. Istnieje możliwość wprowadzenia takich zmian, we własnym zakresie (podczas adaptacji). *zwężenie/poszerzenie budynku nie powinno stanowić problemu w przypadku domów o dachu dwuspadowym jeśli wiąże się to z wydłużeniem/skróceniem kalenicy dachu.
Poznaj praktyczne porady ekspertów, które ułatwią Ci każdy etap budowy i od wyboru wymarzonego domu po jego wykończenie. Zyskaj pewność, że podejmujesz najlepsze decyzje dzięki sprawdzonym wskazówkom od specjalistów z planz.pl
Wycena szacunkowa, w kwotach netto, nie zawiera instalacji.
bezpłatnie (0zł)
przelew zwykły / PayNow
przy odbiorze
2-7 dni roboczych
Wybierz wygodny dla Ciebie czas kontaktu z naszym Doradcą Technicznym.