L-55 murowany



Zawartość projektu
3 egzemplarze projektu archtektoniczno budowlanego + 3 egzemplarze projektu technicznego.
Wypełnij formularz i otrzymaj rysunki w pdf z dokładnymi wymiarami budynku i pomieszczeń (długość, szerokość, wysokość) dla projektu Dom przy Migdałowej 7
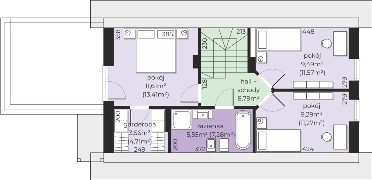
Pow. użytkowa 92.57 m² |
Powierzchnia zabudowy 97.93 m² |
Kondygnacje parterowy+poddasze |
Garaż 1 stanowisko |
Technologia murowany |
Szerokość działki 13.6 m |
Obiekt dom |
Typ domu jednorodzinny całoroczny |
Kubatura 565 m³ |
Taras z tarasem |
Powierzchnia dachu 137.01 m² |
Piwnica bez podpiwniczenia |
Wysokość budynku 7.82 m |
Kalenica prostopadła do drogi |
Styl budynku nowoczesny |
Długość działki 24.3 m |
Kąt nachylenia dachu 40 ° |
Rodzaj dachu dwuspadowy |
Kominek kominek w projekcie |
Koszty budowy tylko z kosztorysem, 200-250 tys. |
Pow. użytkowa 92.57 m² |
Kondygnacje parterowy+poddasze |
Technologia murowany |
Obiekt dom |
Kubatura 565 m³ |
Powierzchnia dachu 137.01 m² |
Wysokość budynku 7.82 m |
Styl budynku nowoczesny |
Kąt nachylenia dachu 40 ° |
Kominek kominek w projekcie |
Powierzchnia zabudowy 97.93 m² |
Garaż 1 stanowisko |
Szerokość działki 13.6 m |
Typ domu jednorodzinny całoroczny |
Taras z tarasem |
Piwnica bez podpiwniczenia |
Kalenica prostopadła do drogi |
Długość działki 24.3 m |
Rodzaj dachu dwuspadowy |
Koszty budowy tylko z kosztorysem, 200-250 tys. |
Kupując projekt w technologii murowanej powinieneś budować dom murowany. Zupełna zmiana technologii na szkieletową wymaga przeprojektowania całego budynku ( zmieniają się obciążenia, fundamenty, konstrukcja dachu). Wydamy zgodę na takie przeprojektowanie jednak wiążę się to z dużymi kosztami. Istnieją firmy wykonawcze, które podejmują się zmiany technologii budowy bezpłatnie przy skorzystaniu z ich usług wykonawczych. Zdarza się, że pracownia architektoniczna przygotowuje warianty konkretnego projektu przewidując także inne technologie. Prosimy o sprawdzenie czy istnieje poszukiwana wersja projektu, w zakładce - warianty projektu.
Zwężenie/poszerzenie budynku* to nic innego jak zmiana w projekcie. Istnieje możliwość wprowadzenia takich zmian, we własnym zakresie (podczas adaptacji). *zwężenie/poszerzenie budynku nie powinno stanowić problemu w przypadku domów o dachu dwuspadowym jeśli wiąże się to z wydłużeniem/skróceniem kalenicy dachu.
Poznaj praktyczne porady ekspertów, które ułatwią Ci każdy etap budowy i od wyboru wymarzonego domu po jego wykończenie. Zyskaj pewność, że podejmujesz najlepsze decyzje dzięki sprawdzonym wskazówkom od specjalistów z planz.pl
Wycena szacunkowa, w kwotach netto, nie zawiera instalacji.
bezpłatnie (0zł)
przelew zwykły / PayNow
przy odbiorze
2-7 dni roboczych
Wybierz wygodny dla Ciebie czas kontaktu z naszym Doradcą Technicznym.