Dom przy Alabastrowej 50



Zawartość projektu
3 egzemplarze projektu archtektoniczno budowlanego + 3 egzemplarze projektu technicznego.
1. Wiatrołap | 4,93 m² |
2. Hall | 4,51 m² |
3. łazienka | 4,12 m² |
4. Pom. gospodarcze | 1,57 m² |
5. Kuchnia | 7,59 m² |
6. Pokój dzienny | 22,27 m² |
7. Pokój | 10,14 m² |
8. Kotłownia | 5,40 m² |
9. Garaż | 17,98 m² |
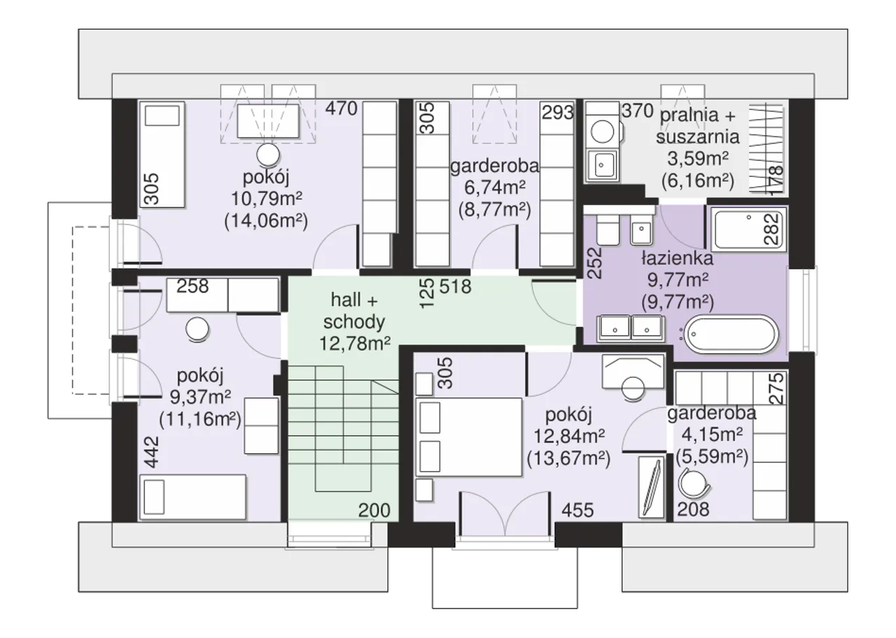
1. Hall + schody | 12,78 (12,78) m² |
2. Pokój | 9,37 (11,16) m² |
3. Pokój | 10,79 (14,06) m² |
4. Garderoba | 6,74 (8,77) m² |
5. Pralnia + suszarnia | 3,59 (6,16) m² |
6. łazienka | 9,77 (9,77) m² |
7. Garderoba | 4,15 (5,59) m² |
8. Pokój | 12,84 (13,67) m² |
Wypełnij formularz i otrzymaj rysunki w pdf z dokładnymi wymiarami budynku i pomieszczeń (długość, szerokość, wysokość) dla projektu Dom przy Alabastrowej 46
Ilość pokoi 5 |
Pow. użytkowa 120 m² |
Powierzchnia zabudowy 109.89 m² |
Kondygnacje parterowy+poddasze |
Garaż 1 stanowisko |
Technologia murowany |
Szerokość działki 21.31 m |
Obiekt dom |
Typ domu jednorodzinny całoroczny |
Styl budynku nowoczesny |
Kominek kominek w projekcie |
Strop żelbetowy |
Szerokość budynku 13.31 m |
Taras z tarasem |
Kąt nachylenia dachu 40 ° |
Kalenica równoległa do drogi |
Długość budynku 8.5 m |
Piwnica bez podpiwniczenia |
Funkcje dodatkowe z pralnią |
Kubatura 616.65 m³ |
Rodzaj garażu w bryle |
Powierzchnia dachu 180.2 m² |
Rodzaj dachu dwuspadowy |
Długość działki 16.5 m |
Wysokość budynku 8.26 m |
Bryła budynku prosta bryła |
Liczba łazieniek 2 |
Koszty budowy tylko z kosztorysem, 250-300 tys. |
Ilość pokoi 5 |
Powierzchnia zabudowy 109.89 m² |
Garaż 1 stanowisko |
Szerokość działki 21.31 m |
Typ domu jednorodzinny całoroczny |
Kominek kominek w projekcie |
Szerokość budynku 13.31 m |
Kąt nachylenia dachu 40 ° |
Długość budynku 8.5 m |
Funkcje dodatkowe z pralnią |
Rodzaj garażu w bryle |
Rodzaj dachu dwuspadowy |
Wysokość budynku 8.26 m |
Liczba łazieniek 2 |
Pow. użytkowa 120 m² |
Kondygnacje parterowy+poddasze |
Technologia murowany |
Obiekt dom |
Styl budynku nowoczesny |
Strop żelbetowy |
Taras z tarasem |
Kalenica równoległa do drogi |
Piwnica bez podpiwniczenia |
Kubatura 616.65 m³ |
Powierzchnia dachu 180.2 m² |
Długość działki 16.5 m |
Bryła budynku prosta bryła |
Koszty budowy tylko z kosztorysem, 250-300 tys. |
Kupując projekt w technologii murowanej powinieneś budować dom murowany. Zupełna zmiana technologii na szkieletową wymaga przeprojektowania całego budynku ( zmieniają się obciążenia, fundamenty, konstrukcja dachu). Wydamy zgodę na takie przeprojektowanie jednak wiążę się to z dużymi kosztami. Istnieją firmy wykonawcze, które podejmują się zmiany technologii budowy bezpłatnie przy skorzystaniu z ich usług wykonawczych. Zdarza się, że pracownia architektoniczna przygotowuje warianty konkretnego projektu przewidując także inne technologie. Prosimy o sprawdzenie czy istnieje poszukiwana wersja projektu, w zakładce - warianty projektu.
Zwężenie/poszerzenie budynku* to nic innego jak zmiana w projekcie. Istnieje możliwość wprowadzenia takich zmian, we własnym zakresie (podczas adaptacji). *zwężenie/poszerzenie budynku nie powinno stanowić problemu w przypadku domów o dachu dwuspadowym jeśli wiąże się to z wydłużeniem/skróceniem kalenicy dachu.
Poznaj praktyczne porady ekspertów, które ułatwią Ci każdy etap budowy i od wyboru wymarzonego domu po jego wykończenie. Zyskaj pewność, że podejmujesz najlepsze decyzje dzięki sprawdzonym wskazówkom od specjalistów z planz.pl
Wycena szacunkowa, w kwotach netto, nie zawiera instalacji.
bezpłatnie (0zł)
przelew zwykły / PayNow
przy odbiorze
2-7 dni roboczych
Wybierz wygodny dla Ciebie czas kontaktu z naszym Doradcą Technicznym.