Dom Parterowy 25



Wypełnij formularz i otrzymaj rysunki w pdf z dokładnymi wymiarami budynku i pomieszczeń (długość, szerokość, wysokość) dla projektu Dom Parterowy 25S
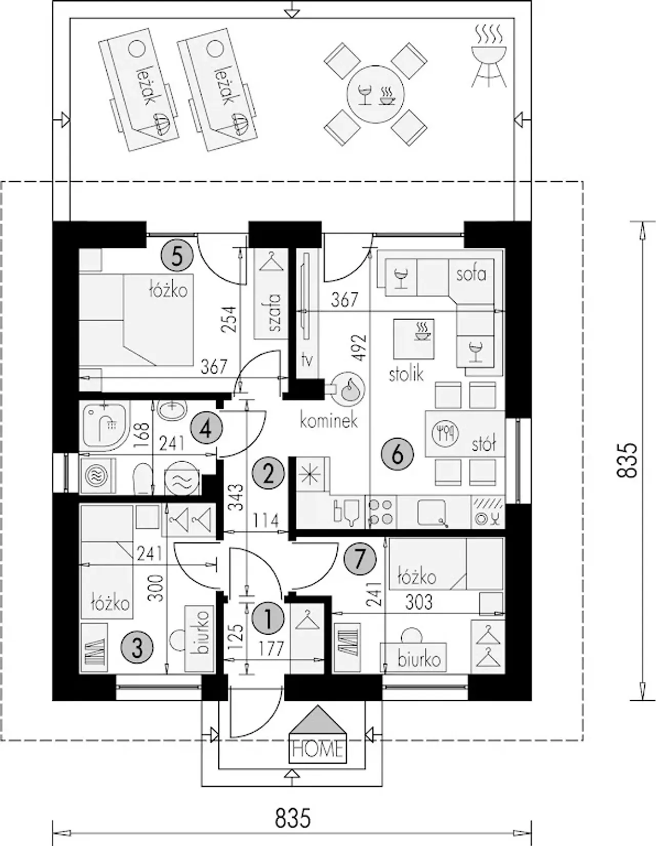
Pow. użytkowa 51.4 m² |
Ilość pokoi 4 |
Powierzchnia zabudowy 69.7 m² |
Kondygnacje parterowy |
Garaż bez garażu |
Technologia szkielet/drewniany |
Szerokość działki 16.35 m |
Obiekt dom |
Typ domu jednorodzinny całoroczny |
Powierzchnia dachu 114 m² |
Długość działki 16.35 m |
Wysokość budynku 6.11 m |
Styl budynku nowoczesny |
Kalenica prostopadła do drogi |
Liczba łazieniek 1 |
Szerokość budynku 8.35 m |
Kominek kominek w projekcie |
Kąt nachylenia dachu 30 ° |
Długość budynku 8.35 m |
Rodzaj dachu dwuspadowy |
Piwnica bez podpiwniczenia |
Kubatura 335.1 m³ |
Koszty budowy tylko z kosztorysem, 100-150 tys. |
Pow. użytkowa 51.4 m² |
Powierzchnia zabudowy 69.7 m² |
Garaż bez garażu |
Szerokość działki 16.35 m |
Typ domu jednorodzinny całoroczny |
Długość działki 16.35 m |
Styl budynku nowoczesny |
Liczba łazieniek 1 |
Kominek kominek w projekcie |
Długość budynku 8.35 m |
Piwnica bez podpiwniczenia |
Koszty budowy tylko z kosztorysem, 100-150 tys. |
Ilość pokoi 4 |
Kondygnacje parterowy |
Technologia szkielet/drewniany |
Obiekt dom |
Powierzchnia dachu 114 m² |
Wysokość budynku 6.11 m |
Kalenica prostopadła do drogi |
Szerokość budynku 8.35 m |
Kąt nachylenia dachu 30 ° |
Rodzaj dachu dwuspadowy |
Kubatura 335.1 m³ |
Kupując projekt w technologii murowanej powinieneś budować dom murowany. Zupełna zmiana technologii na szkieletową wymaga przeprojektowania całego budynku ( zmieniają się obciążenia, fundamenty, konstrukcja dachu). Wydamy zgodę na takie przeprojektowanie jednak wiążę się to z dużymi kosztami. Istnieją firmy wykonawcze, które podejmują się zmiany technologii budowy bezpłatnie przy skorzystaniu z ich usług wykonawczych. Zdarza się, że pracownia architektoniczna przygotowuje warianty konkretnego projektu przewidując także inne technologie. Prosimy o sprawdzenie czy istnieje poszukiwana wersja projektu, w zakładce - warianty projektu.
Zwężenie/poszerzenie budynku* to nic innego jak zmiana w projekcie. Istnieje możliwość wprowadzenia takich zmian, we własnym zakresie (podczas adaptacji). *zwężenie/poszerzenie budynku nie powinno stanowić problemu w przypadku domów o dachu dwuspadowym jeśli wiąże się to z wydłużeniem/skróceniem kalenicy dachu.
Poznaj praktyczne porady ekspertów, które ułatwią Ci każdy etap budowy i od wyboru wymarzonego domu po jego wykończenie. Zyskaj pewność, że podejmujesz najlepsze decyzje dzięki sprawdzonym wskazówkom od specjalistów z planz.pl
Wycena szacunkowa, w kwotach netto, nie zawiera instalacji.
bezpłatnie (0zł)
przelew zwykły / PayNow
przy odbiorze
3-5 dni roboczych (jeśli projekt nie jest koncepcją)
Dom parterowy wydaje się być idealnym rozwiązaniem dla rodzin poszukujących funkcjonalnych i praktycznych rozwiązań. Przestronność wnętrza oraz dobrze zaplanowany układ pomieszczeń to cechy, które dają poczucie swobody i wygody. Jasno wydzielone strefy dzienne i nocne zapewniają prywatność oraz umożliwiają efektywne organizowanie codziennego życia. Wykorzystanie naturalnego światła poprzez duże okna wpływa pozytywnie na atmosferę pomieszczeń, czyniąc je przytulnymi. Warto również zwrócić uwagę na nowoczesną estetykę zaprojektowanej bryły, która sprawia, że dom doskonale wpisuje się w różne typy otoczenia.
Wybierz wygodny dla Ciebie czas kontaktu z naszym Doradcą Technicznym.