Dom Parterowy 23



Wypełnij formularz i otrzymaj rysunki w pdf z dokładnymi wymiarami budynku i pomieszczeń (długość, szerokość, wysokość) dla projektu Dom Parterowy 23S
Ilość pokoi 2 |
Pow. użytkowa 49.3 m² |
Powierzchnia zabudowy 69.7 m² |
Kondygnacje parterowy |
Garaż bez garażu |
Technologia szkielet/drewniany |
Szerokość działki 16.35 m |
Obiekt dom |
Typ domu jednorodzinny całoroczny |
Powierzchnia dachu 114 m² |
Długość działki 16.35 m |
Wysokość budynku 6.11 m |
Styl budynku tradycyjny |
Liczba łazieniek 1 |
Szerokość budynku 8.35 m |
Kominek kominek w projekcie |
Kąt nachylenia dachu 30 ° |
Długość budynku 8.35 m |
Piwnica bez podpiwniczenia |
Kubatura 335.1 m³ |
Koszty budowy tylko z kosztorysem, 100-150 tys. |
Ilość pokoi 2 |
Powierzchnia zabudowy 69.7 m² |
Garaż bez garażu |
Szerokość działki 16.35 m |
Typ domu jednorodzinny całoroczny |
Długość działki 16.35 m |
Styl budynku tradycyjny |
Szerokość budynku 8.35 m |
Kąt nachylenia dachu 30 ° |
Piwnica bez podpiwniczenia |
Koszty budowy tylko z kosztorysem, 100-150 tys. |
Pow. użytkowa 49.3 m² |
Kondygnacje parterowy |
Technologia szkielet/drewniany |
Obiekt dom |
Powierzchnia dachu 114 m² |
Wysokość budynku 6.11 m |
Liczba łazieniek 1 |
Kominek kominek w projekcie |
Długość budynku 8.35 m |
Kubatura 335.1 m³ |
Kupując projekt w technologii murowanej powinieneś budować dom murowany. Zupełna zmiana technologii na szkieletową wymaga przeprojektowania całego budynku ( zmieniają się obciążenia, fundamenty, konstrukcja dachu). Wydamy zgodę na takie przeprojektowanie jednak wiążę się to z dużymi kosztami. Istnieją firmy wykonawcze, które podejmują się zmiany technologii budowy bezpłatnie przy skorzystaniu z ich usług wykonawczych. Zdarza się, że pracownia architektoniczna przygotowuje warianty konkretnego projektu przewidując także inne technologie. Prosimy o sprawdzenie czy istnieje poszukiwana wersja projektu, w zakładce - warianty projektu.
Zwężenie/poszerzenie budynku* to nic innego jak zmiana w projekcie. Istnieje możliwość wprowadzenia takich zmian, we własnym zakresie (podczas adaptacji). *zwężenie/poszerzenie budynku nie powinno stanowić problemu w przypadku domów o dachu dwuspadowym jeśli wiąże się to z wydłużeniem/skróceniem kalenicy dachu.
Poznaj praktyczne porady ekspertów, które ułatwią Ci każdy etap budowy i od wyboru wymarzonego domu po jego wykończenie. Zyskaj pewność, że podejmujesz najlepsze decyzje dzięki sprawdzonym wskazówkom od specjalistów z planz.pl
Wycena szacunkowa, w kwotach netto, nie zawiera instalacji.
bezpłatnie (0zł)
przelew zwykły / PayNow
przy odbiorze
3-5 dni roboczych (jeśli projekt nie jest koncepcją)
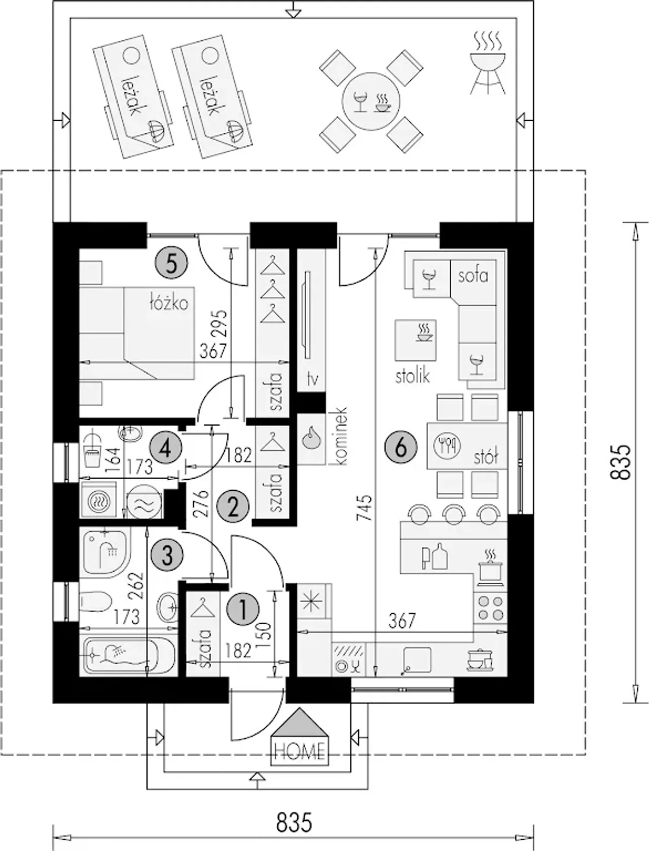
Projekt domu Dom Parterowy 23S przyciąga uwagę swoją klasyczną formą, która doskonale wpisuje się w tradycyjny charakter architektury jednorodzinnej. Dom zaprojektowany z myślą o funkcjonalności, co widać już na pierwszy rzut oka, dzięki czytelnemu układowi pomieszczeń. Przestronny salon z aneksem kuchennym to serce domu, które z pewnością stanie się miejscem spotkań wszystkich domowników. Dodatkowo, przewidziane w projekcie przemyślane rozmieszczenie sypialni zapewnia każdemu mieszkańcowi swój kawałek prywatnej przestrzeni. Korzystny rozkład oraz duże okna zapewniają naturalne światło przez większą część dnia, co jest niewątpliwą zaletą dla każdego, kto ceni jasne wnętrza. Projekt ten z pewnością spełnia oczekiwania tych, którzy szukają domu jednocześnie nowoczesnego i przytulnego.
Wybierz wygodny dla Ciebie czas kontaktu z naszym Doradcą Technicznym.