22 299 20 00 (pn-nd 9.30 do 19.30)

Gotowy projekt domu Dom Parterowy 18

ID: 34101
3220 2025-10-08
TANIEJ 280 zł
Możliwy dłuższy czas realizacji, prosimy o kontakt przed zakupem.
3220 zł
(3500 zł brutto)
Najniższa cena z 30 dni przed obniżką: 3500 zł
3220 2025-10-08
  • Promocja GRATISOWA do 03.10.2025 ➞ sprawdź zasady
  • GRATIS: Wiertarka
  • GRATIS: 16 projektów (drewutni, altany i wiaty)
  • GRATIS: tablica i dziennik budowy
  • GRATIS: przesyłka kurierska
Udostępnij projekt:

Rzuty gotowego projektu domu Dom Parterowy 18

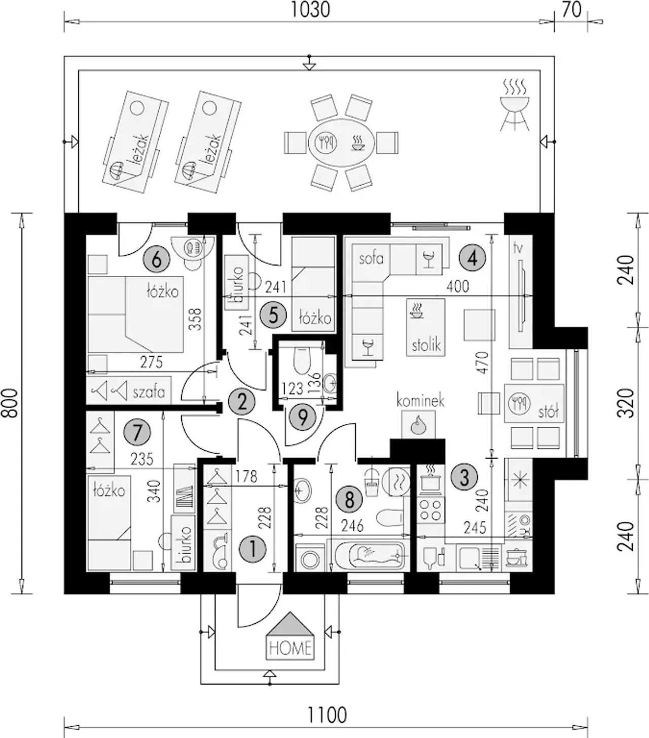
1. Przedsionek 3,95 m²
2. Hol 4,60 m²
3. Kuchnia 6,10 m²
4. Pokój dzienny z jadalnią 18,40 m²
5. Pokój 5,25 m²
6. Pokój 9,65 m²
7. Pokój 8,20 m²
8. łazienka z piecem c.o. 5,45 m²
9. Wc 1,55 m²

Zapoznaj się ze szczegółami projektu - pobierz bezpłatne rysunki do: Dom Parterowy 18

Wypełnij formularz i otrzymaj rysunki w pdf z dokładnymi wymiarami budynku i pomieszczeń (długość, szerokość, wysokość) dla projektu Dom Parterowy 18

Parametry Techniczne gotowego projektu domu Dom Parterowy 18

Pow. użytkowa 63.15 m²
Ilość pokoi 4
Powierzchnia zabudowy 84.65 m²
Kondygnacje parterowy
Garaż bez garażu
Technologia murowany
Szerokość działki 18 m
Obiekt dom
Typ domu jednorodzinny całoroczny
Szerokość budynku 11 m
Kominek kominek w projekcie
Kąt nachylenia dachu 35 °
Długość budynku 8 m
Rodzaj dachu dwuspadowy
Piwnica bez podpiwniczenia
Kubatura 435.4 m³
Powierzchnia dachu 103 m²
Długość działki 16 m
Wysokość budynku 6.66 m
Styl budynku nowoczesny
Kalenica równoległa do drogi
Liczba łazieniek 1
Koszty budowy tylko z kosztorysem, 150-200 tys.

Nasze prawdziwe opinie z Google

Opis projektu domu Dom Parterowy 18

Technologia wykonania:

  • Posadowienie budynku: ława fundamentowa.
  • Ściany zewnętrzne: pustak ceramiczny 25 cm + styropian 20 cm.
  • Ściany wewnętrzne: pustak ceramiczny 12 cm.
  • Strop nad parterem: lekki.
  • Konstrukcja dachu: drewniana.
  • Pokrycie dachu: dachówka.
  • Elewacja: tynk.
  • Wentylacja: grawitacyjna.
  • Ogrzewanie podstawowe: gaz.

Częste pytania

Czy mogę wprowadzić zmiany w projekcie?

Istnieje możliwość wprowadzenia zmian w naszych projektach. Wydajemy bezpłatną pisemną zgodę na wszelkie zmiany. Projekt z nasienionymi zmianami przygotowuje dla Państwa wybrany architekt adaptujący. Projekty katalogowe z naszej oferty sprzedawane są tylko w wersjach dostępnych na stronie internetowej www.planz.pl
 
W miejscu gdzie planowana jest budowa należy szukać tzw. "Architekta adaptującego" (lista takich architektów powinna być dostępna w urzędzie gminy, w Wydziale Architektury itd.) Architekt adaptujący zajmie się wrysowaniem projektu w działkę i naniesie na projekt dowolne modyfikacje, na oryginalnej dokumentacji technicznej w sposób trwały kolorem czerwonym.

Projekt jest murowany, a ja chcę budować drewniany

Co zrobić gdy wybrany dom nie mieści się na działce?

Jakie zmiany można wprowadzić w projekcie?

Porady ekspertów

Poznaj praktyczne porady ekspertów, które ułatwią Ci każdy etap budowy i od wyboru wymarzonego domu po jego wykończenie. Zyskaj pewność, że podejmujesz najlepsze decyzje dzięki sprawdzonym wskazówkom od specjalistów z planz.pl

Co zawiera projekt

  • ✓ 3 x projekt architektoniczno-budowlany ➞ szczegóły
  • ✓ Projekty techniczne ➞ szczegóły
  • ✓ charakterystyka energetyczna (do projektów domów)
  • ✓ zgoda na zmiany w projekcie ➞ szczegóły
  • ✓ GRATIS: Wiertarka (do projektów w cenie od 3000 zł)
  • ✓ GRATIS: 16 projektów (drewutni, altany i wiaty)
  • ✓ GRATIS: tablica i dziennik budowy
  • ✓ GRATIS: przesyłka kurierska

Szacunkowy kosztorys dla projektu Dom Parterowy 18

Stan surowy zamknięty 107000 zł
Stan surowy zamknięty
Stan deweloperski 159000 zł
Stan deweloperski

Wycena szacunkowa, w kwotach netto, nie zawiera instalacji.

Dodatki do projektu Dom Parterowy 18

[Planz] Tablica budowlana (0 zł)

[Planz] Dziennik budowy (0 zł)

[Planz] Wiertarka udarowa (0 zł)

[Planz] Zgoda na zmiany w projekcie (0 zł)

[Planz] Projekty architektury ogrodowej (0 zł)

[Planz] Charakterystyka energetyczna, tylko dla domów całorocznych (0 zł)

Wysyłka i płatność za projekt Dom Parterowy 18

Koszty wysyłki

bezpłatnie (0zł)

Formy płatności

przelew zwykły / PayNow
przy odbiorze

Czas oczekiwania

3-5 dni roboczych (jeśli projekt nie jest koncepcją)

 

Komentarze / pytania do projektu domu Dom Parterowy 18

Katarzyna

Poszukując idealnego projektu domu dla rodziny, uwagę przyciąga projekt Dom Parterowy 18. Ten atrakcyjny projekt oferuje przemyślany układ przestrzeni, charakteryzujący się funkcjonalnością i estetyką. Świetnie rozplanowana przestrzeń dzienna łączy salon z kuchnią, tworząc otwartą strefę do wspólnego spędzania czasu. Wygoda użytkowania domu jest podkreślona przez obecność kilku sypialni, które zapewniają możliwość intymności dla wszystkich domowników. Praktycznym dodatkiem jest wydzielona część gospodarcza, co ułatwia organizację codziennych obowiązków. Zadbano również o odpowiednie doświetlenie pomieszczeń naturalnym światłem, co pozytywnie wpływa na atmosferę wnętrz. Projekt ten z pewnością spełni oczekiwania tych, którzy poszukują przemyślanego i stylowego rozwiązania architektonicznego dla swojej rodziny.

PRACOWNIA: MyProjektujemy