22 299 20 00 (pn-nd 9.30 do 19.30)

Gotowy projekt domu Dom Parterowy 16 (ID: 33752)

3500 2026-01-18
Dom Parterowy 16 - 64.35m²
Możliwy dłuzszy czas realizacji
Gwarantujemy najniższą cenę
3500 zł
W cenie projektu:
📣 GRATIS: WIERTARKA UDAROWA
  • Tablica + dziennik budowy
  • 16 projektów ogrodowych
  • Darmowa wysyłka (kurier, paczkomat, pobranie)
  • 30 dni na zwrot
  • Pozwolenie na zmiany z podpisem i pieczęcią autora
  • GRATIS: Wiertarka Udarowa
22 299 20 00 (pn-nd 9.30 do 19.30)

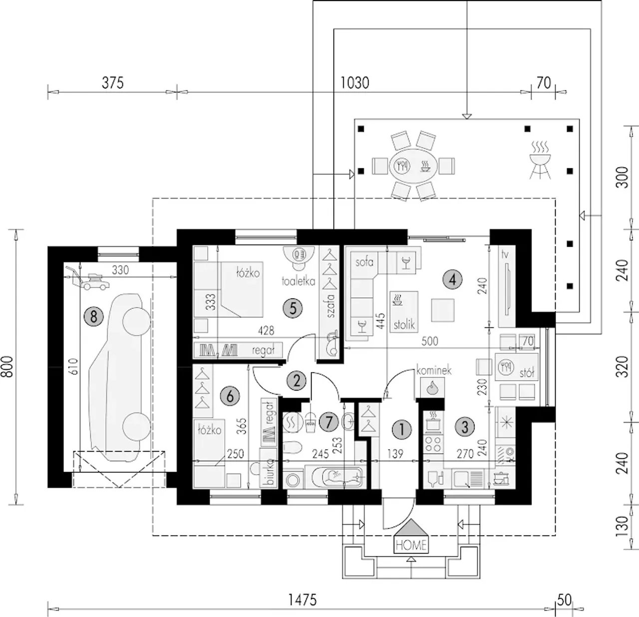
Rzuty gotowego projektu domu Dom Parterowy 16

1. Przedsionek 3,75 m²
2. Hol 3,75 m²
3. Kuchnia 6,55 m²
4. Pokoj dzienny z jadalnią 21,80 m²
5. Pokój 14,05 m²
6. Pokój 8,95 m²
7. łazienka z piecem c.o. 5,50 m²
8. Garaż jednostanowiskowy 19,85 m²

Zapoznaj się ze szczegółami projektu - zamów bezpłatne rysunki do: Dom Parterowy 16

Wypełnij formularz i otrzymaj na podany adres e-mail rysunki w pdf z dokładnymi wymiarami budynku i pomieszczeń (długość, szerokość, wysokość) dla projektu Dom Parterowy 16

Parametry Techniczne gotowego projektu domu Dom Parterowy 16

Ilość pokoi 3
Pow. użytkowa 64.35 m²
Powierzchnia zabudowy 131.65 m²
Kondygnacje parterowy
Garaż 1 stanowisko
Technologia murowany
Szerokość działki 22.25 m
Obiekt dom
Typ domu jednorodzinny całoroczny
Liczba łazieniek 1
Szerokość budynku 14.75 m
Styl budynku nowoczesny
Kominek kominek w projekcie
Kalenica równoległa do drogi
Długość budynku 8 m
Piwnica bez podpiwniczenia
Kąt nachylenia dachu 30 °
Kubatura 489.6 m³
Powierzchnia dachu 132.4 m²
Rodzaj dachu dwuspadowy
Długość działki 20.3 m
Wysokość budynku 6.35 m
Ogrzewanie gaz
Koszty budowy tylko z kosztorysem, 150-200 tys.

Energia i ogrzewanie gotowego projektu domu Dom Parterowy 16

Źródło ogrzewania:
gaz
Wentylacja: Grawitacyjna
Parametry energetyczne:
Ep: 69 kWh/(m²rok)

Nasze prawdziwe opinie z Google

Opis projektu domu Dom Parterowy 16

Technologia wykonania:

  • Posadowienie budynku: ława fundamentowa.
  • Ściany zewnętrzne: pustak ceramiczny 25 cm + styropian 20 cm.
  • Ściany wewnętrzne: pustak ceramiczny 12 cm.
  • Strop nad parterem: lekki.
  • Konstrukcja dachu: drewniana.
  • Pokrycie dachu: dachówka.
  • Elewacja: tynk.
  • Wentylacja: grawitacyjna.
  • Ogrzewanie podstawowe: gaz.

Częste pytania

Czy projekty z Planz.pl są kompletne?

Tak. Projekty dostępne na Planz.pl zawierają pełną dokumentację potrzebną do uzyskania pozwolenia na budowę i stanowią gwarancję sprawnej realizacji budowy.

Jesteśmy oficjalnym partnerem ponad 50 pracowni architektonicznych z całej Polski - dlatego każdy projekt pochodzi wyłącznie od autorów zrzeszonych w Izbie Architektów RP. 

Planz.pl to polska firma działającą na rynku od 15 lat. Mamy tysiące zadowolonych klientów, doskonałe opinie i oferujemy wsparcie również po zakupie, doradzamy, pomagamy w adaptacji i pozostajemy w kontakcie na każdym etapie inwestycji.

Dodatkowo do każdego projektu dodajemy tablicę informacyjną, dziennik budowy oraz 16 projektów elektronicznych drewnianej architektury ogrodowej. A dzięki naszej współpracy z producentami sprzętu elektrycznego, oferujemy możliwość otrzymania np. Wiertarki udarowej w formie atrakcyjnego gratisu.

Wybierając Planz.pl, otrzymujesz ten sam oryginalny projekt od autora, wzbogacony o realne dodatki, które ułatwiają rozpoczęcie budowy.

Czy mogę wprowadzić zmiany w projekcie?

Co zrobić gdy wybrany dom nie mieści się na działce?

Jakie zmiany można wprowadzić w projekcie?

Porady ekspertów

Poznaj praktyczne porady ekspertów, które ułatwią Ci każdy etap budowy i od wyboru wymarzonego domu po jego wykończenie. Zyskaj pewność, że podejmujesz najlepsze decyzje dzięki sprawdzonym wskazówkom od specjalistów z planz.pl

Co zawiera projekt

  • ✓ 3 x projekt architektoniczno-budowlany ➞ szczegóły
  • ✓ Projekty techniczne ➞ szczegóły
  • ✓ charakterystyka energetyczna (do projektów domów)
  • ✓ zgoda na zmiany w projekcie ➞ szczegóły
  • ✓ GRATIS: Wiertarka (do projektów w cenie od 3000 zł)
  • ✓ GRATIS: 16 projektów (drewutni, altany i wiaty)
  • ✓ GRATIS: tablica i dziennik budowy
  • ✓ GRATIS: przesyłka kurierska

Dodatki do projektu Dom Parterowy 16

Dodatki możesz kupić razem z projektem lub dokupić po czasie

[Planz] Tablica budowlana (0 zł)

[Planz] Dziennik budowy (0 zł)

[Planz] Wiertarka udarowa (0 zł)

[Planz] Zgoda na zmiany w projekcie (0 zł)

[Planz] Projekty architektury ogrodowej (0 zł)

[Planz] Charakterystyka energetyczna, tylko dla domów całorocznych (0 zł)

Wysyłka i płatność za projekt Dom Parterowy 16

Koszty wysyłki

bezpłatnie (0zł)

Formy płatności

przelew zwykły / PayNow
przy odbiorze

Czas oczekiwania

3-5 dni roboczych (jeśli projekt nie jest koncepcją)

 

Komentarze / pytania do projektu domu Dom Parterowy 16

Anna

Projekt Dom Parterowy 16 przyciąga uwagę swoim nowoczesnym i funkcjonalnym designem, który może idealnie pasować do potrzeb każdej rodziny. W jaki sposób twórcy tego projektu zadbali o przestronność wnętrza, jednocześnie zachowując przytulną atmosferę? Interesujące jest, jak przestrzeń mieszkalna została zaplanowana, by zapewnić swobodę i jednocześnie spełnić wymagania codziennego życia. Czy uwzględniono możliwość indywidualnych modyfikacji, aby dopasować wnętrza do unikalnych potrzeb mieszkańców? Zastanawia, jak rozwiązano kwestie praktycznego rozłożenia pomieszczeń, szczególnie w kontekście otwartych przestrzeni łączących kuchnię, jadalnię i salon. Czy projekt Dom Parterowy 16 oferuje również dodatkowe przestrzenie takie jak gabinet czy pokój gościnny, które można dostosować do różnych funkcji? Warto zwrócić uwagę na zaproponowane rozwiązania ekologiczne i energooszczędne - czy ten projekt spełnia standardy zrównoważonego budownictwa?

Szacunkowy kosztorys dla projektu Dom Parterowy 16

Stan surowy zamknięty 124000 zł
Stan surowy zamknięty
Stan deweloperski 168500 zł
Stan deweloperski

Wycena szacunkowa, w kwotach netto, nie zawiera instalacji.

PRACOWNIA: MyProjektujemy