- Promocja GRATISOWA do 06.10.2025 ➞ sprawdź zasady
- ✓ GRATIS: Wiertarka
- ✓ GRATIS: 16 projektów (drewutni, altany i wiaty)
- ✓ GRATIS: tablica i dziennik budowy
- ✓ GRATIS: przesyłka kurierska
- Potrzebujesz ADAPTACJI lub architekta do ZMIAN w projekcie? ➞ sprawdź jak pomożemy bez dodatkowej opłaty
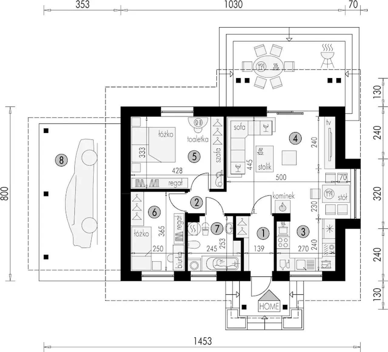
Rzuty gotowego projektu domu Dom Parterowy 15
Zapoznaj się ze szczegółami projektu - pobierz bezpłatne rysunki do: Dom Parterowy 15
Wypełnij formularz i otrzymaj rysunki w pdf z dokładnymi wymiarami budynku i pomieszczeń (długość, szerokość, wysokość) dla projektu Dom Parterowy 15

Parametry Techniczne gotowego projektu domu Dom Parterowy 15
Ilość pokoi 3 |
Pow. użytkowa 64.35 m² |
Powierzchnia zabudowy 114.75 m² |
Kondygnacje parterowy |
Garaż bez garażu |
Technologia murowany |
Szerokość działki 22.53 m |
Obiekt dom |
Typ domu jednorodzinny całoroczny |
Długość budynku 8 m |
Rodzaj garażu wiata |
Piwnica bez podpiwniczenia |
Kubatura 415.4 m³ |
Rodzaj dachu dwuspadowy |
Powierzchnia dachu 172.6 m² |
Długość działki 18.6 m |
Wysokość budynku 6.35 m |
Styl budynku nowoczesny |
Liczba łazieniek 1 |
Kalenica równoległa do drogi |
Szerokość budynku 14.53 m |
Kominek kominek w projekcie |
Kąt nachylenia dachu 30 ° |
Koszty budowy tylko z kosztorysem, 150-200 tys. |
Ilość pokoi 3 |
Powierzchnia zabudowy 114.75 m² |
Garaż bez garażu |
Szerokość działki 22.53 m |
Typ domu jednorodzinny całoroczny |
Rodzaj garażu wiata |
Kubatura 415.4 m³ |
Powierzchnia dachu 172.6 m² |
Wysokość budynku 6.35 m |
Liczba łazieniek 1 |
Szerokość budynku 14.53 m |
Kąt nachylenia dachu 30 ° |
Pow. użytkowa 64.35 m² |
Kondygnacje parterowy |
Technologia murowany |
Obiekt dom |
Długość budynku 8 m |
Piwnica bez podpiwniczenia |
Rodzaj dachu dwuspadowy |
Długość działki 18.6 m |
Styl budynku nowoczesny |
Kalenica równoległa do drogi |
Kominek kominek w projekcie |
Koszty budowy tylko z kosztorysem, 150-200 tys. |
Nasze prawdziwe opinie z Google
Opis projektu domu Dom Parterowy 15
Technologia wykonania:
- Posadowienie budynku: ława fundamentowa.
- Ściany zewnętrzne: pustak ceramiczny 25 cm + styropian 20 cm.
- Ściany wewnętrzne: pustak ceramiczny 12 cm.
- Strop nad parterem: lekki.
- Konstrukcja dachu: drewniana.
- Pokrycie dachu: dachówka.
- Elewacja: tynk.
- Wentylacja: grawitacyjna.
- Ogrzewanie podstawowe: gaz.
Częste pytania
Czy mogę wprowadzić zmiany w projekcie?
Projekt jest murowany, a ja chcę budować drewniany
Kupując projekt w technologii murowanej powinieneś budować dom murowany. Zupełna zmiana technologii na szkieletową wymaga przeprojektowania całego budynku ( zmieniają się obciążenia, fundamenty, konstrukcja dachu). Wydamy zgodę na takie przeprojektowanie jednak wiążę się to z dużymi kosztami. Istnieją firmy wykonawcze, które podejmują się zmiany technologii budowy bezpłatnie przy skorzystaniu z ich usług wykonawczych. Zdarza się, że pracownia architektoniczna przygotowuje warianty konkretnego projektu przewidując także inne technologie. Prosimy o sprawdzenie czy istnieje poszukiwana wersja projektu, w zakładce - warianty projektu.
Co zrobić gdy wybrany dom nie mieści się na działce?
Zwężenie/poszerzenie budynku* to nic innego jak zmiana w projekcie. Istnieje możliwość wprowadzenia takich zmian, we własnym zakresie (podczas adaptacji). *zwężenie/poszerzenie budynku nie powinno stanowić problemu w przypadku domów o dachu dwuspadowym jeśli wiąże się to z wydłużeniem/skróceniem kalenicy dachu.
Jakie zmiany można wprowadzić w projekcie?
- Rozmieszczenie ścian działowych.
- Zmiany funkcji pomieszczeń.
- Modyfikacje wielkości, ilości i kształtu otworów okiennych i drzwiowych.
- Użycie innych materiałów na elementy konstrukcyjne budynku (ściany, stropy) przy zachowaniu wymagań konstrukcji, parametrów cieplnych budynku i elewacji.
- Wprowadzenie częściowego lub całkowitego podpiwniczenia budynku.
- Zmiana kąta nachylenia, kształtu i konstrukcji dachu.
- Zmiana sposobu ogrzewania i prowadzenia instalacji CO, zmiany instalacji wodno-kanalizacyjnej, gazowej, oraz elektrycznej (zachowując obowiązujące normy, zgodnie z prawem budowlanym).
- Zmiana materiałów wykończeniowych: posadzek, tynków, dachówki, izolacji cieplnej i przeciwwilgociowej (przy zachowaniu niezbędnych parametrów wytrzymałości oraz parametrów przenikania ciepła).
- Zmiany wynikające z dostosowania budynku do warunków gruntowych.
- Zmiany wymiarów fundamentów.
- Zmiany wymiarów przekrojów lub rozstawu elementów więźby dachowej wynikające z dostosowania budynku do strefy śniegowej lub wiatrowej.
- Zmiany szerokości schodów, liczby stopni i wymiarów schodów wewnętrznych oraz zewnętrznych.
- Zmiany pokrycia dachowego (uwzględniając istniejące spadki i ciężar).
- Zmiany kształtu, wielkości, usytuowania elementów takich jak tarasy, wiaty, murki.
- Zmiany wysokości ścianki kolankowej.
- Zmiany usytuowania i ilości kominów.
- Dobudowanie lub usunięcie garażu lub wiaty garażowej.
- Dobudowanie lub usunięcie lukarn.
- Dobudowanie lub usunięcie balkonów.
- Dobudowanie lub usunięcie wykuszy.
- Zabudowanie podcienia.
Poznaj praktyczne porady ekspertów, które ułatwią Ci każdy etap budowy i od wyboru wymarzonego domu po jego wykończenie. Zyskaj pewność, że podejmujesz najlepsze decyzje dzięki sprawdzonym wskazówkom od specjalistów z planz.pl
Co zawiera projekt
- ✓ 3 x projekt architektoniczno-budowlany ➞ szczegóły
- ✓ Projekty techniczne ➞ szczegóły
- ✓ charakterystyka energetyczna (do projektów domów)
- ✓ zgoda na zmiany w projekcie ➞ szczegóły
- ✓ GRATIS: Wiertarka (do projektów w cenie od 3000 zł)
- ✓ GRATIS: 16 projektów (drewutni, altany i wiaty)
- ✓ GRATIS: tablica i dziennik budowy
- ✓ GRATIS: przesyłka kurierska
Szacunkowy kosztorys dla projektu Dom Parterowy 15


Wycena szacunkowa, w kwotach netto, nie zawiera instalacji.
Dodatki do projektu Dom Parterowy 15
[Planz] Tablica budowlana (0 zł)
[Planz] Dziennik budowy (0 zł)
[Planz] Wiertarka udarowa (0 zł)
[Planz] Zgoda na zmiany w projekcie (0 zł)
[Planz] Projekty architektury ogrodowej (0 zł)
[Planz] Charakterystyka energetyczna, tylko dla domów całorocznych (0 zł)
Wysyłka i płatność za projekt Dom Parterowy 15

Koszty wysyłki
bezpłatnie (0zł)

Formy płatności
przelew zwykły / PayNow
przy odbiorze

Czas oczekiwania
3-5 dni roboczych (jeśli projekt nie jest koncepcją)
Komentarze / pytania do projektu domu Dom Parterowy 15
Projekt w kategoriach
Zamów rozmowę
Wybierz wygodny dla Ciebie czas kontaktu z naszym Doradcą Technicznym.